RS-1_RS-1-XL_RS-1R-Rev20 - 第206页
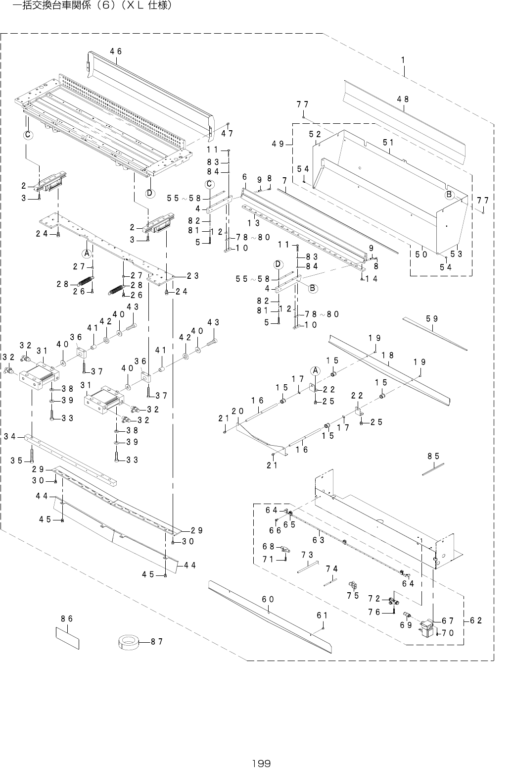
- - 100.REPLACING OVERALLCHANGER TRUCKCOMPONE NTS(6)(TY PEXL)

- -
REF.NO NOTE PARTNO DESCRIPTION Qty
1 401-69473 BANKIDPCB(RF)ASM 1
2 401-89202 BANK_BASE_R 1
3 PH-0600120-C0 PARALLELPINTYPEB6X12 4
4 EZ-4453564-01 PLUGTAPERSCREW 1
5 E2602-721-000 BANKLOCATEBUSHA 2
6 E2732-721-000 BANKGUIDEROLLER 2
7 E5721-729-000 LABEL 1
8 WS-0410002-KN SPRINGWASHERM4 13
9 402-62622 CLAMP_BLOCK_14R 4
10 SM-6041602-TN SCREWM4X16 12
11 402-65941 DOWEL_PIN_D3_L10 8
12
#01
401-67530 GUIDE_RAIL 4
13 SM-3041052-TN SCREWM4L=10 24
14 E2609-721-000 BANKLOCATEPINA 1
15 WP-0841601-SC WASHERM8 1
16 WS-0820002-KN SPRINGWASHERM8 1
17 NM-6080003-SC NUTM8X1.25TYPE3 1
18 E2610-721-000 BANKLOCATEPINB 1
19 WP-0841601-SC WASHERM8 1
20 WS-0820002-KN SPRINGWASHERM8 1
21 NM-6080003-SC NUTM8X1.25TYPE3 1
22 401-83200 POSITIONING_PLATE 1
23 402-65941 DOWEL_PIN_D3_L10 2
24 SM-6041602-TN SCREWM4X16 13
25 401-83142 MARK_STAND 2
26 E2505-729-0A0 MARKASM. 2
27 E2601-725-000 MARK (1)
28 E2505-729-000 MARKBASE (1)
29 SL-6041292-TN SCREWM4L=12 4
30 SL-6052092-TN SCREWM5L=20 4
31 401-83176 CAN_CONNECTOR_BR 1
32 401-82051 CONNECTOR_BIND 112
33 SL-6051292-TN SCREWM5L=12 4
34 402-09115 BANK_PLATE_L 1
35 WP-0430801-SC WASHERM4 13
36 400-94723 TOROLLEY_COV_BR 1
37 SL-6061092-TN SCREWM6L=10 2
38 402-09116 BANK_PLATE_R 1
39 401-11974 RIVET_1661-0410 2
40 400-94723 TOROLLEY_COV_BR 1
41 SL-6061092-TN SCREWM6L=10 2
42 HX-0070600-0A MOUNTBASE 2
43 HX-0005500-0N RUBBERBUSHING 7
44 401-83151 T_SAFETY_COVER_BR 2
45 SL-6040892-TN SCREWM4L=8 6
46 401-83194 TROLLEY_SAFETY_COVER_L 1
47 SL-6040892-TN SCREWM4L=8 4
48 401-88175 TROLLEY_SAFETY_COVER_R 1
49 SL-6040892-TN SCREWM4L=8 4
50 401-83154 REGULATION_BAR_RS 1
51 SL-6040892-TN SCREWM4L=8 4
52 HX-0070600-00 MOUNTBASE 3
53 SM-3040652-TN SCREWM4L=6 2
54 HX-0070600-00 MOUNTBASE 4
55 SM-6101602-TP SCREWM10L=16 2
56 WP-1052001-SC WASHER10 2
57 401-96173 BANK_PCB_BASE 2
58 HX-0070600-0A MOUNTBASE 8
59 HX-0070600-0A MOUNTBASE 2
60 HX-0070600-00 MOUNTBASE 2
61 SM-0040601-SC SCREWM4X0.7L=6 4
62 SL-4030681-SC SCREWM3L=6 18
63 SL-6061292-TN SCREW 2
64 SL-4850591-SC SCREWM2.5L=5 4
65 EA-9500B01-00 CABLEBAND 25
66 401-96257 BANK_PCB_COVER 1
67 SL-6040892-TN SCREWM4L=8 6
68 400-93977 5PORT_SOLENOID_VALVE 1
69 PJ-3010852-01 HALFUNION8XR1/4 2
70 PJ-3040852-01 ELBOWUNION8XPT1/4 1
71 401-83168 DIFFERENTDIAMETER_T 2
72 SL-6040892-TN SCREWM4L=8 2
73 PX-0551040-00 SILENCER 2
74 BT-0600400-EC URETHANETUBEBLUE6X4 2
75 BT-0800501-EA URETHANETUBEBLUE8X5 2
76
#02
401-83208 GUIDE_RAIL_R 4
77 401-83783 ELECBANKL-SIDEPCBASM 1
78 401-83784 ELECBANKR-SIDEPCBASM 1
79 401-84971 POSITION_LAVEL_56 2
80 401-83203 BANK_CONNECTOR_A_BR 1
81 HX-0070600-0A MOUNTBASE 1
82 SL-6051092-TN SCREWM5L=10 1
83 402-50134 BANK_CABLE_BR_ASM 1
84 EA-9500B01-00 CABLEBAND 13
85 EA-9500B02-00 CABLEBAND 3

- -
100.REPLACINGOVERALLCHANGERTRUCKCOMPONENTS(6)(TYPEXL)

- -
REF.NO NOTE PARTNO DESCRIPTION Qty
1 401-83608 CUTTER_ASM 1
2 402-55583 LM_GUIDE (2)
3 SM-6052002-TN SCREW (10)
4 401-83189 EDGE_BASE_SIDE (2)
5 SM-6043002-TN SCREW (6)
6 401-90272 UPPER_EDGE_BASE2 (1)
7 401-86284 BRUSH_B (1)
8 SL-6041242-TN SCREWM4L=12 (4)
9 PS-0300162-KH SPRINGPIN3X16 (2)
10 401-83183 GUIDE_SLOPE (2)
11 SM-6043002-TN SCREW (2)
12 PH-0300104-S0 PARALLELPINTYPEB3X10 (2)
13 401-91507 UPPER_EDGE (1)
14 SM-6040602-TN SCREW (12)
15 SB-7080002-00 BEARING (4)
16 401-89663 HOLD_SHAFT (2)
17 RE-0600000-K0 E-RING6 (2)
18 401-83127 HOLD_PLATE (1)
19 SM-1040852-TP DISHSCREW (2)
20 401-83128 SPRING_PLATE (1)
21 SL-6040892-TN SCREWM4L=8 (2)
22 401-89662 PUSHER_STOP_PLATE (2)
23 401-83181 SLIDE_BASE (1)
24 SL-6061692-TN BOLT (11)
25 SL-6051092-TN SCREWM5L=10 (4)
26 SM-6051402-TN SCREWM5L=14 (2)
27 NM-6050001-SC NUTM5X0.8TYPE1 (2)
28 401-83131 PUSHER_SPRRING_R (2)
29 401-89727 LOWER_EDGE (2)
30 SL-6051092-TN SCREWM5L=10 (10)
31 401-83133 MDUB50-45DZ (2)
32 PC-0152030-00 SPEEDCONTROLLER (4)
33 SM-6084002-TN SCREWM8L=40 (4)
34 401-83134 CYLINDER_SUPPORT_BLOCK (1)
35 SM-6086002-TN SCREW (4)
36 401-83201 CONNECTION_BLOCK (2)
37 SM-6064502-TP SCREWM6L=45 (4)
38 WS-0610002-KN SPRINGWASHERM6 (4)
39 WP-0641601-SC WASHERM6 (4)
40 401-83136 WASHER (4)
41 401-83137 COLLAR (2)
42 401-83138 SLIDE_SPACER (2)
43 SM-6103552-TP SCREWM10L=35 (2)
44 401-89728 COVER_LOWER_EDGE (2)
45 SL-6051092-TN SCREWM5L=10 (4)
46 401-85337 SHOOT_A (1)
47 SL-6040892-TN SCREWM4L=8 (4)
48 401-85335 TAPE_GUIDE_PLATE (1)
49 402-16357 COVER_CUTTER_ASM (1)
50 401-90274 COVER_CUTTER_FRONT (1)
51 401-90275 COVER_CUTTER_REAR (1)
52 401-90276 COVER_CUTTER_L (1)
53 401-90277 COVER_CUTTER_R (1)
54 401-11974 RIVET_1661-0410 (1)
55 401-86289 SHIM_B_T20 (8)
56 401-86290 SHIM_B_T40 (8)
57 401-86291 SHIM_B_T100 (4)
58 401-86292 SHIM_B_T200 (2)
59 401-86606 FELT_CUSHION_A (2)
60 401-90273 FELT_SUPPORT2 (1)
61 SM-0040601-SC SCREWM4X0.7L=6 (2)
62 401-86216 COOLING_PIPE_ASM (1)
63 401-86217 COOLING_PIPE (1)
64 PJ-3040400-01 QUICKPIPEJOINTELBOW (2)
65 HX-0015000-0A CABLECLAMP (3)
66 SL-4041291-SC SCREWM4L=12 (3)
67 401-98338 AIRBLOWSVCABLEASM (1)
68 PC-0124010-00 SPEEDCONTROLLER (1)
69 EZ-4447053-11 UNION(KQ2H06-M5N)HALF (1)
70 SL-6030892-TN SCREWM3L=8 (3)
71 SL-4031891-SC SCREWM3L=18 (2)
72 PJ-3050600-08 REDUCERTEES (1)
73 BT-0600400-EC URETHANETUBEBLUE6X4 (0.1)
74 BT-0400251-EA URETHANETUBEBLUE4X2.5 (2)
75 PJ-3080400-06 UNIONY (1)
76 SL-4032591-SC SCREWM3X25 (1)
77 SM-3040652-TN SCREWM4L=6 (4)
78 401-83186 SHIM_T100 (4)
79 401-83187 SHIM_T40 (8)
80 401-83188 SHIM_T20 (10)
81 WS-0410002-KN SPRINGWASHERM4 (6)
82 WP-0430800-SC WASHERM4 (6)
83 WS-0410002-KN SPRINGWASHERM4 (2)
84 WP-0430800-SC WASHERM4 (2)
85 HX-0067100-00 GROMMET (0.7)
86 400-92716 TAPECUTTERDANGERLABEL 1
87 400-01490 TAPE 0.34