RS-1_RS-1-XL_RS-1R-Rev20 - 第236页
- - 115.SYSTEMDIAGRAM(2 )

- -
REF.NO NOTE PARTNO DESCRIPTION Qty
1 401-86993 BREAKER-NFWIREASM 1
2 HN-0040100-00 NOISEFILTER 1
3 401-86994 NF-SWWIREASM 1
4 401-88712 SWITCH 1
5 401-96242 SW-TF/MTSMTCWIREASM2 1
6 401-91280 TRANSFORMER 1
7 401-83414 TRANS-EUCABLEASM 1
8 401-28954 NF-FGWIREASM 1
9
#02
HK-0429900-7A CAP 2
10 401-94687 MTSPWRCABLE2ASM 1
11 401-83500 MTSPWRCABLEASM 1
12
#01
402-00913 ELECTRICALUNITA 1
13
#02
402-00914 ELECTRICALUNITAEN 1
14 401-82231 MS-ELECTRICALUNITCABLEASM 1
15
#08
401-90514 T1234POWERRELAYCABLEASM 4
16 401-86996 NF-SWWIREASM 1
17 401-91282 NOISEFILTER 1
18 401-86992 BREAKER-NFWIREASM 1
19
#07
401-36335 SERVOMOTOR30W 4
20 402-22386 HEADRELAYPCBASM 1
21 401-82252 HDR-ZAAMPPWRCABLEASM 1
22
#03
401-82264 VA CUUMPUMPRELAYWIREASM 1
23
#03
401-29244 VACUUMPUMPASM 1
24
#03
401-82214 ELEUNITCNA2-CNB3CABLEASM 1
25 402-01638 ELEUNITCNA2-CNB3CABLEASM 1
26 401-82232 EUCNA6-EUCNB2CABLEASM 1
27
#02
401-88159 EUCNA4-CN0001CABLEASM(EN) 1
28
#01
401-83536 POWERSUPPLYUNITBASM 1
29
#02
401-87824 POWERSUPPLYUNITBASM_EN 1
30 402-01639 EJECTORSVCABLEASM 1
31 401-82240 EUTOP-FXYBEARHDMPWRCABLEASM 1
32 401-98672 RFPWRCABLEASM1 1
33 EZ-1755690-11 RELAYPOWER(RJ1S-CLD-D24) 1
34 EZ-1755691-11 SOCKETRELAY(SJ1S-05B) 1
35
#03
401-98897 RFPWRCABLEASM5 1
36 401-98673 RFPWRCABLEASM2 1
37 402-71213 RFPOWERSUPPORTCABLE2 1
38 402-24877 RFPOWERSUPPORTCABLE 1
39 402-24878 RFPOWERFGCABLE 1
40 401-98674 RFPWRCABLEASM3 1
41
#03
401-98896 RFPWRCABLEASM4 1
42 401-97864 SUPERIMPOSEBO ARD 1
43 401-82271 ATX-SPIMPPWRCABLEASM2 1
44 HK-0693500-10 BLOCKTERMINAL 1
45 EZ-1468979-11 POWER(ENSP-300P-S20-11S) 1
46
#04
401-46346 ATXPSU 1
47
#04
402-62696 ATXHDCABLEASM 1
48
#04
402-62697 ATXHDRLYCABLE ASM 1
49
#05
402-22393 HEADMAINPCBASM 1
50
#06
401-28873 HEADMAINPCBASM 1
51 401-82272 XYBEARCABLE 1
52 401-90921 IP-X1 1SETGENASM(RS-1) 1
53 401-28871 IOCONTROLPCBASM 1
54 401-82238 IPX-FXYBEARCAMERACABLEASM 1
55 401-82239 IO-FXYBEARSERIALCABLEASM 1
56 401-82241 HDM-HDRSERIALCABLEASM 1
57 401-29105 HDM-HDRPWRCABLEASM 1
58 401-29102 HDM-OCCLCABLEASM 1
59 401-29639 OCC 1
60 402-22648 OCC LENS 1
61 401-29273 HDM-OCCLIGHTLCABLEASM 1
62 401-28879 OCC CPCBASM 1
63 401-28878 OCC APCBASM 1
64
#05
401-28880 OCCOPCBASM 1
65
#06
402-09932 OCCOLIGHTPCBASM 1
66 402-09934 OCCUVLIGHTPCBASM 1
67 401-29106 HDM-HMSLRELAYCABLEASM 1
68 401-29108 HMSCABLEASM 1
69 HD-0030600-00 SENSOR 1
70 401-85429 NZL-UPSVEXTENSIONCABLEASM 1
71 401-83349 NZL-UPSVCABLEASM 1
72 401-86318 HDM-TMPSENSORCABLEASM 1
73 401-28883 THERMALSENSORPCBASM 1
74 401-29652 XAXISDRIVER 1
75
#02
401-88160 CNA5-X/YL/YRCNP1CABLEASM 1
76
#02
HA-0065100-0A CIRCUITPROTECTOR 3
77
#01
401-82229 CNA5-X/YL/YRCNP1CA BLEASM 1
78 401-29654 YAXISDRIVER 2
79 401-82230 CNA3-AMPCNP2CABLEASM 1
80 401-82256 FXAMP-FGWIREASM 1
81 401-82257 FYLAMP-FGWIREASM 1
82 401-82258 FYRAMP-FGWIREASM 1
83 HK-0693500-10 BLOCKTERMINAL 2
84
#02
401-88158 EUBTM-BANKUPCABLEASM(EN) 1
85
#02
400-02344 BUPSHORTWIRE(EN)ASM 2
86
#03
400-02287 BA NKSWCABLEASSY 2
87 401-82253 HDR-ZBAMPPWRCABLEASM 1
88 401-86497 ATXRELAY-ATX250VCABLEASM 1
89 401-82255 EUTOP-ATXRELAYCABLEASM 1
90 EZ-1756647-11 BATTERYPACK(BS06A-H24/2.5L) 1
91 401-82254 HDR-ZCAMPPWRCABLEASM 1
92
#04
401-46346 ATXPSU 1
93
#04
401-46347 BATTERY 1
94 401-72724 ATX-CPCIWIREASM3 1
95 401-83537 CTRL_UNIT_ASM 1
96 401-23242 CPUBOARD 1
97 401-82222 HDR-TAAMPPWRCABLEASM 1
98 401-96265 POSITIONBOARD 1
99 401-35433 8-PORTCOMBOARD 1
100 402-33910 TAMP-HDRSERIALCABLEASM 1
101 401-72512 CPCIBACKBOARD6SLOT 1
102 401-82215 TACN5-CN0713CABLEASM 1
103 401-82233 ATX-SWCABLEASM 1
104 401-82251 HDR-SVCABLEASM 1
105 401-29627 OPTICALFIBERCABLE1M 1
106 401-82237 FXAMP-XYBEARENCCABLEASM 1
107 401-29148 X-MOTORENCCABLEASM 1
108 401-82234 FXAMP-YBEARPWRCABLEASM 1
109 400-44546 XMTRPWRCABLE 1
110 401-29653 XAXISMOTOR 1
111 401-82273 YBEARCABLE 1
112 400-45401 YLENCCA BLEASM 1
113 401-82269 YLMOTORCABLEASM 1
114 401-46348 YAXISSERVOMOTOR 2
115 401-29628 OPTICALFIBERCABLE0.15M 5
116 400-45403 YRENCCABLEASM 1
117 401-82270 YRMOTORCABLEASM 1
118 400-48070 OPTICALFIBERCABLE7M 1
119 402-11151 NZLUPSENSORCABLEASM 1
120 401-33003 NZLUPSENSOR6TRCABLEASM 1
121 401-33060 XYBEARAMPPWR-FGWIREASM 1
122 401-82220 HDR-SVCABLEASM2 1
123 401-82243 EUTOP-FXYBEARAMPPWRCABLEASM 1
124 401-36338 LANCABLE5M 1
125 HK-0849200-80 CONNECTOR 2
126 401-82558 CN0707-T1/T2/T3ORIGINCABLEASM 1
127 401-82216 LNCLANCABLEASM 1
128 401-82217 LNCENCODERCABLEASM 1
129 401-82218 HDR-LNCLEDCABLEASM 1
130 EZ-1492148-11 AMPLIFIERSERVO 3
131 401-94684 T1_T2_T3_T4ORIGINSENSORASM 4
132
#08
401-90511 Z1357ENCODERRELAYCABLEASM 4
133
#08
401-90510 Z1357POWERRELAYCABLEASM 4
134
#08
401-87431 SERVOMOTOR30W 13
135
#08
401-90513 Z2468ENCODERRELAYCABLEASM 4
136
#08
401-90512 Z2468POWERRELAYCABLEASM 4
137
#07
401-36334 SERVOMOTOR30W 8
138 401-83385 FIBERUNIT2M 4
139
#07
401-82565 ZCCN2ACABLEASM 1
140
#07
401-82563 ZCCNP2ACABLEASM 1
141 401-29650 4AXISINTEGRALTYPETAXISDRIVER 1
142
#08
401-90515 T1234ENCODERRELAYCABLEASM 4
143 401-89336 HDR-ZVACSENSORCABLEASM 1
144 402-23084 VACUUM_UNIT_G 1
145 401-82559 CN0724-T4ORIGINCABLEASM 1
146 402-08413 FANMOTO RASM 1
147
#08
401-82563 ZCCNP2ACABLEASM 1
148 401-82382 BLOCKTERMINAL 1
149
#07
401-87431 SERVOMOTOR30W 1

- -
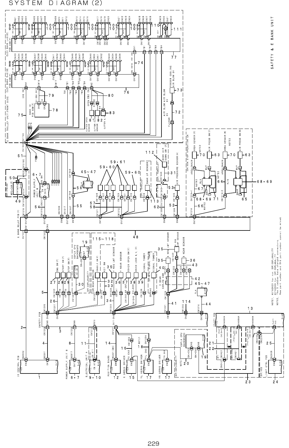
115.SYSTEMDIAGRAM(2)

- -
REF.NO NOTE PARTNO DESCRIPTION Qty
1 401-28871 IOCONTROLPCBASM 1
2 401-82247 IO-FBKRSERIALCABLEASM 1
3 401-28872 SAFETYPCBASM 1
4 401-29320 IO-SFSERIALCABLEASM 1
5 401-86309 FBKR-SFCABLEASM 1
6
#01
401-83536 POWERSUPPLYUNITBASM 1
7
#02
401-87824 POWERSUPPLYUNITBASM_EN 1
8 401-29011 EUTOP-SFPWRCABLEASM 1
9
#01
402-00913 ELECTRICALUNITA 1
10
#02
402-00914 ELECTRICALUNITAEN 1
11
#02
401-88157 EUBOTTOM-SFENCABLEASM 1
12 401-96265 POSITIONBOARD 1
13 401-90921 IP-X11SETGENASM(RS-1) 1
14 401-82224 SF-XYAMPRELAYCABLEASM 1
15 401-29652 XAXISDRIVER 1
16 401-33006 SFRELAY-FXAMPCABLEASM 1
17 401-29654 YAXISDRIVER 2
18 401-82823 SFRELAY-FYLAMPCABLEASM 1
19
#03
401-32990 COPLACPUBACKBOARDPCBASM 1
20
#03
401-92500 RELAY-YLAMPCABLEASMCOPLA 1
21 401-82225 IPXXENCRELAYCABLEASM 1
22
#03
401-90012 IPXX-ENCRELAYCABLEASM 1
23
#03
401-33044 IPXX-AXISENCCABLEASM 1
24
#03
401-32991 LIGHTCONTROLPCBASM 1
25
#03
401-90013 CAMERATRIGCABLEASM 1
26 401-29020 SF-OPSWRELAYWIREASM 1
27 401-29025 EMGSWCABLEASM 1
28 401-90601 STARTSWCABLEASM 1
29 401-90602 STOPSWCABLEASM 1
30
#03
401-94688 LASERCTRLCABLEASM 1
31
#03
401-29069 BKR-BANKAIRSWCABLEASM 1
32
#03
401-29023 CONSOLESWCABLEASM 1
33 401-90603 KEYSWCABLEASM 1
34 401-82244 SF-YFTOPSENSORRELAYCABLEASM 1
35 401-65028 XYLMTSENSORASM 3
36 401-29002 NEARSENSORCABLEASM 2
37 400-02254 COVEROPENSWCABLEASM 1
38 401-46405 COVERLOCKSVASM 1
39 401-29009 SIGNALTOWERCABLEASM 1
40
#03
401-29010 MINISIGNALTOWERCABLEASM(OP) 1
41 401-82249 SF-FXYBEARCABLEASM 1
42 401-82273 YBEARCABLE 1
43 401-29001 XLMTRELAYCABLEASM 1
44 401-86333 CUTTERSAFETYCABLEASM 1
45 HB-0018100-00 RELAY 1
46 HB-0004800-10 RELAY 1
47 HB-0002100-10 RELAYHOLOERPYC-A1 1
48 401-28876 EBANKRELAYPCBASM 1
49
#03
401-69048 MPC-CAN 1
50
#03
401-87771 MPCCABLEASM(RS-1) 1
51 401-82227 EBKR-OUTLOADERSERIALCABLEASM 1
52 401-82260 FBKR-AIR(P)RELAYCABLEASM 1
53 401-29071 AIR(P)SENSORCABLEASM 1
54 401-90364 FBKR-EUTOPPWRCABLEASM 1
55 401-84380 CN1307/1407-CN1344/1444CABLEASM 1
56 401-84106 CN1343/1344-RL4_5/9CABLEASM 1
57 401-85779 BKR-FDFLOATECABLEASM 1
58 401-82265 BKR-FDFLOATLEFTECABLEASM 1
59
#04
401-86919 SEPARATESENSORASM 6
60
#05
401-54796 SEPARATESENSORRECEIVERASM 3
61
#05
401-54797 SEPARATESENSOREMISSIONASM 3
62 401-82818 BKR-BANKAIRSWRELAYCABLEASM 1
63
#03
E9816-729-HA0 SWRELAYCABLEASM 2
64
#03
402-53400 AREASENSORRELAYCABLE2ASM 1
65
#03
401-94855 RBUPPRESSUERSWITCHASM 1
66
#03
402-53406 CN1314-1/2CABLEASM 1
67
#03
402-53399 AREASENSORRELAYCABLEASM 1
68
#03
HB-0015400-00 RELAY 2
69
#03
HB-0015400-10 RELAY 2
70
#03
402-53398 REFLEXARRAYSENSORASM 2
71
#03
401-94854 FBUPPRESSUERSWITCHASM 1
72 401-98339 FEEDERAIRBLOWCABLEASM 1
73 401-98338 AIRBLOWSVCABLEASM 1
74 401-82210 CANJAMPERCABLEASM 1
75 401-82228 EBANKSERIALCABLEASM 1
76 401-83784 ELECBANKR-SIDEPCBASM 1
77 401-83783 ELECBANKL-SIDEPCBASM 1
78 401-69473 BANKIDPCB(RF)ASM 1
79 401-82213 BANKCABLE(IFS-NX)ASM 1
80 401-82212 EBANKPCB-ECUTTERIFCABLEASM 1
81 400-84835 CUTOPENSENSASM 1
82 400-84839 CUTCLOSESENSASM 1
83 400-84836 CUTSVCABLEASM 1
84 402-43227 BANKCABLE(33_34-EB2CN3)ASM 1
85 402-43228 BANKCABLE(35_36-EB2CN4)ASM 1
86 402-43229 BANKCABLE(37_38-EB2CN5)ASM 1
87 402-43230 BANKCABLE(39_40-EB2CN6)ASM 1
88 402-43231 BANKCABLE(41_42-EB2CN7)ASM 1
89 402-43232 BANKCABLE(43_44-EB2CN8)ASM 1
90 402-43233 BANKCABLE(45_46-EB2CN9)ASM 1
91 402-43234 BANKCABLE(47_48-EB2CN10)ASM 1
92 402-43235 BANKCABLE(49_50-EB2CN11)ASM 1
93 402-43236 BANKCABLE(51_52-EB2CN12)ASM 1
94 402-43237 BANKCABLE(53_54-EB2CN13)ASM 1
95 402-43238 BANKCABLE(55_56-EB2CN14)ASM 1
96 402-43211 BANKCABLE(1_2-EB1CN3)ASM 1
97 402-43212 BANKCABLE(3_4-EB1CN4)ASM 1
98 402-43213 BANKCABLE(5_6-EB1CN5)ASM 1
99 402-43214 BANKCABLE(7_8-EB1CN6)ASM 1
100 402-43215 BANKCABLE(9_10-EB1CN7)ASM 1
101 402-43216 BANKCABLE(11_12-EB1CN8)ASM 1
102 402-43217 BANKCABLE(13_14-EB1CN9)ASM 1
103 402-43218 BANKCABLE(15_16-EB1CN10)ASM 1
104 402-43219 BANKCABLE(17_18-EB1CN11)ASM 1
105 402-43220 BANKCABLE(19_20-EB1CN12)ASM 1
106 402-43221 BANKCABLE(21_22-EB1CN13)ASM 1
107 402-43222 BANKCABLE(23_24-EB1CN14)ASM 1
108 402-43223 BANKCABLE(25_26-EB1CN15)ASM 1
109 402-43224 BANKCABLE(27_28-EB1CN16)ASM 1
110 402-43225 BANKCABLE(29_30-EB1CN17)ASM 1
111 402-43226 BANKCABLE(31_32-EB1CN18)ASM 1
112
#03
PV-0151250-00 MANUALVALVE 1
113
#03
401-29070 BANKUPSENSORCABLEASM 1
114 401-82223 CN1202SHORTWIREASM 1
115
#03
HA-0055200-40 SWITCH 1
116
#03
HA-0055200-30 SWITCH 1
117
#03
HA-0055200-1C SWITCH 1
118
#03
HA-0053400-70 SWITCH 1