00191327-01 - 第598页
Betriebsanleitung SIPLACE 80S-20/F4/F5 10 BE-Handling Ausgabe 05/99 ab Soft wareversion SR.405.xx 10.6 Wafflepackwechsler 10 - 27 ● Lös en Sie di e Kle mmschraub en an de n Füßen (s iehe A bb. 10.6.5) und dreh en Si e mi…

10 BE-Handling Betriebsanleitung SIPLACE 80S-20/F4/F5
10.6 Wafflepackwechsler Ausgabe 05/99 ab Softwareversion SR.405.xx
10 - 26
10.6.9 Einbau des Wafflepackwechslers
● Bevor Sie den WPW in die Maschine fahren, ziehen Sie das Kameraoberteil des BE-Vision Moduls ab.
VORSICHT
Mit den angebauten Rädern kann der WPW an der Maschine ein und ausgefahren werden. Die Räder eignen
sich jedoch nicht den WPW über längere Strecken zu transportieren. KIPPGEFAHR!
Verwenden Sie zum Transportieren den geeigneten Hubwagen (ab Artikel-Nr. 00123141-01).
● Fahren Sie den WPW vorsichtig in den vorgesehenen Stellplatz der Maschine ein. Die Andockstifte des
WPW müssen über die Andocknuten der SIPLACE stehen.
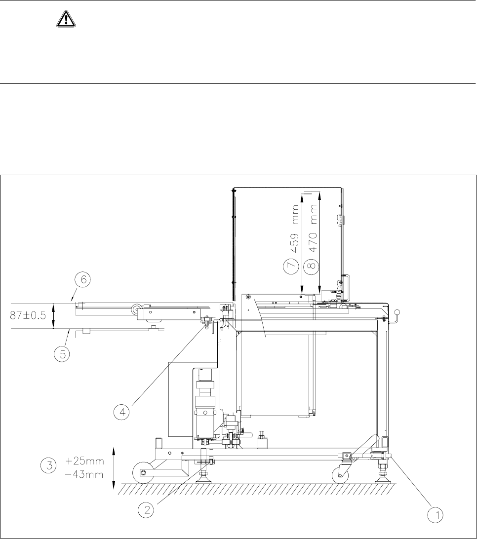
● Kontrollieren Sie das Maß (87 +/- 0,5 mm), Unterkante Magazinträger zu Oberkante BE-Tisch (siehe Abb.
10.6.5)
Abb. 10.6.5 WPW einrichten
- Legende zu Abb. 10.6.5
1 Mit Inbusschlüssel AUF/AB 2 Klemmschraube
3 Hub 4 Andockstift
5 Oberkante BE-Tisch-Magnetleiste 6 Unterkante Magazinträger
7 Nennhub (459 mm) 8 Nachfüllposition (470 mm)

Betriebsanleitung SIPLACE 80S-20/F4/F5 10 BE-Handling
Ausgabe 05/99 ab Softwareversion SR.405.xx 10.6 Wafflepackwechsler
10 - 27
● Lösen Sie die Klemmschrauben an den Füßen (siehe Abb. 10.6.5) und drehen Sie mit einem 10 mm
Kugelinnensechskantschlüssel den WPW nach unten, bis der Andockstift einrastet. Der WPW muß dabei
mit der am WPW eingebauten Maschinenwasserwaage ausgerichtet werden.
● Ziehen Sie die Klemmschrauben fest und kontrollieren Sie nochmals die Maschinenwasserwaage.
● Stecken Sie das Kameraoberteil wieder auf das BE-Vision Modul auf.
10.6.10 Technische Daten
Wafflepackwechsler
Länge ca. 1475 mm
Breite ca. 620 mm
Höhe ca. 1355 mm
Gewicht ca. 240 kg
Magazingröße 238 mm x 338 mm
Hub vertikal 470 mm
Hub horizontal 730 mm
Teilung 17 mm
Speicherinhalt 28 Magazinträger zur Aufnahme von Flächenmagazinen
Magazinträger 260 mm x 360 mm
Max. Gewicht Speicher 50 kg
Bodenbelastung < 25N/cm²
Wechselzeit (Magazin/Magazin) ≤ 3 sec.
Tab. 10.6.1
10 BE-Handling Betriebsanleitung SIPLACE 80S-20/F4/F5
10.6 Wafflepackwechsler Ausgabe 05/99 ab Softwareversion SR.405.xx
10 - 28