QE64C-E-MPA-57 - 第69页
Ref No. Remarks R 1 Q'ty 7 カ ッ テ ィ ン グユニ ット Cutting Unit イラスト No. Part No. 品 名 品番 数量 R 2 パー ツ リ スト Kit No. キ ット 品番 Kit Name キ ット 名称 KXFX036CA00 Part Name 備 考 セクション No . PARTS LIST Section No. R 3 PLATE 1 1 KXFB02G0A…

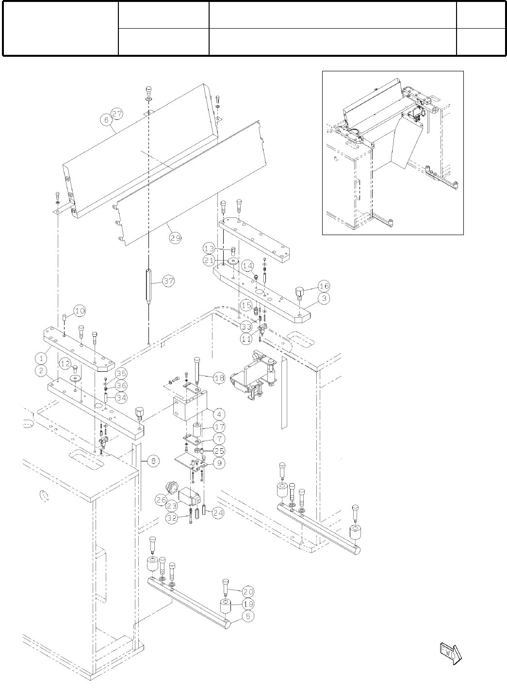
7
カッティングユニット
Cutting Unit
パーツレイアウト
Kit No.
キット
品番
Kit Name
キット
名称
KXFX036CA00
セクション
No
.
PARTS LAYOUT
Section No.
-
-
M47
( KKXFX036CA00-08 )

Ref
No.
Remarks
R
1
Q'ty
7
カッティングユニット
Cutting Unit
イラスト
No.
Part No.
品 名品番 数量
R
2
パーツリスト
Kit No.
キット
品番
Kit Name
キット名称
KXFX036CA00
Part Name
備 考
セクション
No
.
PARTS LIST
Section No.
R
3
PLATE
1
1 KXFB02G0A00
PLATE
1
2 N210036466AA
BLOCK
2
3 KXFB02G2A00
GUIDE
1
4 KXFB01L2B00
PLATE
1
5 KXFB01L3B00
BAR
1
6 KXFB02G3A00
PLATE
1
7 KXFB02G4A00
HOUSING
1
8 N210036462AA
CUTTER
1
9 KXFB02E0A01
PLATE
1
10 KXFB02G6A00
PIN
1
11 KXFB02G7A00
PLATE
1
12 KXFB02G8A00
PLATE
1
13 KXFB02G9A00
CUTTER
1
14 KXFB02E1A00
HOLDER
1
15 N210035700AA
CYLINDER
2
16 N510014383AA ACQ63X35-CB
LINEAR-WAY
1
17 N510014384AA HSR20YR1SSCSE+148LK(01758297U001)
BEARING
2
18 KXF0A6GAA00 4T-30203
COLLAR
2
19 KXF0DS0AA00 ABSC5-10-25.0
ROD-END
2
20 N510014419AA SAJK10C
SPEED-CONTROLLER
4
21 KXF0DLDAA00 AS2201F-02-06S-17-X252(DDA)
JOINT
1
22 KXF0A27AA00 KQL04-M6
POST
4
23 KXF0DWQ1A00 LSBRKT-14-100(DDA)
SPACER
2
24 N510017083AA BSF-430E
WASHER
1
25 KXF0DS1AA00 R16-40
BOLT
2
26 KXF02Z7AA00 MSB10-15
PIN
2
27 KXF0A4DAA00 SPP8-16
GREASE-NIPPLE
1
28 KXF0CSNAA00 GPA6A
BOLT
2
29 N510017407AA
Hexagon socket head cap screw M5X45-10.9 A2J (Trivalent)
COVER
1
30 N210028732AA
M48
-
-
( KKXFX036CA00-08 )

8-A
一括交換台車対応
ユニット
Feeder Cart Support Unit
パーツレイアウト
Kit No.
キット
品番
Kit Name
キット
名称
N610035748AA
セクション
No
.
PARTS LAYOUT
Section No.
-
-
M49
( KN610035748AA-02-1 )