FX3_MaintenanceManual_Rev1_C - 第98页
Rev1.00 维修调整要领书 12-6 12-2 . 系统盘的更换 FX-3 中,系统盘的组成分为 Solid State Disk (以下称 SSD )和 HDD 。 SSD 内装有 Windows 和 RTX 等 操作系统,属于启动盘。 HDD 内保存有 FX-3 的系统程序或参数、生产程序文件。 12-2-1 . SSD 的更换 SSD 内保存着 FX-3 系列工作所需的 Windows 和 RTX 等操作系统,作为装置的启动盘…

Rev1.00
维修调整要领书
12-5
10) 请按下“Continue”按钮。
11) 这样触模式面板的操作就结束了。
为了使 C 驱动器的变更有效,用指令运行“ewfmgr c:-commit”后请关闭。

Rev1.00
维修调整要领书
12-6
12-2. 系统盘的更换
FX-3 中,系统盘的组成分为 Solid State Disk(以下称 SSD)和 HDD。SSD 内装有 Windows 和 RTX 等
操作系统,属于启动盘。HDD 内保存有 FX-3 的系统程序或参数、生产程序文件。
12-2-1. SSD的更换
SSD 内保存着 FX-3 系列工作所需的 Windows 和 RTX 等操作系统,作为装置的启动盘。同时,该盘内
容储存在安装于控制装置内的 CPU BOARD 上。
更换 SSD 时,请一定按照手册的程序实施。
12-2-1-1. 需要部件
① FX-3 Environment Disk(SSD)
FX-3 必须要有 FX-3 Environment Disk(内含 Windows 和 RTX 等本装置工作所需的 OS 环境)。
表 12-2-1-1 SSD 的货号
言語 OS 品名 品番
共同(日·英·中) WindowsXP Environment DISK(FX-3) 40047575

Rev1.00
维修调整要领书
12-7
12-2-1-2. 更换方法
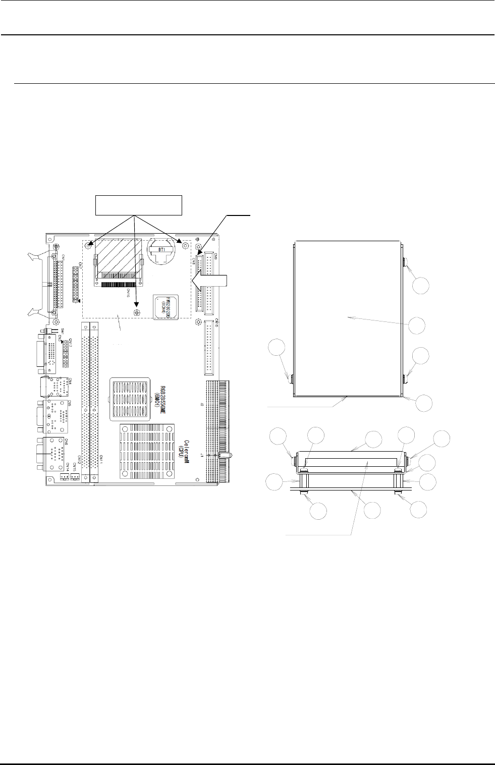
1) 请从控制装置中拆下①CPU BOARD。
2) 请从③SSD 的插接器上拆下⑦SSD I/F CABLE ASM 的连接器。
3) 取下⑥螺钉(3 处),从②SSD BRACKET 上拆下 SSD。
4) 安装时,请按照相反的程序进行安装。
CPU BOARD
A矢視図
CN8
A矢視
6
1
4
2
4
5
5
6 ×2
×2
×2
×2
コネクタ接続部
5
5
3
6
6
3
6
2
コネクタ接続部
記号④取付穴
① CPU BOARD 1个
② SSD BRACKET 1个
③ SSD 1个
④ 电路板双头螺栓 3个
⑤ 有头螺钉 M2.5×5 6 个
⑥ 有头螺钉 M3×6 3 个
⑦ SSD I/F CABLE ASM 1个
记
号
④
安装孔
A向视
HDD(硅盘)安装区
插接器连接处
插接器连接处
A
向视图