TR8S_TR8SR-Rev02 - 第23页
- - REF . NO NO TE PA RT NO D E S C R I P T I O N Q ty 1 4 01 -8 3026 Y_J O IN T_BR _L 2 2 W P -04 308 01 -SC WAS HE R M4 2 0 3 S L -60 408 92 -TN BO LT 2 0 4 4 01 -8 30 86 Y_BA SE_L 1 5 S L -40 408 91 -SC S CRE W M4 L…

- -
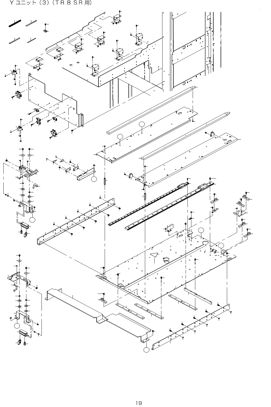
10. Y UNIT(3)(FOR TR8SR)
3
2
3
5
5
6
7
8
9
4 2
4 3
3 4
4 0
3 8
3 9
3 8
3 9
3 5
3 6
3 6
3 6
3 3
3 2
3 1
2 9
4 1
3 7
3 6
3 5
5 8
5 9
5 7
5 1
5 2
5 3
5 3
5 3
5 0
4 9
4 6
5 3
5 2
4 8
5 4
6 0
5 5
5 5
3 0
4 4
4 5
A
A
4 7
5 6
5 6
B
B
6 1
6 2
6 3
6 5
6 5
6 4
6 5
6 4
6 4
6 5
6 5
6 4
6 5
6 3
6 7
6 6
7 0
7 2
7 1
7 3
7 4
7 4
7 5
7 6
7 7
7 7
7 6
1 0
7 8
7 8
1 0
1 6
1 5
1 8
1 6
1 5
1 0
1 3
1 0
1 1
1 4
1 1
1 0
7 8
7 8
7 8
1 9
2 0
2 1
2 2
2 3
2 5
2 4
2 4
2 5
2 6
2 7
2 6
2 7
2 8
2
1 2
1 0
1 2
7 8
1 3
1
1 7
6 8
6 9
8 0
7 9
1 4
1 4
1 4
1 4
1 4
1 9
8 3 8 4
8 5
8 5
8 5
2 3
8 5
8 5
2 2
8 5
2 6
2 7
4
2
2
2
2
3
3
3
3
1
3
2
3
2
3
2
3
2
7 5
7 3
7 9
7 9
8 1
8 0
8 0
8 2
C
C
9 0
9 1
8 8
8 9
9 6
9 6
9 5
9 5
9 49 3
9 5
7 0
8 6
8 7
9 7
9 8
9 1
D
9 2
9 9
D

- -
REF.NO NOTE PART NO D E S C R I P T I O N Qty
1 401-83026 Y_JOINT_BR_L 2
2 WP-0430801-SC WASHER M4 20
3 SL-6040892-TN BOLT 20
4 401-83086 Y_BASE_L 1
5 SL-4040891-SC SCREW M4 L=8 10
6 401-83083 Y_RAIL _AL 1
7 SM-6040802-TN SCREW 9
8 401-83084 Y_RAIL _BL 1
9 SM-6030802-TN SCREW 9
10 SL-4030591-SC SCREW M3 L=5 12
11 401-52797 CMPNT SENSOR R ASM(SNI) 1
12 401-52798 CMPNT SENSOR L ASM (SNI) 1
13 401-53402 CMPNT 35.0 SENSOR ASM 1
14 SL-4031081-SC SCREW M3 X 10 12
15 401-55808 SEPARATE_SENSOR_BR 2
16 SL-4030591-SC SCREW M3 L=5 4
17 401-29057 SEPARATE SENSOR RECEIVER ASM 1
18 401-29058 SEPARATE SENSOR EMISSION ASM 1
19 SL-4031081-SC SCREW M3 X 10 4
20 401-54617 SLOW_MODE_BRACKET 1
21 SL-4040891-SC SCREW M4 L=8 4
22 PV-1303060-A0 SOLENO ID_VALVE 2
23 SL-4020581-SC WASHER SCREW 4
24 PC-0124010-00 SPEED CONTROLLER 4
25 SL-4031691-SC SCREW M3 L=16 4
26 PJ-3080400-07 UNION Y 4
27 SL-4031691-SC SCREW M3 L=16 4
28 CM-3002000-04 LABEL (50) 1
29 E1430-726-000 CYLINDER BASE L 1
30 SL-6030642-TN SCREW M3 L=6 3
31 PA-1001524-A0 AIR CYLINDER 1
32 PC-0105190-00 SPEED CONTROLLER 1
33 PJ-3010405-02 HALF UNION 4XM5 1
34 SL-6030692-TN SCREW M3 L=6 2
35 E3403-715-000 GUIDE SPACER 2
36 E3404-700-000 THRUST WASHER 4
37 400-48712 CHUCK GUIDE LH 1
38 WP-0451016-SP WASHER 4.5X20X1 2
39 SL-6040842-TN SCREW M4 L=8 2
40 WP-0430801-SC WASHER M4 1
41 E1432-726-000 CYLINDER NUT 1
42 401-57958 TR_RELEASE_DOG_LH 1
43 SM-4030501-SC SCREW M3X0.5 L=5 2
44 401-54611 SENSOR_DOG 1
45 SM-4030501-SC SCREW M3X0.5 L=5 2
46 E1440-726-000 CYLINDER BASE R 1
47 SL-6030642-TN SCREW M3 L=6 3
48 PA-1001524-A0 AIR CYLINDER 1
49 PC-0105190-00 SPEED CONTROLLER 1
50 PJ-3010405-02 HALF UNION 4XM5 1
51 SL-6030692-TN SCREW M3 L=6 2
52 E3403-715-000 GUIDE SPACER 2
53 E3404-700-000 THRUST WASHER 4
54 400-48713 CHUCK GUIDE RH 1
55 WP-0451016-SP WASHER 4.5X20X1 2
56 SL-6040842-TN SCREW M4 L=8 2
57 WP-0430801-SC WASHER M4 1
58 E1432-726-000 CYLINDER NUT 1
59 400-48715 TR RELEASE DOG RH 1
60 SM-4030501-SC SCREW M3X0.5 L=5 2
61 E1328-726-000 Y SENSOR BR 1
62 SL-4030691-SC SCREW M3 L=6 2
63 HD-0017000-00 SENSOR 2
64 HD-0017100-00 SENSOR 4
65 SM-4041001-SC SCREW M4X0.7 L=10 6
66 401-54620 CABLE_PROTECT 1
67 SL-6030692-TN SCREW M3 L=6 2
68 401-57959 Y_SENSOR_BR 1
69 SM-4040601-SC SCREW M4X0.7 L=6 1
70 E1324-726-000 Y TABLE STUD 14
71 401-83106 Y_TABLE_R_L 1
72 401-83105 Y_TABLE_L_L 1
73 SL-4030691-SC SCREW M3 L=6 14
74 401-83104 TRAY_BASE_GUIDE_RAIL_8S_L 2
75 SV-4031006-SR SCREW M3 L=10 10
76 HD-0009000-00 PHOTO SENSOR 2
77 SL-4030881-SC SCREW M3 L=8 4
78 401-54601 SENSOR_BRACKET 6
79 401-58046 Y_BASE_SUPPORT_A 3
80 SL-6040892-TN BOLT 15
81 401-58047 Y_BASE_SUPPORT_B 1
82 SL-6040892-TN BOLT 5
83 EA-9002B11-00 BUSHING L 0.26
84 HX-0066900-0A GROMMET 0.2
85 PJ-0320390-01 CONNECTOR 6
86 HX-0034400-00 HARNESS PARTS 1
87 SL-4030691-SC SCREW M3 L=6 1
88 401-81501 SEPARATE SENSOR RECEIVER ASM 1
89 401-81502 SEPARATE SENSOR EMISSION ASM 1
90 401-83109 FDS_BASE_ANGLE 1
91 401-83111 FDS_BR_S 2
92 401-86554 REGULATION_BAR_8S 1
93 HX-0066900-00 GROM MET 0.06
94 HX-0067100-00 GROM MET 0.06
95 SL-6030692-TN SCREW M3 L=6 6
96 SM-4020501-SC SCREW M2 L=5 4
97 HX-0029400-00 FIXED BASE 6
98 SM-4040601-SC SCREW M4X0.7 L=6 6
99 SL-6040892-TN BOLT 4

- -
11. E UNIT
1
2
3
9
5
1 0
1 1
4
6
7
8
1 3
1 4
1 5
1 9
1 9
2 0
2 0
1 6 1 7
1 8
1 8
2 3
2 4
2 5
2 6
2 7
2 8
2 9
3 1
3 2
3 0
3 4
3 3
3 6
3 5
3 8
3 7
3 9
4 1
4 0
4 2
4 3
4 4
4 5
4 6 4 8
4 9 5 1
5 2 5 3
5 4 5 9
5 4 5 8
6 0
6 1
2 1
6 2
6 3
6 4
6 5
6 6
6 7
6 8 7 0
7 1
7 2
7 3
7 4
7 6
8 0
7 7
7 9
7 8
8 1
8 2
8 3
8 3
8 4
8 5
8 6
8 5
8 7
8 8
8 9
9 0
9 1 1 1 7
9 2
9 5
9 4
9 3
9 6
9 8
9 9
1 0 1
1 0 2
1 0 3
1 0 4
1 0 5
1 0 6
1 0 7
1 0 8 1 0 9
1 1 0 1 1 2
1 1 4
1 1 3
1 2
7 5
2 2
A
C
D
B
A
B
C
D
9 7
1 0 0
1 1 6
1 1 5