TR8S_TR8SR-Rev02 - 第29页
- - REF.NO NOTE PART NO D E S C R I P T I O N Qty 1 401- 55490 ST_U NIT_8S 2 2 E1 504-726-000 GU IDE SH PLA TE (8) 3 E1 515-726-000 ST HANDLE ( 2) 4 E1 519-726-000 GU IDE SPAC ER ( 2) 5 E1 572-726-000 TRAY CLAM P SHEET…

- -
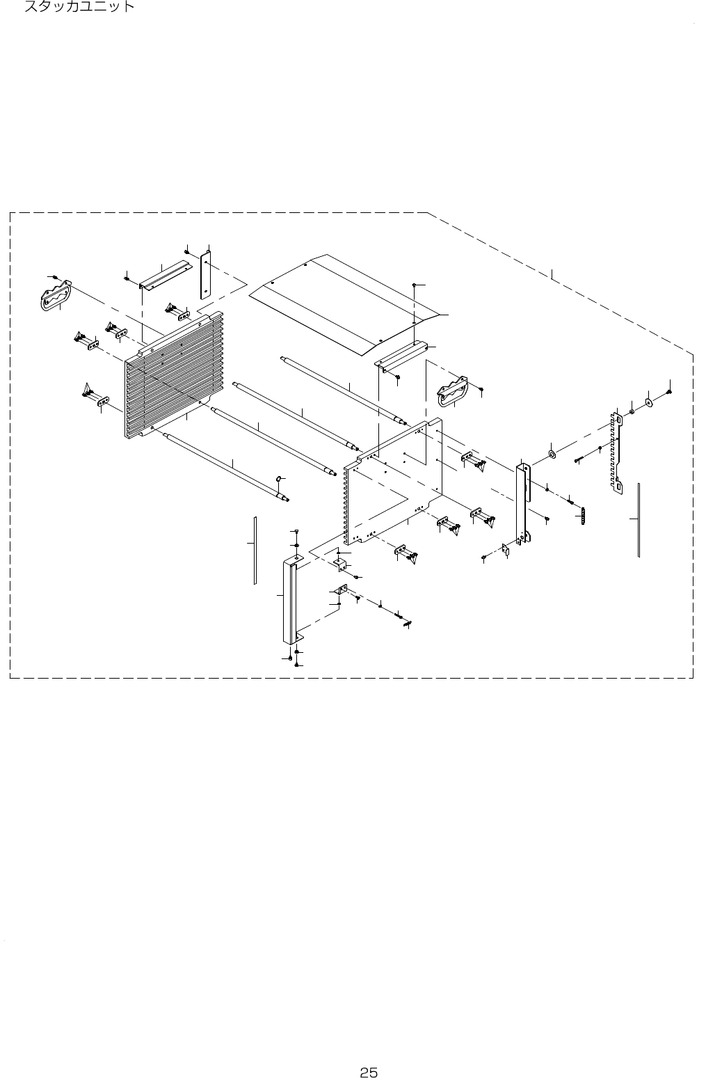
13. STACKER UNIT
1 3
1 2
2 9
2
2 2
2 2
2 2
2
2
2 2
2 9
2 9
2 9
2 1
3
2 2
3
1
2
2 2
2
2
2
2 2
5
6
7
8
9
1 0
1 1
1 9
1 1
1 9
2 6
1 4
2 6
1 4
2 2
2 4
2 0
2 2
1 5
1 7
1 8
2 0
2 4
2 0
2 2
2 2
2 2
2 2
2 3
2 5
2 2
2
2 7
2 8
2 2
4
1 6
3 1
2 2
2 2
3 1
3 0
3 2

- -
REF.NO NOTE PART NO D E S C R I P T I O N Qty
1 401-55490 ST_UNIT_8S 2
2 E1504-726-000 GUIDE SH PLATE (8)
3 E1515-726-000 ST HANDLE (2)
4 E1519-726-000 GUIDE SPACER (2)
5 E1572-726-000 TRAY CLAMP SHEET (1)
6 401-54566 STACKER_BR_L (1)
7 401-54567 STACKER_HANDLE_R (1)
8 401-54569 ST_SLIDE_PLATE (1)
9 E3040-723-000 SHUTTER SP (1)
10 E3404-700-000 THRUST WASHER (2)
11 E4560-531-000 PM LINK SC(B) H (2)
12 E4601-717-000 TRAY GUIDE L (1)
13 E4602-717-000 TRAY GUIDE R (1)
14 E4605-717-000 SHUTTER BR (2)
15 401-54732 SHUTTER (1)
16 E1512-726-000 SHUTTER PIN (1)
17 E4608-717-000 POSITION SEAL 15 (1)
18 E1503-726-000 SHUTTER SP (1)
19 SB-1040004-00 ROLLING SHAFT HOLDER (2)
20 NM-6030001-SC NUT M3X0.5 TYPE1 (3)
21 RC-0100001-KP SNAP RING M10 (1)
22 SL-6030692-TN SCREW M3 L=6 (46)
23 SM-0040801-SC SCREW (2)
24 SM-6031202-TN SCREW M3X12 (2)
25 SM-6032002-TN SCREW M3X0.5 L=20 (1)
26 WP-0320500-SC WASHER M3 (2)
27 WP-0451016-SP WASHER 4.5X20X1 (2)
28 401-54686 ST_SENSOR_DOG (1)
29 E1502-726-000 TRAY GUIDE SH (4)
30 401-61920 TOP_COVER_8S (1)
31 401-61921 TOP_COVER_BR (1)
32 SM-0030601-SC SCREW M3X0.5 L=6 (4)

- -
14. TRAY UNIT & APPEND PARTS COMPONENTS
1 6
1 1
4
5
6
7
8
1 3
9
9
1 4
1 2
1 0
1 0
1 3
2
3
1
1 7
2 1
1 9
2 2
1 8
1 4
1 2
1 5
1 5
2 0
7
8