JM-10_使用说明书 - 第801页
第 2 部 功能详解篇 第 12 章 通用图像 12 - 57 下面的画面是详 细 信息对话框 。请选择 「内容」为 VCS 识别 , 「 详细 」为 “ 正常 ” 以外的 Head , 然后按「 图像处理 」按钮。 图 12-8-5-2 详细显示对话框 显示 如下对话框 。 要在监视器 上显示图 像时, 请选 择 「显示图像」 ,然 后 按 「确定」 键。 所 选择的 贴片头画面则可 显示到监 视器上。 如果 选择 「保存文件」 ,按…

第 2 部 功能详解篇 第 12 章 通用图像
12-56
12-8-5 错误图像的显示
在操作选项中选中「发生错误时暂停」的情况下,从 如下暂停画面可以进行重新显示/保存发生
图像识别错误元件的图像。显示如下图像后,请按「详细错误」按钮。
图 12-8-5-1 暂停画面

第 2 部 功能详解篇 第 12 章 通用图像
12-57
下面的画面是详细信息对话框。请选择「内容」为 VCS 识别,「详细」为“正常”以外的 Head,
然后按「图像处理」按钮。
图 12-8-5-2 详细显示对话框
显示如下对话框。要在监视器上显示图像时,请选择「显示图像」,然后按「确定」键。所选择的
贴片头画面则可显示到监视器上。
如果选择「保存文件」,按「确定」之后,监视器显示出图像的同时,把图像保存到 HDD。
图 12-8-5-3 图像处理对话框
(注)执行「取得错误图像数据」后,就不能显示错误图像了。
因此,按了「取得错误图像数据」按钮之后,会显示如下对话框画面。如果不需要显示错误
图像,请按「是」。过去 5 次的错误图像信息被保存到 HDD。为 DFFPVCS 时,1 循环的报错图
像信息被保存在 HDD 中。如果还想显示错误图像时,请按「否」。
图 12-8-5-4 错误图像取得的确认对话框

第 2 部 功能详解篇 第 13 章 程序补充
13-1
第
13
章
程序补充
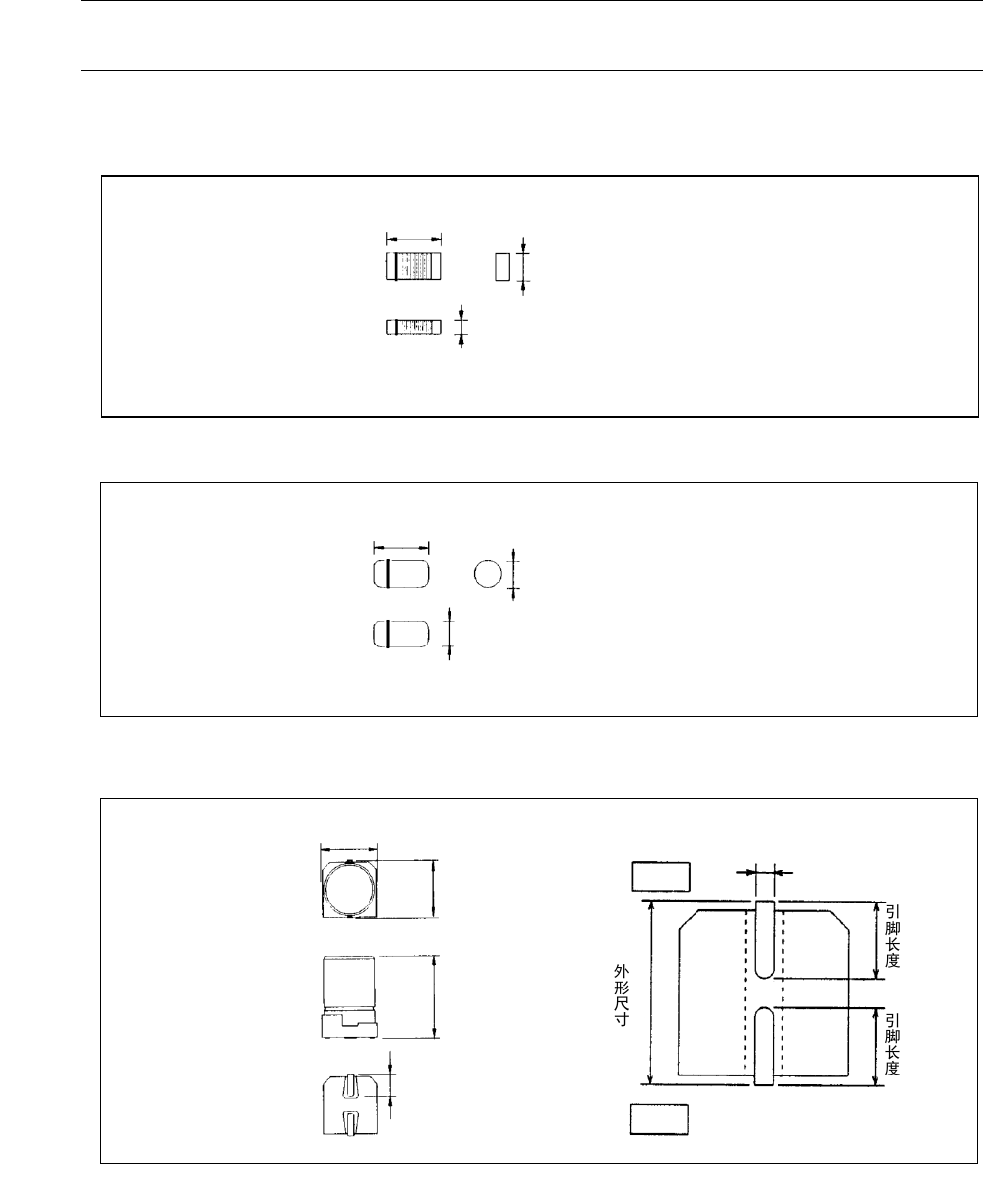
13-1 元件尺寸图例
· 方形芯片·方形芯片(LED)
· 圆筒形芯片
· 铝电解电容
外形尺寸
横
外形尺寸
纵
元件高度
外形尺寸
横
外形尺寸
纵
元件高度
外形尺寸
横
外形尺寸
纵
元件高度
引脚长度
引脚宽度
+侧
-侧