P-310-004(1_2) - 第230页
D C 330 332 344 345 332 344 345 340 346 339 346 331 344 345 339 346 352 352 330 323 317 319 320 313 315 324 324 323 312 317 302 314 302 350 342 343 301 31 1 301 332 344 345 338 346 347 337 346 347 332 318 333 344 345 304…

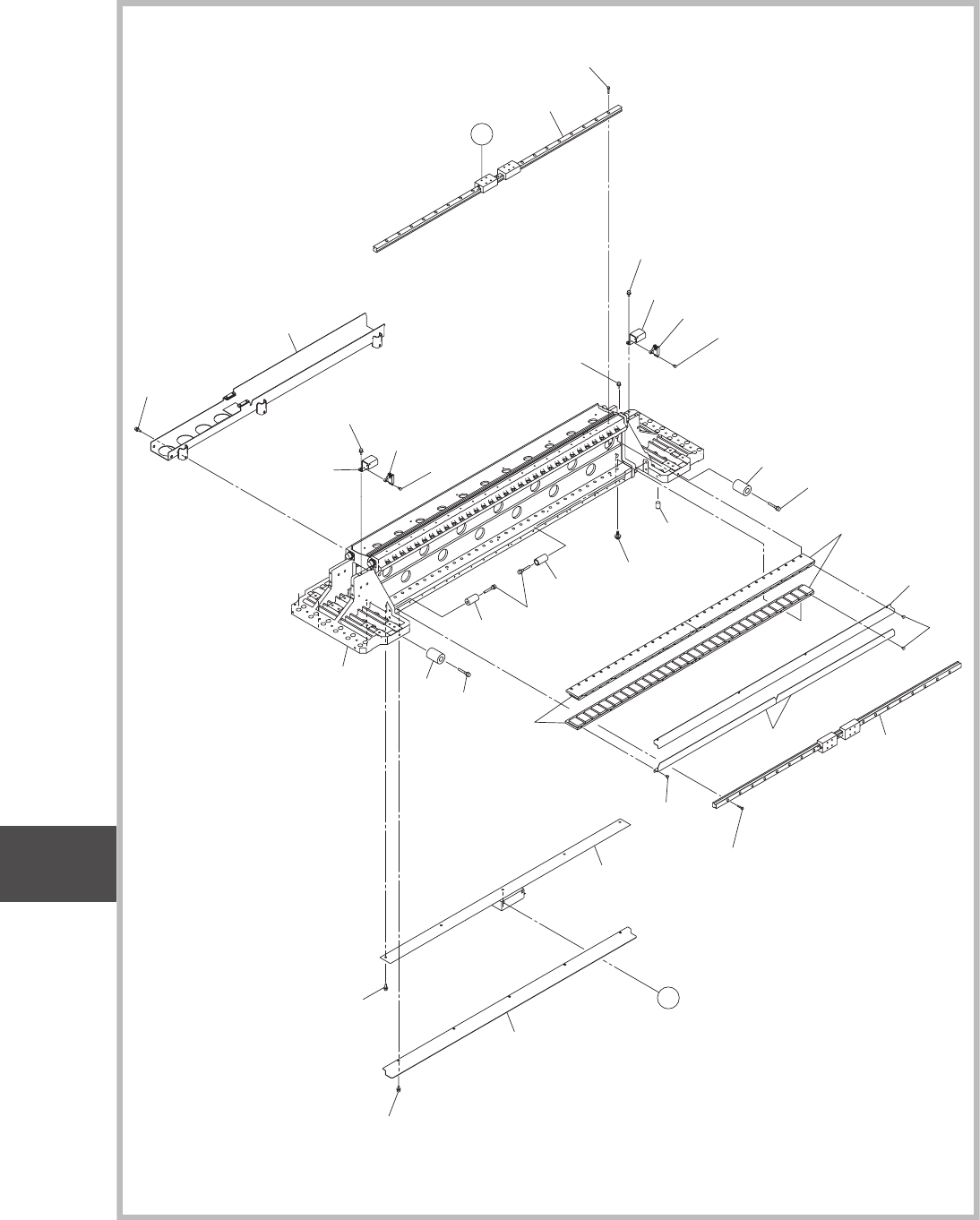
Key No. PART No. PART NAME Q’ty
REMARKS
NOTE
201 210B4485 FRAME(UPPER) 1 1 1 1 1091403A02-001
202 910B1027 FRAME(UPPER) 1 1 1 1 1091403A02-002
204 216R0358 BLOCK_LOCATE 4 4 4 4 1091403A02-004
205 221E0460 BOLT 12 12 12 12 1091403A02-005
206 221HA007 WASHER 12 12 12 12 SW8 1091403A02-006
207 221HA207 WASHER 12 12 12 12 FWS8 1091403A02-007
208 222L0935 GUIDE,LINEAR 1 1 1 1 1091403A02-008
209 221AA044 ROHS:BOLT_HEX-SCT 88 88 88 88 M6L20 1091403A02-009
Fig. E1
1104-004
Fig. E1-3
UNIT-4
Fig. E1
BEAM
SIGMA-G5SA
SIGMA-G5SB
SIGMA-G5SC
SIGMA-G5SD

D
C
330
332
344
345
332
344
345
340
346
339
346
331
344
345
339
346
352
352
330
323
317
319
320
313
315
324
324
323
312
317
302
314
302
350
342
343
301
311
301
332
344
345
338
346
347
337
346
347
332
318
333
344
345
304
350
342
343
C
346
336
354
344
345
348
346
347
332
344
345
337
346
347
354
344
345
329
341
343
329
341
343
349
355
344
345
307
306
353
321
322
316
357
356
306
308
310
309
349
305
337
346
347
303
333
344
345
305
D
355
344
345
351
342
343
337
346
347
326
325
See Fig E1-5
Key No.421
See Fig E1-5
Key No.405
See Fig E1-5
Key No.405
M21
U21
B2101
B2102
B2202
Fig. E1-4 X
ビームユニット
X Beam Unit
1104-003
Fig. E1
ビーム部
BEAM SECTION
UNIT-4
Fig. E1
BEAM

Fig. E1
1104-004
Fig. E1-4
332
344
345
C
346
336
354
344
345
348
346
347
332
344
345
337
346
347
354
344
345
329
341
343
329
341
343
349
355
344
345
307
306
353
321
322
316
357
356
306
308
310
309
349
305
337
346
347
303
333
344
345
305
D
355
344
345
351
342
343
337
346
347
326
325
See Fig E1-5
Key No.421
See Fig E1-5
Key No.405
See Fig E1-5
Key No.405
M21
B2202
UNIT-4
Fig. E1
BEAM