QP-341E-MM-07 - 第167页
37.MTU-9E シャトル(DBTN) 37.Suttle(DBTN) 番号 図番 & コード番号 個数 品名 規格 備考 材質 No. Drg.No. & Code No. QTY Description Rating Remarks Materials 1 DBTN0090 2 STOPPER ストッパ PL 2 H5289A 2 BOLT, HEX SOCKET ボルト 六角穴 M4X12L FE 3 W1…

タテx173.205
Ref.31-1
Ref.31-1
Ref.31-1
Ref.33-7
68
69
66
67
68
69
66
6
77
111
67
111
79
78
163
162
161
59
158
157
156
172
171
170
169
155
62
53
56
55
54
64
63
53
56
55
54
64
63
53
56
55
54
64
63
71
72
70
105
106
104
136
137
135
132
133
134
145
146
147
150
141
152
153
140
139
149
148
151
138
152
142
143
144
131
125
110
124
103
124
39
125
110
124
154
124
39
107
10843
112
113
114
118
33
32
65
61
60
59
58
50
52
51
42
41
40
57
34
37
38
58
61
60
42
41
40
65
164
165
42
41
40
36
35
126
46
45
44
109
126
159
160
49
48
47
A
E
F
D
C
E
F
F
E
202
92
90
27
5
25
26
24
95
94
8
10
98
97
93
2
3
4
1
1
5
2
3
4
166
7
167
168
179
101
100
15
12
30
31
127
10
8
22
127
95
94
91
29
28
19
23
76
75
74
73
115
117
116
120
119
121
18
88
102
89
80
83
82
81
129
130
128
Option
84
85
86
87
96
B
C
B
D
A
9
10
9
11
X8
200
201
174
174
173
204
203
G
G
175
184
183
177
182
176
197
199
198
188
189
187
193
186
178
181
193
196
195
194
195
196
191
192
190
184
183
182
181
185
180
205
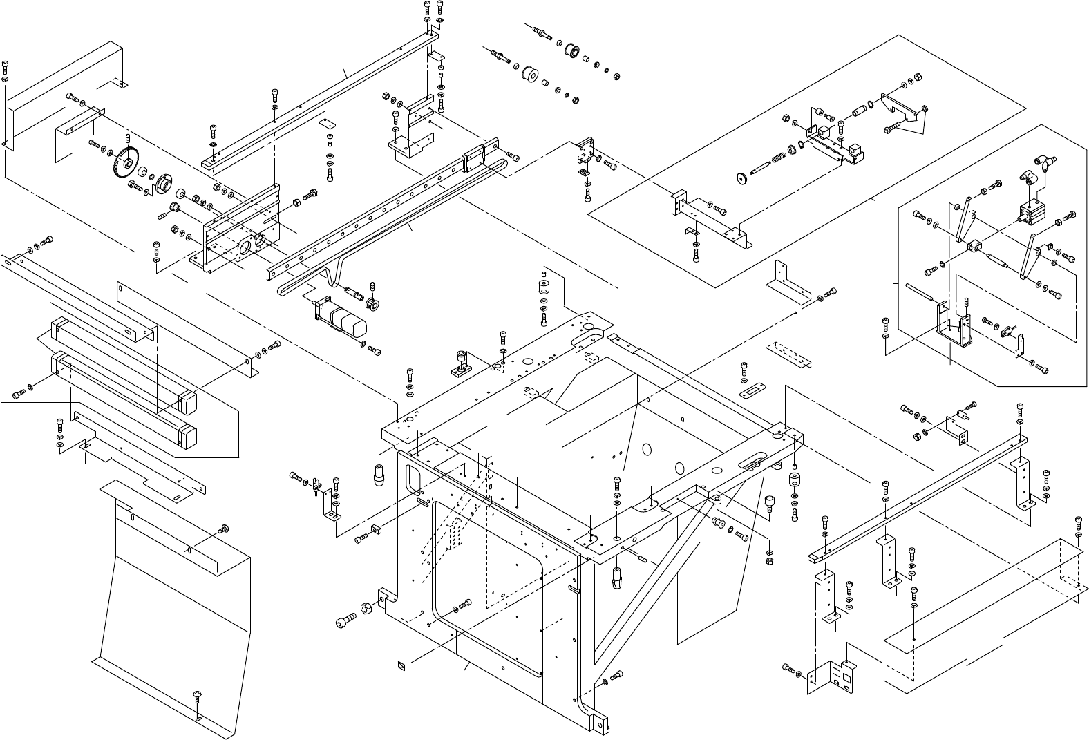
37 - 1
37.MTU-9E シャトル(DBTN)
37.MTU-9E Suttle(DBTN)
37.MTU-9E シャトル(DBTN)
37.MTU-9E Suttle(DBTN)
QP-341E -MM PARTS LIST

37.MTU-9E シャトル(DBTN)
37.Suttle(DBTN)
番号 図番 & コード番号 個数 品名 規格 備考 材質
No. Drg.No. & Code No. QTY Description Rating Remarks Materials
1 DBTN0090 2 STOPPER ストッパ PL
2 H5289A 2
BOLT, HEX SOCKET
ボルト 六角穴 M4X12L FE
3 W1022A 2
WASHER, LOCK
ワッシャ スプリング 4M/M FE
4 W1041A 2 WASHER, FLAT ワッシャ 平 4M/MX0.8X9(1W-4) FE
5 IPA5260 2 COLLAR カラー FE
6 ADBTN8221 2 PIN, CLAMP ピン クランプ OT
7 DBTN1012 1 FRAME フレーム FE
8 H5322A 2
BOLT, HEX SOCKET
ボルト 六角穴 M6X15L FE
9 H5324A 6
BOLT, HEX SOCKET
ボルト 六角穴 M6X20L FE
10 W1024A 5
WASHER, LOCK
ワッシャ スプリング 6M/M FE
11 W1013A 3
WASHER, CONICAL
ワッシャ 皿
M-6-H FE
12 H5291A 2
BOLT, HEX SOCKET
ボルト 六角穴 M4X18L FE
15 W1011A 2
WASHER, CONICAL
ワッシャ 皿
M-4-L FE
18 N1092A 2
NUT, HEX
ナット 六角 M10 P=1.5 FE
19 N4046A 1
SCREW, HEX SOCKET SET
ネジ 六角穴止め M6X8L FE
22 DBTN1020 1 PIN, LOCATING ピン 位置決め FE
23 DBTN1030 1 PIN, LOCATING ピン 位置決め FE
24 DBTN1040 1 BKT, SUPPORT BKT 支え FE
25 H5278A 1
BOLT, HEX SOCKET
ボルト 六角穴 M3X15L FE
26 W1010A 1
WASHER, CONICAL
ワッシャ 皿
M-3-L FE
27 DBTN1050 1 BKT, RETAINER BKT 押え FE
28 H5274A 2
BOLT, HEX SOCKET
ボルト 六角穴 M3X6L FE
29 W1021A 2
WASHER, LOCK
ワッシャ スプリング 3M/M FE
30 DBTN1060 1 PLATE, RETAINING プレート 押エ FE
31 DBTN1070 1 PACKING, RUBBER パッキン ゴム PL
32 DBTN1080 1 GUIDE, RAIL ガイド レール OT
33 H5287A 1
BOLT, HEX SOCKET
ボルト 六角穴 M4X8L FE
34 DBTN1090 1 BKT BKT FE
35 H5301A 4
BOLT, HEX SOCKET
ボルト 六角穴 M5X18L FE
36 W1023A 4
WASHER, LOCK
ワッシャ スプリング 5M/M FE
37 H5174A 1
BOLT, HEX
ボルト 六角 M4X40Lゼンネジ FE
38 N1080A 1
NUT, HEX
ナット 六角 M4 P=0.7 FE
39 DBTN1720 4 SHAFT シャフト FE
40 N1085A 4
NUT, HEX
ナット 六角 M6 P=1.0 FE
41 W1024A 4
WASHER, LOCK
ワッシャ スプリング 6M/M FE
42 W1045A 4 WASHER, FLAT ワッシャ 平 4W-6 FE
43 DBTN1121 1 SHAFT シャフト FE
44 DBTN1130 1 HOLDER, BEARING ホルダ ベアリング FE
45 H5170A 2
BOLT, HEX
ボルト 六角 M4X12L FE
46 W1022A 2
WASHER, LOCK
ワッシャ スプリング 4M/M FE
47 DBTN1160 1 COVER カバー FE
QP-341E-MM PARTS LIST
37 - 2
37.MTU-9E シャトル(DBTN)
37.MTU-9E Suttle(DBTN)

37.MTU-9E シャトル(DBTN)
37.Suttle(DBTN)
番号 図番 & コード番号 個数 品名 規格 備考 材質
No. Drg.No. & Code No. QTY Description Rating Remarks Materials
48 H5287A 2
BOLT, HEX SOCKET
ボルト 六角穴 M4X8L FE
49 W1022A 2
WASHER, LOCK
ワッシャ スプリング 4M/M FE
50 DBTN1170 1 BKT BKT FE
51 H5301A 2
BOLT, HEX SOCKET
ボルト 六角穴 M5X18L FE
52 W1023A 2
WASHER, LOCK
ワッシャ スプリング 5M/M FE
53 DBTN1180 3 BKT, RAIL BKT レール FE
54 H5300A 6 BOLT, HEX SOCKET ボルト 六角穴 M5X15L FE
55 W1023A 6
WASHER, LOCK
ワッシャ スプリング 5M/M FE
56 W1044A 6 WASHER, FLAT ワッシャ 平 4W-5 FE
57 DBTN1190 1 RAIL レール FE
58 H5290A 3
BOLT, HEX SOCKET
ボルト 六角穴 M4X15L FE
59 W1022A 3
WASHER, LOCK
ワッシャ スプリング 4M/M FE
60 H5275A 2
BOLT, HEX SOCKET
ボルト 六角穴 M3X8L FE
61 W1010A 2
WASHER, CONICAL
ワッシャ 皿
M-3-L FE
62 DBTN1200 1 RAIL レール FE
63 H5290A 3
BOLT, HEX SOCKET
ボルト 六角穴 M4X15L FE
64 W1022A 3
WASHER, LOCK
ワッシャ スプリング 4M/M FE
65 DBTN1210 2 BKT, STOPPER BKT ストッパ FE
66 DBTN1220 2 STOPPER ストッパ PL
67 H5275A 2
BOLT, HEX SOCKET
ボルト 六角穴 M3X8L FE
68 W1021A 2
WASHER, LOCK
ワッシャ スプリング 3M/M FE
69 W1040A 2 WASHER, FLAT ワッシャ 平 3M/MX0.5X7(1W-3) FE
70 DBTN1230 1 BKT BKT FE
71 H5274A 4
BOLT, HEX SOCKET
ボルト 六角穴 M3X6L FE
72 W1010A 4
WASHER, CONICAL
ワッシャ 皿
M-3-L FE
73 DBTN1330 1 BKT, SENSOR BKT センサ FE
74 H5289A 2
BOLT, HEX SOCKET
ボルト 六角穴 M4X12L FE
75 W1022A 2
WASHER, LOCK
ワッシャ スプリング 4M/M FE
76 W1043A 2 WASHER, FLAT ワッシャ 平 4W-4 FE
77 DBTN1350 1 PANEL, CONNECTOR パネル コネクタ FE
78 H5287A 2
BOLT, HEX SOCKET
ボルト 六角穴 M4X8L FE
79 W1022A 2
WASHER, LOCK
ワッシャ スプリング 4M/M FE
80 DBTN1361 1 BKT, SENSOR BKT センサ FE
81 H5300A 2 BOLT, HEX SOCKET ボルト 六角穴 M5X15L FE
82 W1023A 2
WASHER, LOCK
ワッシャ スプリング 5M/M FE
83 W1044A 2 WASHER, FLAT ワッシャ 平 4W-5 FE
84 DBTN1370 1 BKT, SENSOR BKT センサ Option FE
85 H5299A 2
BOLT, HEX SOCKET
ボルト 六角穴 M5X12L FE
86 W1023A 2
WASHER, LOCK
ワッシャ スプリング 5M/M FE
87 W1044A 2 WASHER, FLAT ワッシャ 平 4W-5 FE
88 DBTN1380 1 COVER カバー FE
QP-341E-MM PARTS LIST
37 - 3
37.MTU-9E シャトル(DBTN)
37.MTU-9E Suttle(DBTN)