FX-2_2C维修手册- - 第148页
维修调整要领书 13-4 Rev2.0 2 1 22 30 R L 6 RL4 RL5 R2 R1 24 26 23

维修调整要领书
13-3
Rev2.0
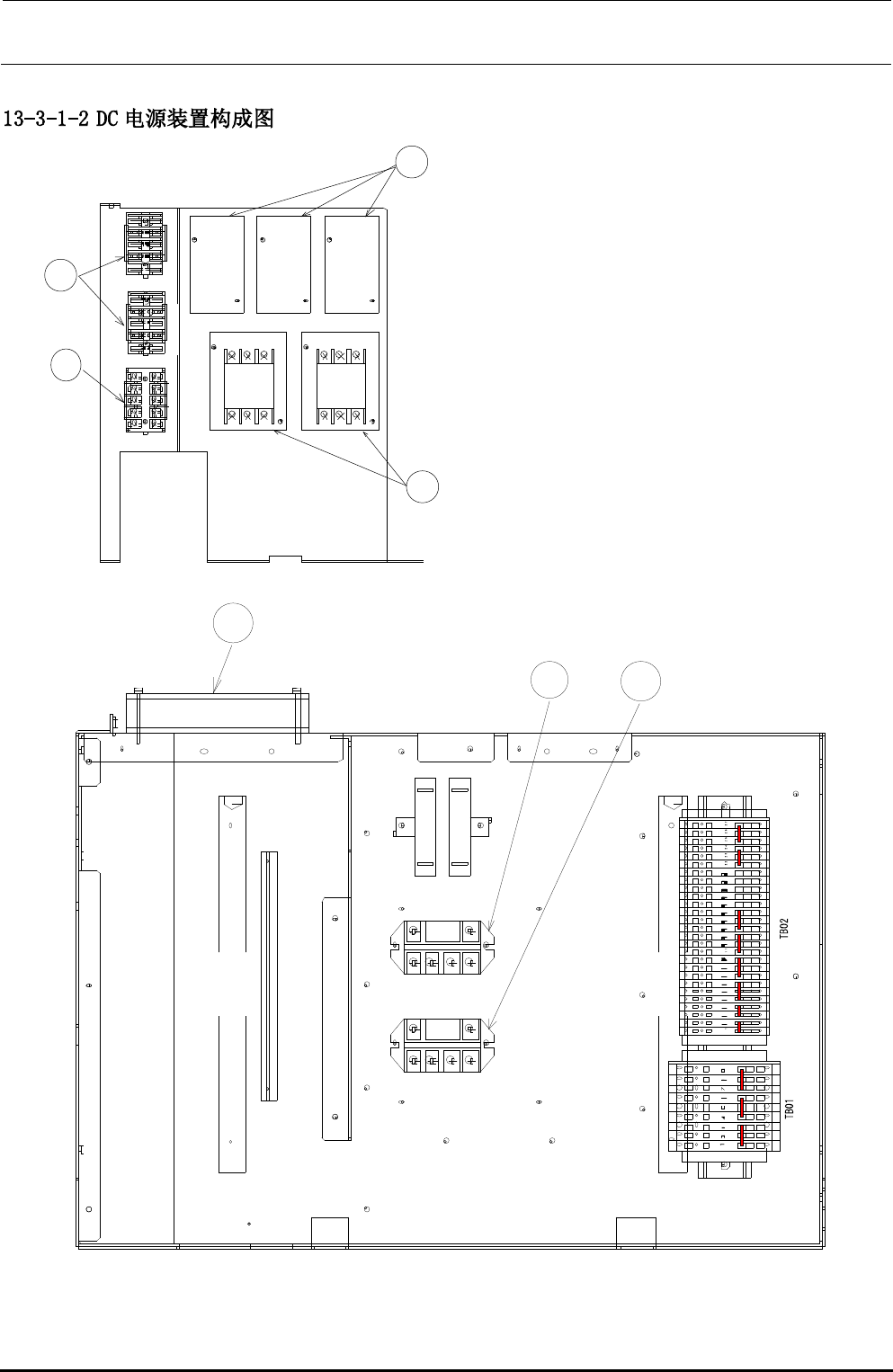
电源部分安装在装置左内侧(从背面看是右面)。图 13-3-1-1 为其组成图。
电源装置由 DC 电源,控制用的继电器,电路保护器等构成,并向各部分装置(控制装置,XY 装置,Z
θ装置,传送装置,贴装头装置等)提供 AC,DC 电源。
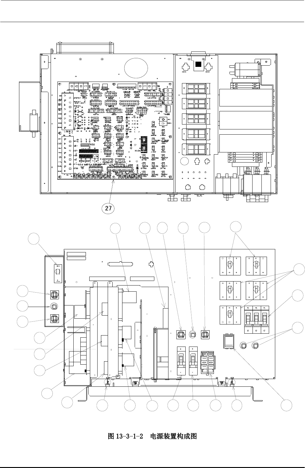
各 DC 电源的用途如下:
·-12V(-12V±0.1V,PS5) A/D 变换电路,IPX-3R 线路板
·+3.3V(+3.3V±0.1V,PS7) CPU 接口线路板,位置接口线路板(电动机控制)用,IEEE1394 线
路板
·+5V(+5.08V~5.12V,PS6) 所有线路板的逻辑电路用
·+24V(+24V±0.1V,PS2) 继电器,电磁铁阀,异步电动机,传感器,激光,信号指示灯驱动
用
·+12V(+12.4V±0.1V,PS4) 摄像头,串行通信,照明用 LED,IEEE1394 线路板
·+24V(+24V±0.1V,PS3) 安全电路驱动用(仅 EN 机)
·+6V(+6.3V~6.5V,PS8) 反馈(32mm 纸带)控制用
·+24V(+24V±0.1V,PS1) Zθ放大器(左右贴装头)用
· 从 PSU BLACKET A 和 PSU BLACKET B 引出线,以保证 DC 电源的输出电压是规格调整值,各 DC 电源
的输出电压用可变电阻器调整
· 请按表 13-3-1-1 进行 DC 电源电压调整。
24 23 22 21 20 19 18 17 16 15 14
13
12 11 10 9 8 7 6 5 4 3 2
1
1 PS2 +24.0V +24.0V±0.1V CN073 18pin(+) - 6pin(-)
2 PS4 +12.0V +12.4V±0.1V CN073 16pin(+) - 4pin(-)
3 PS5 -12.0V -12.0V±0.1V CN073 17pin(+) - 5pin(-)
4 PS6 +5.0V +5.1V±0.02V CN073 15pin(+) - 3pin(-)
5 PS7 +3.3V +3.3V±0.1V CN073 13pin(+) - 1pin(-)
6 PS8 +6.0V +6.4V±0.1V CN073 19pin(+) - 7pin(-)
7 PS1 +24.0V +24.0V±0.1V CN097 1pin(+) - 2pin(-)
旋钮调整时,请注意不要使电压超过规定调整值。
CN073-12,24,CN004-1,13 接头,绝对不能与调整指示以外的电源接地线共用(不能连接)。
2
1

维修调整要领书
13-4
Rev2.0
2
1
22
30
R L 6
RL4
RL5
R2R1
24
26
23

维修调整要领书
13-5
Rev2.0
22
12 13
11 6 8
3
4
5
6
25
15
CN097
PS1
PS2
PS6
PS3
PS7
PS4
PS8
PS5
7
8
9
10
18
29
14 20
21
17
16
19
28
29