FX-2_2C维修手册- - 第210页
维修调整要领书 15-1 Rev1.0 如下图所示,在 ATC 底座上用 SL6040892TN 带垫片 内六角螺钉固定着 FPI ASM。 卸下带垫片内六角螺钉。 ATC 底座 FPIASM SL6040892TN

维修调整要领书
14-6
○以内侧为基准时
XRYAXLYBRYBL
フレーム
上部へ
フレーム
上部へ
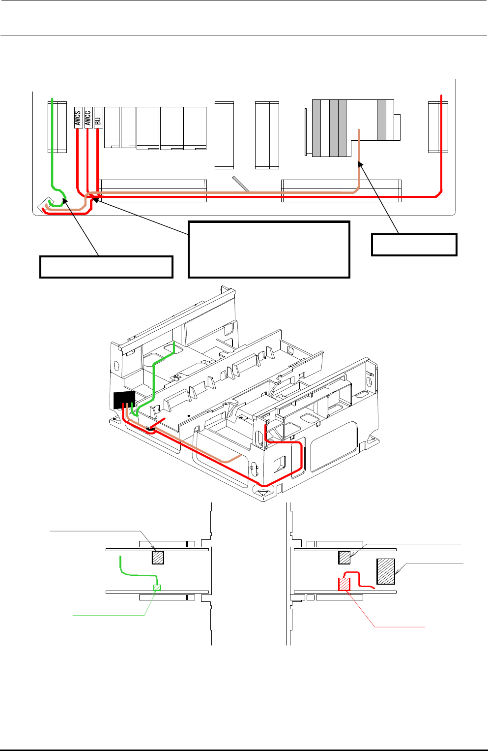
AWS MOTOR PULSE CABLE ASM
AWS ENCCABLEASM
AWCSMOTORCABLEASM
AWSCABLEASM
AWSNEARSENSORCABLEASM
往框架上部
往框架上部
LMOTOR(INMOTORASM)
RMOTOR(OUTMOTORASM)
CONVEYORPCB
AWCSNEARSENSOR
AWCSMOTOR
※ 电源接通后,请输入 MS 参数的 AWC 偏差。
Rev1.0

维修调整要领书
15-1
Rev1.0
如下图所示,在 ATC 底座上用 SL6040892TN 带垫片内六角螺钉固定着 FPIASM。
卸下带垫片内六角螺钉。
ATC 底座
FPIASM
SL6040892TN

维修调整要领书
15-2
Rev1.0
L2401F221000FPI盖U
E6033729000FPI 绝缘座
M3×3接线螺钉
M3×4 带垫片螺钉
FPI 支架
滑子
FPILED线路板组
间隔套管A
配线固定部
配线固定部
M4×6 埋头螺丝
FPI盖B
FPILEDCABLEASM 的连接器