YS12P_12F_mpl_je - 第36页
Rev . :It had a change without the compatibility . Please be careful at the time of the parts ordering. Rev.: 過去に互換性の無い変更が入った部品。部品発注時は注意してください。 No. Pa r t N o. Part N ame Q'ty Remarks Rank Leve l N o. Pa r t No. Par…

37
41
41
5
42
41
4
20
40
33
36
16
36
29
36
1
32
39
32
2
33
21
43
35
3
12
19
18
21
43
38
17
36
42
20
14
13
14
33
41
41
37
5
32
39
32
28
8
31
44
11
11
7
6
26
32
32
36
42
20
39
22
41
4
9
9
7
44
31
8
11
11
26
6
22
41
22
20
42
17
5
8
32
39
36
32
8
5
10
45
46
35
29
15
41
22
23
23
R>L
16
33
40
10
L>R
24
47
26
26
27
27
30
30
25
34
40
24
25
26
26
27
27
30
30
34
40
47
KKD/KKJ-1204
7
3
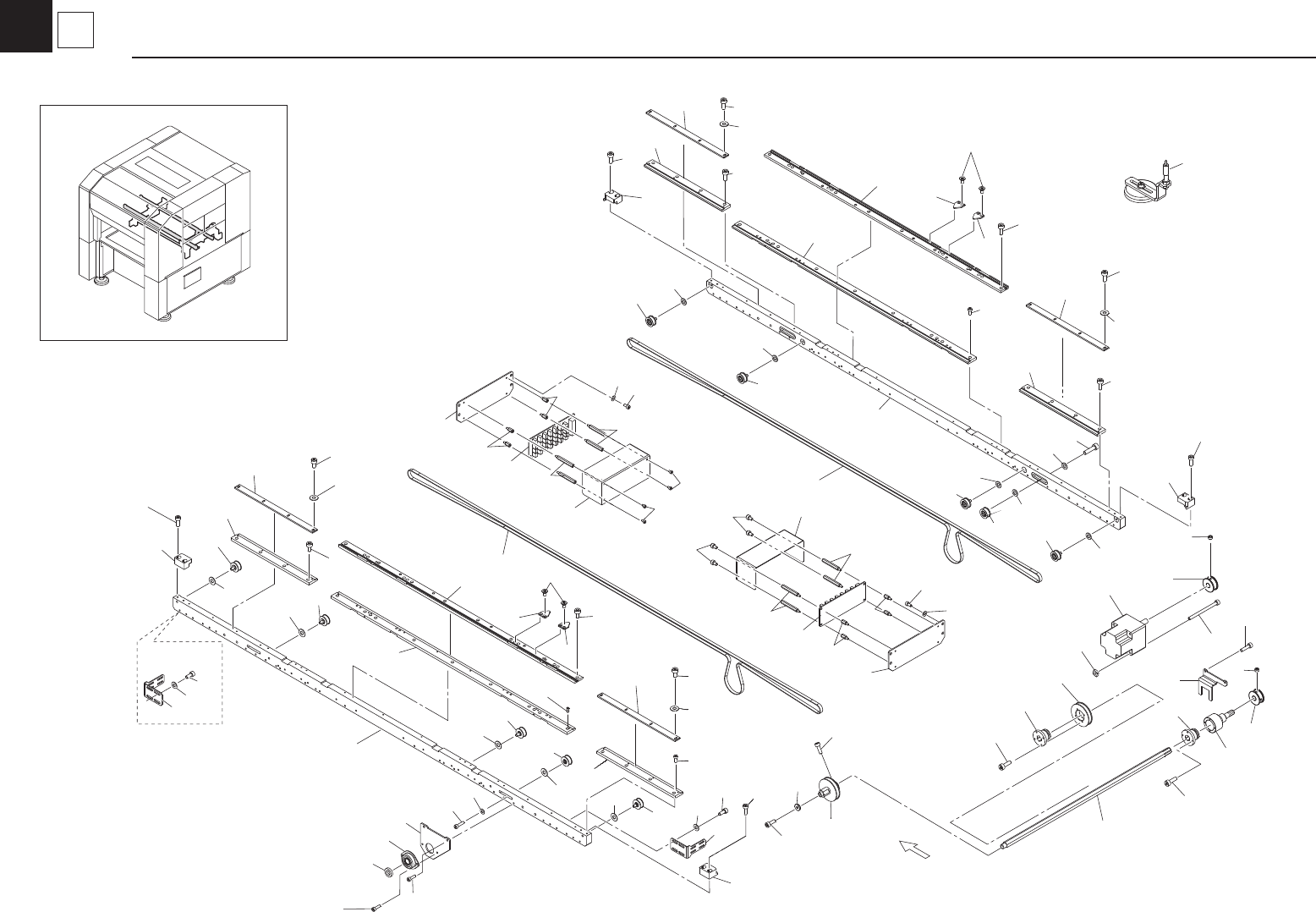
Main Conveyor
Conveyor

Rev. :It had a change without the compatibility. Please be careful at the time of the parts ordering.
Rev.: 過去に互換性の無い変更が入った部品。部品発注時は注意してください。
No. Part No. Part Name Q'ty Remarks Rank Level No. Part No. Part Name Q'ty Remarks Rank Level
1 KHY-M9113-00 PULLEY 1,MOTOR 1 /
Í
33 91312-03010 BOLT HEX.SOCKET HEAD 8 M3X10
2 KHY-M9117-00 SPLINE 1 1 /
Í
34 91312-04008 BOLT HEX.SOCKET HEAD 8 M4X8
3 KHY-M9118-00 BRACKET F,COLLAR 1 /
Í
35 91312-04010 BOLT HEX.SOCKET HEAD 8 M4X10
4
KHY-M9121-00 FRAME,CONVEYOR 2 1250 /
Í
36 91312-04012 BOLT HEX.SOCKET HEAD 10 M4X12
KHY-M9121-10 FRAME,CONVEYOR 2 1460 /
Í
37 91312-05020 BOLT HEX.SOCKET HEAD 2 M5X20
5
KHY-M9123-00 GUIDE 1 4 1250 /
Í
38 91317-04055 BOLT HEX.SOCKET HEAD 4 M4X55
KHY-M9123-10 GUIDE 1 4 1460 /
Í
39 92902-03200 WASHER PLAIN 16
6
KHY-M9124-00 PLATE 1,GUIDE 2 1250 /
Í
40 92902-04200 WASHER PLAIN 11
KHY-M9124-10 PLATE 1,GUIDE 2 1460 /
Í
41 92902-05200 WASHER PLAIN 8
7
KHY-M9125-00 PLATE 2,GUIDE 2 1250 /
Í
42 92902-05600 WASHER PLAIN 4
KHY-M9125-10 PLATE 2,GUIDE 2 1460 /
Í
43 92A08-04303 SET SCREW 4
8
KHY-M9126-00 GUIDE 1-1 4 1250 /
Í
44 98702-03005 SCREW FLAT HEAD 32
KHY-M9126-10 GUIDE 1-1 4 1460 /
Í
45 KH2-M9121-00 BEARING 1 /
Í
9
KHY-M9129-00 BELT 1,CONVEYOR 2 1250 2692mm A
46 91312-04006 BOLT HEX.SOCKET HEAD 2 M4X6
KHY-M9129-10 BELT 1,CONVEYOR 2 1460 3111mm A
47 KJJ-M4554-00 TERMINAL BOARD ASSY 2 /
Í
10 KHY-M912A-01 BRKT.,SENSOR 1 /
Í
48
11 KHY-M9135-00 PLATE,EDGE 2 16 /
49
12 KHY-M9157-00 SHAFT,MOTOR 1 /
Í
50
13 KG2-M9105-00 PULLEY 1,SPLINE 1 /
Í
51
14 KG2-M9108-11 COLLAR,CONVEYOR 2 /
Í
52
15 KHY-M9111-00 BRKT.1,SPLINE 1 /
Í
53
16 KGA-M9113-00 GUIDE 1,END 2 /
54
17 KGA-M9114-00 GUIDE 2,END 2 /
55
18 KGK-M9170-00 DC MOTOR ASSY. 1 B
56
19 KGT-M9193-00 NUT PLATE 4 /
57
20 KGY-M9140-A0 PULLEY,CONV. ASSY 4 /
58
21 KH2-M9105-11 PULLEY,MOTOR:P30-3GT 2 /
59
22 KV1-M9140-A0 PULLEY CONV.ASSY.
4 /
60
23 KV7-M9140-A0 PULLEY CONV.ASSY. 2 /
61
24 KHY-M911G-00 COVER,TERMINAL 2 /
62
25 KHY-M911Y-01 PLATE,TERMINAL 2 /
Í
63
26 90563-03J100 SPACER BOLT 8 64
27 90563-03J400 SPACER BOLT 8 65
28 KHY-M920D-00 PUSH UP PIN UNIT 9 /
66
29 90990-28J076 WASHER 2 67
30 91312-03005 BOLT HEX.SOCKET HEAD 8 M3X5 68
31 91312-03006 BOLT HEX.SOCKET HEAD 16 M3X6 69
32 91312-03008 BOLT HEX.SOCKET HEAD 46 M3X8 70
KKD/KKJ-1204
7
3
Main Conveyor
Conveyor

2
5
9
2
8
10
7
3
4
8
7
6
6
5
4
2
3
7
8
8
10
7
7
10
9
1
1
1
1
1
2
1
1
1
1
1
1
1
7
10
L>R
R>L
KKD/KKJ-1204
7
4
Sensor
Conveyor