YSP20_mpl - 第58页
KKX-1306 Rev . :It had a change without the compatibility . Please be careful at the time of the parts ordering. Rev.: 過去に互換性の無い変更が入った部品。部品発注時は注意してください。 No. Part No. Part Name Q’ty Remarks Rev. Rank Level No. Part No. Pa…

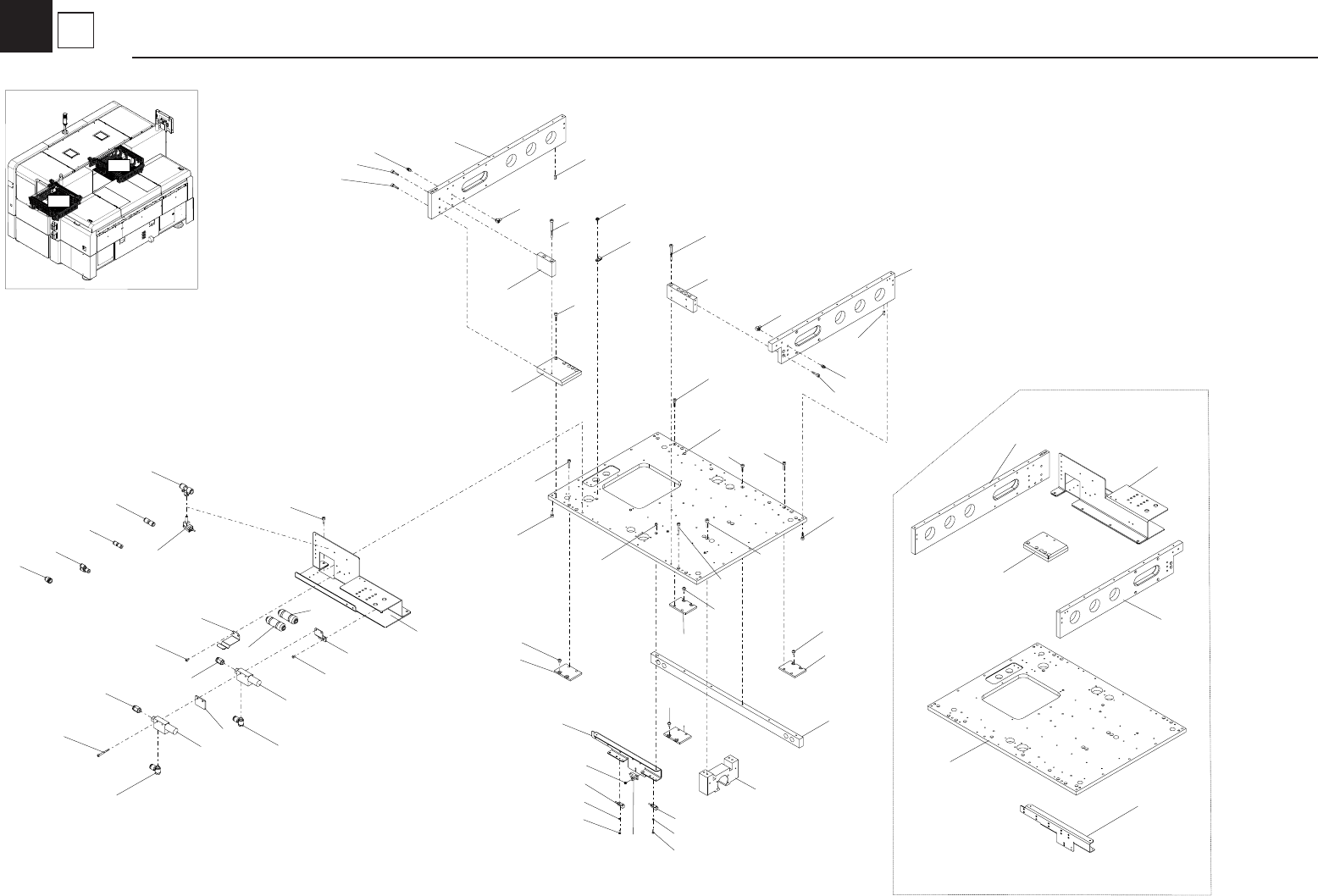
KKX-1306
lane 1
lane 2
32
44
14
49
29
13
54
61
50
42
33
53
50
36
19
45
35
7
37
52
4
17
45
22
20
10
51
23
46
45
4
31
2
3
15
1
43
45
48
21
11
40
8
26
12
3
25
47
28
17
39
10
10
51
9
38
50
64
42
14
18
45
5
10
45
49
42
19
52
36
6
50
35
42
34
8
41
63
20
24
46
45
4
30
16
3
45
60
56
48
59
27
3
62
25
57
58
55
7
6
Clamp Unit 2
Conveyor Unit

KKX-1306
Rev. :It had a change without the compatibility. Please be careful at the time of the parts ordering.
Rev.: 過去に互換性の無い変更が入った部品。部品発注時は注意してください。
No. Part No. Part Name Q’ty Remarks Rev. Rank Level No. Part No. Part Name Q’ty Remarks Rev. Rank Level
1 $NK-3N NYLON CLIP 1 39 KKX-M9232-00 BRKT.,W CABLE DUCT 2 1
l
ane 1 /
Í
2 90990-11J003 SCREW, PAN HEAD W/W 1 40 KKX-M923E-00 BRKT.,HNS. 1 lane 1 /
Í
3 91312-03004 BOLT HEX,SOCKET HEAD 8 41 KKX-M923F-00 BRKT.,HNS. 1 lane 1 /
Í
4 91312-03006 BOLT HEX,SOCKET HEAD 6 42 91312-05014 BOLT HEX,SOCKET HEAD 15
5 91312-03008
BOLT HEX,SOCKET HEAD 2 43 91312-05016 BOLT HEX,SOCKET HEAD 3
6 91312-03010
BOLT HEX,SOCKET HEAD 2
44 92012-03006 BOLT BUTTON HEAD
2
7
91312-03020 BOLT HEX,SOCKET HEAD
2
45
92902-03600 WASHER,PLAIN
16
8 91312-04006
BOLT HEX,SOCKET HEAD 4
46
98702-03008 SCREW,FLAT HEAD
4
9 91312-04008 BOLT HEX,SOCKET HEAD 2
47 98902-03004 SCREW BINDING HEAD 2
10 91312-04012 BOLT HEX,SOCKET HEAD 16 48 98902-03008 SCREW BINDING HEAD 4
11 91312-04016 BOLT HEX,SOCKET HEAD 6 49 98902-03012 SCREW BINDING HEAD 4
12 91312-05012 BOLT HEX,SOCKET HEAD 2 50 98902-04006 SCREW BINDING HEAD 7
13 KHT-M7635-00 PLATE,NUT 1 /
Í
51 99480-04012 PIN,PARALLEL 4
14 KKX-M653D-00 SENS.BACKUPPIN ASSY 1 B
Í
52 90K41-001330 LABEL,CAUTION 4
15 KKX-M653Y-00 SENS.W BRAKE ENT 1 B
Í
53 KKX-M920G-00 COVER,W GUIDE 1
lane 1
/
Í
16 KKX-M653Y-10 SENS.W BRAKE EXIT 1 B
Í
54 KKX-M9204-50 BLOCK,E-CLAMP R 1 lane 2 /
Í
17 KKX-M9204-00 BLOCK,E-CLAMP F
2
lane 1 /
Í
55 KKX-M920G-50
COVER,W GUIDE 1
lane 2
/
Í
18 KKX-M920G-10
COVER,W GUIDE
1 lane 1
/
Í
56 KKX-M920G-60
COVER,W GUIDE
1 lane 2
/
Í
19 KKX-M920J-01
BRKT.,PCB CHECK
2
/
Í
57 KKX-M920M-50
BRKT.,CLAMP UNIT 1L 1
lane 2
/
Í
20 KKX-M920K-01 FIBER 2
B
Í
58 KKX-M9212-50 LEG,E-CLAMP MOV. 1R 1 lane 2
/
Í
21 KKX-M920M-00 BRKT.,CLAMP UNIT 1L 1 lane 1 /
Í
59 KKX-M9212-60 LEG,E-CLAMP MOV. 1L 1 lane 2 /
Í
22 KKX-M920P-00 BRKT.,SENSOR W1 1 /
Í
60 KKX-M9227-51 BRKT.,PIN SENSOR R 1 lane 2 /
Í
23 KKX-M920R-00 BRKT.,SENSOR W2R 1 /
Í
61 KKX-M9232-50 BRKT.,W CABLE DUCT 2 1 lane 2 /
Í
24 KKX-M920R-10 BRKT.,SENSOR W2L 1 /
Í
62 KKX-M923E-50 BRKT.,HNS. 1 lane 2 /
Í
25 90K41-001320 LABEL,CAUTION 2 /
Í
63 KKX-M923F-50 BRKT.,HNS. 1 lane 2 /
Í
26 KKX-M920T-00 COVER,SENSOR R 1 /
Í
64
KW3-M9139-00 MASK 1
1
Slit
27 KKX-M920T-10 COVER,SENSOR L 1 /
Í
65
28 KKX-M920U-00 BRKT.,COVER 1 /
Í
66
29 KKX-M920X-00 COVER,FIBER 1 /
Í
67
30 KKX-M920X-10 COVER,FIBER 1 /
Í
68
31 KKX-M9212-00 LEG,E-CLAMP MOV. 1R 1 lane 1 /
Í
69
32 KKX-M9212-10 LEG,E-CLAMP MOV. 1L 1 lane 1 /
Í
70
33 KKX-M9213-00 BRKT.,E-CLAMP MOV.R 1 /
Í
71
34 KKX-M9213-10 BRKT.,E-CLAMP MOV.L 1 /
Í
72
35 KKX-M9216-00 PLATE,RAIL 1 2 /
Í
73
36 KKX-M9217-00 PLATE,RAIL 2 2 /
Í
74
37 KKX-M9227-01 BRKT.,PIN SENSOR R 1 lane 1 /
Í
75
38 KKX-M922B-01 BRKT.,PIN SENSOR L 1 /
Í
76
7
6
Clamp Unit 2
Conveyor Unit

KKX-1306
lane 1
lane 2
49
15
1
29
30
41
42
44
42
41
22
30
31
44
24
21
23
43
30
41
30
41
26
15
45
14
14
14
40
15
15
51
11
15
19
28
15
46
48
37
15
20
50
38
9
17
47
45
25
27
39
6
16
7
13
5
20
8
4
34
18
18
15
19
33
35
10
2
10
3
32
2
36
3
32
12
lane 2
7
7
Clamp Unit 3
Conveyor Unit