KE-3020_KE-3020R-Rev07 - 第67页
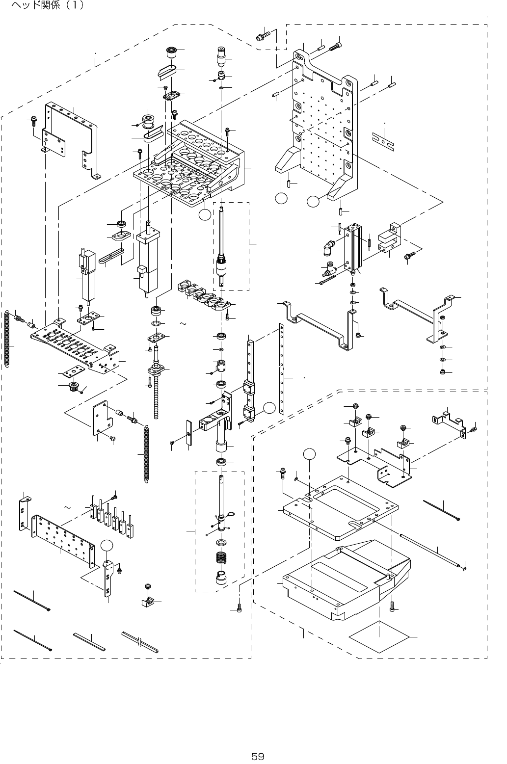
- - REF.NO NOTE PARTNO DESCRI PTION Qty 1 400-71569 LNC_HEAD_20_ASSY 1 2 #01 400-71567 LNC_HEAD_20R _ASSY 1 3 EA-9500B0 2-00 CABLEBAND150 (4) 4 E3005-729-000 LIMITDAMPERL (2) 5 EA-9500B0 1-00 CABLE…

- -
30.HEADCOMPONENTS(1)
7 8 8 1
4
1 3
A
A
B
B
5
3
8 2
8 3
8 3
8 3
1 5
1 6
1 6
1 7
3 6
2 2
2 5
2 6
2 6
2 7
2 8
2 9
3 2
3 3
3 4
3 7
3 8
3 8
3 9
4 0
4 1
4 2
4 3
4 4
4 5
4 6
4 7
4 8
4 9
5 0
5 1
5 2
5 3
5 4
5 5
5 6
5 7
5 8
5 9
6 0
6 1
6 2
6 3
6 3
6 3
6 4
6 4
6 4
6 4
6 5
7 2
7 3
9 9
1 0 1
1 0 0
1 0 2
1 0 3
9 2
9 3
9 3
9 4
9 6
9 7
1 7
C
C
6 6 7 1
3 1
1 0 2
1 0 0
1 0 0
1 0 2
1 8
9 8
8 3
8 3
8 3
7 4
7 5
7 7
9 1
1 0 4
1 4
3 5
2 0
7 6
8 4
8 5 8 6
8 7
1 0
9
8
2 4
7 8 8
3 0
9 5
1 1
1 2
1 2
1 0
9
8
9 0
7 5
7 7
7 6
6
1 9
2 1
2 3
8 9

- -
REF.NO NOTE PARTNO DESCRIPTION Qty
1 400-71569 LNC_HEAD_20_ASSY 1
2
#01
400-71567 LNC_HEAD_20R_ASSY 1
3 EA-9500B02-00 CABLEBAND150 (4)
4 E3005-729-000 LIMITDAMPERL (2)
5 EA-9500B01-00 CABLEBAND (5)
6 400-53293 ZSLIDEASM (6)
7 E3029-729-000 GUIDESHIME (3)
8 400-54879 CYLINDERNUT (2)
9 WZ-0541510-KP WAVEDWASHER5.4X9.0X0.3 (2)
10 WP-0430801-SC WASHERM4 (2)
11 400-80369 SPSUPPROT80R (1)
12
#01
400-80370 RELEASEBAR80R (1)
13 PJ-2105041-00 HALFUNION (6)
14 400-92495 NOZZLEDOWNSENSLASM (1)
15 SB-1060018-00 BEARING (6)
16 SB-1060004-00 CLUTCHBEARING (12)
17 SB-1080016-00 BEARING (12)
18 400-46051 HEADBRACKET (1)
19 400-46052 SPLINEBRACKET (1)
20 400-71804 TMOTORBR (1)
21 400-63959 SPLINEUNIT (6)
22 400-46521 TIMINGBELTT (6)
23 HX-0009600-0A EDGINGBUSH (0.12)
24 SM-3040652-TN SCREWM4L=6 (2)
25 400-46516 TPULLEY (6)
26 400-46522 TIMINGBELTZ (6)
27 400-01123 ZPULLEY (6)
28 400-01124 ZMOTORPULLEY (6)
29 400-44583 BALLSCREW (6)
30 400-44585 LINEARGUIDE (6)
31 400-46043 ZSENSORBRACKET (1)
32 400-46615 ZSENSORSTAYL (1)
33 400-81645 ZSENSORSTAYR (1)
34 400-46054 ZSENSORDOG (6)
35 400-92496 NOZZLEDOWNSENSRASM (1)
36 400-90401 CABLE_STAY (1)
37 400-46631 ZSLIDEBRACKETA (6)
38 400-46056 BEARINGPLATE (12)
39 400-46048 BEARINGBASEU (6)
40 400-46049 BEARINGBASELL (3)
41 400-46050 BEARINGBASELR
(3)
42 400-72868 TMNUTPLATE4 (6)
43 400-71805 TMFRANGE (6)
44 400-46060 ORINGH (6)
45 400-46070 CYLINDERMOUNT (2)
46 400-46515 COUPRING (6)
47 400-46525 ROTARYJOINT (6)
48 400-46524 AIRCYLINDER (2)
49 PC-0105080-00 SPEEDCONTROLLER (2)
50 PJ-3040405-04 ELBOWUNION (2)
51 SM-6020602-TN SCREWM2L=6 (48)
52 SM-6020802-TN SCREWM2L=8 (54)
53 SM-6051602-TN BOLT (8)
54 SM-6041002-TN BOLT (4)
55 SM-6030802-TN SCREW (12)
56 SL-6030842-TN SCREWM3L=8 (24)
57 SL-6031292-TN SCREWM3L=12 (12)
58 SL-6031692-TN SCREW (18)
59 SM-6031602-TN SCREWM3L=16 (24)
60 SM-6033002-TN SCREWM3L=30 (4)
61 SL-6041692-TN SCREWM4L=16 (4)
62 SM-4030801-SC SCREWM3X8 (6)
63 SM-1030552-TN PLATESCREWM3L=5 (54)
64 SM-8030312-TP SCREWM3L=3 (60)
65 SM-1020501-SC SCREW (12)
66 400-92484 Z1SLOWDOWNSENSORASM (1)
67 400-92485 Z2SLOWDOWNSENSORASM (1)
68 400-92486 Z3SLOWDOWNSENSORASM (1)
69 400-92487 Z4SLOWDOWNSENSORASM (1)
70 400-92488 Z5SLOWDOWNSENSORASM (1)
71 400-92489 Z6SLOWDOWNSENSORASM (1)
72 400-44534 SERVOMOTOR30W(ZAXIS) (6)
73 400-44533 SERVOMOTOR10W(THEATAXIS) (6)
74 400-46058 ORINGF1 (6)
75 400-58386 HEADUPSP (1)
76 SM-6041402-TN SCREWM4X0.7L=14 (1)
77 400-56921 SPRINGSTUD (1)
78 E3071-729-000 BEARINGSHIMA (6)
79 E3072-729-000 BEARINGSHIMB (6)
80 E3073-729-000 BEARINGSHIMC (6)
81 E3074-729-000 BEARINGSHIMD (6)
82 HX-0029400-00 FIXEDBASE (9)
83 PH-0400122-C0 PIN (6)
84 SL-6041492-TN SCREW (2)
85 E3047-729-000 HAEDCENTERSHIMD (3)
86 E3021-721-000 HAEDCENTERSHIMC (3)
87 400-71570 RELEASEBAR3020 (1)
88 E3028-729-000 GUIDESHIMD (3)
89 SL-6052092-TN SCREW 6
90 400-49066 LNCBRACKETASM 1
91 SM-6041402-TN SCREWM4X0.7L=14 (2)
92 400-46527 STOPPERBAR (1)
93 RE-0300000-K0 E-RING3 (2)
94 400-46547 XSCALESENSORBR (1)
95 400-46548 CABLEBAND (1)
96 SL-6030692-TN BOLT (2)
97 SL-6040892-TN BOLT (2)
98 EA-9500B01-00 CABLEBAND (3)
99 400-45547 LNC60 (1)
100 HX-0029400-00 FIXEDBASE (3)
101 SL-6041692-TN SCREWM4L=16 (1)
102 SM-4040601-SC SCREWM4X0.7L=6 (3)
103 400-46069 LNCBRACKET (1)
104 E1143-721-000 WOOLENCLOTHPAPER (1)

- -
31.HEADCOMPONENTS(2)
1
3
4
2
3
4
6
5
7
7
8
9