KE-3020_KE-3020R-Rev07.pdf - 第83页
- - REF.NO NOTE PARTNO DESCRIPTION Qty 1 SL-6041 492-TN SCRE W 2 2 SM-4040 855-SC SCREW 2 3 400-939 46 RAIL_PLATE_FL_ ASM_L 1 4 400-939 16 RAIL_PLATE_FL_ L ( 1) 5 SL-6031 492-TN SC REWM3L=14 (4) 6 E…

- -
38.PWBCONVEYORCOMPONENTS(2)
1 7
6
7
1 1
1 3
1 2
1 4
1 6
1 1
1 3
1 2
2 8
3 0
2 9
1 6
1 5
1 4
6 1
3 8
3 4
2 6
2 5
2 7
2 3
1 1
1 3
1 2
3 3
3 1
1
6 4
2 8
3 0
2 9
2 8
3 0
2 9
2 9
3 3
3 1
4 1
4 9
4 3
4 9
4 7
4 7
4 2
4 1
4 4
4 9
4 5
4 9
4 7
5 7
5 9
5 1
5 7
5 9
5 1
4 8
5 2
5 2
5 3
5 7
4 7
4 2
4 9
4 9
5 7
5 7
5 5
5 6
5 5
5 8
5 4
5 5
4 6
5 6
5 5
5 7
4 3
6 3
1 1
1 3
1 2
2 6
2 5
2 7
6 0
2 1
2
9
8
1 0
8
1 0
4 8
3 2
3 2
A
2 0
1 8
1 9
5 0
3 6
3 5
3 7
2 4
6 3
3 9
3 0
2 8
2 2
9
1 5
5
4
4 0
3
6 2
C
A
B
D
C
D
B

- -
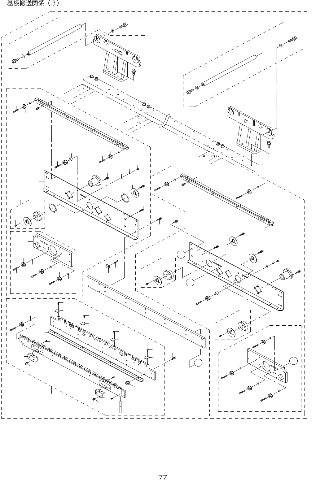
REF.NO NOTE PARTNO DESCRIPTION Qty
1 SL-6041492-TN SCREW 2
2 SM-4040855-SC SCREW 2
3 400-93946 RAIL_PLATE_FL_ASM_L 1
4 400-93916 RAIL_PLATE_FL_L (1)
5 SL-6031492-TN SCREWM3L=14 (4)
6 E2012-721-000 ADJUSTPLATE (1)
7 SL-6030692-TN SCREWM3L=6 (2)
8 E2111-715-0A0 CONVEYORPULLEYASM. (2)
9 WP-0430800-SC WASHERM4 (2)
10 SM-4040855-SC SCREW (2)
11 E2089-721-0A0 CONVEYORPULLEYBASM. (4)
12 E2055-721-000 PULLEYSPACER (4)
13 SM-4042501-SC SCREWM4X0.7L=25 (4)
14 WP-0430801-SC WASHERM4 (4)
15 WS-0410002-KN SPRINGWASHERM4 (4)
16 NM-6040001-SC NUTM4X0.7TYPE1 (4)
17 400-93924 CONVEYOR_RAIL_L (1)
18 L179E-421-000 WAITSENSORBLOCKR (1)
19 SM-8020202-UZ SCREW (1)
20 SL-6031092-TN SCREW (2)
21 E2111-715-0A0 CONVEYORPULLEYASM. 2
22 400-93947 RAIL_PLATE_FR_ASM_L 1
23 E2012-721-000 ADJUSTPLATE (1)
24 SL-6030692-TN SCREWM3L=6 (2)
25 E2111-715-0A0 CONVEYORPULLEYASM. (2)
26 WP-0430800-SC WASHERM4 (2)
27 SM-4040855-SC SCREW (2)
28 E2089-721-0A0 CONVEYORPULLEYBASM. (6)
29 E2055-721-000 PULLEYSPACER (6)
30 SM-4042501-SC SCREWM4X0.7L=25 (6)
31 WP-0430801-SC WASHERM4 (6)
32 WS-0410002-KN SPRINGWASHERM4 (6)
33 NM-6040001-SC NUTM4X0.7TYPE1 (6)
34 400-93924 CONVEYOR_RAIL_L (1)
35 L179E-421-000 WAITSENSORBLOCKR (1)
36 SM-8020202-UZ SCREW (1)
37 SL-6031092-TN SCREW (2)
38 400-93917 RAIL_PLATE_FR_L (1)
39 SL-6031492-TN SCREWM3L=14 (4)
40 400-00831 PULLEYBRAKETLASM 1
41 WS-0510002-KN SPRINGWASHERM5 (2)
42 NM-6050001-SC NUTM5X0.8TYPE1 (2)
43 SM-6052502-TN SCREW (2)
44 400-00976 PULLEYBRAKET (1)
45 E2157-721-000 PULLEYB (1)
46 E2016-715-000 IDLERPULLEY (1)
47 E2017-715-000 MLINERBUSH (4)
48 E2018-715-000 PULLEYSLEEVE (2)
49 WP-0531001-SC WASHERM5 (6)
50 400-00832 PULLEYBRAKETRASM 1
51 NM-6050001-SC NUTM5X0.8TYPE1 (2)
52 SM-6052502-TN SCREW (2)
53 400-00976 PULLEYBRAKET (1)
54 E2016-715-000 IDLERPULLEY (1)
55 E2017-715-000 MLINERBUSH (4)
56 E2018-715-000 PULLEYSLEEVE (2)
57 WP-0531001-SC WASHERM5 (6)
58 E2157-721-000 PULLEYB (1)
59 WS-0510002-KN SPRINGWASHERM5 (2)
60 WP-0430800-SC WASHERM4 2
61 SL-6041492-TN SCREW 2
62 SL-6031492-TN SCREWM3L=14 4
63 SL-6041092-TN SCREW 4
64 SL-6031492-TN SCREWM3L=14 4

- -
39.PWBCONVEYORCOMPONENTS(3)
3 4
3 5
3 6
3 7
3 4
3 5
3 9
3 8
4 1
4 0
4 8
4 4
4 6
1 9
2 0
2 1
4 2
4 3
2 5
2 6
2 7
1 0
1 0
1 8
1 1
1 6
1 4
2 2
2 3
2 1
6
7
4
5
3 0
3 1
3 2
B
7
4
5
5
4
7
2 4
2 9
9
8
1
4 2
4 3
4 2
4 3
4 2
4 3
4 7
4 5
3 7
3 3
9
2 8
1 5
8
1 7
1 3
1 2
3
2
A
B
A