QEJM6A-E-MPA-31 - 第243页
Ref No. Remarks R 1 Q't y 28-B ARカバー (フィーダ) AR COVER(FEEDER) イラスト No. Part No. 品 名 品番 数量 R 2 パーツリスト Kit No . キット品 番 Kit Name キット名称 N610023638AA Part N ame 備 考 セクションNo. PARTS LIST Section No. R 3 COVER 1 1 N210026338…

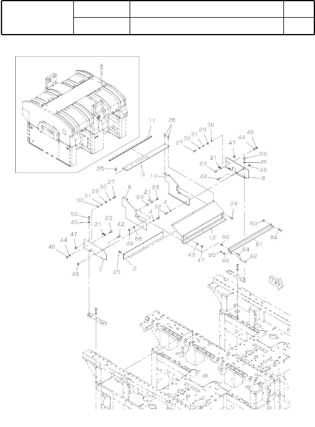
28-B
ARカバー (フィーダ)
AR COVER(FEEDER)
パーツレイアウト
Kit No.
キット品
番
Kit Name
キット名称
N610023638AA
セクションNo.
PARTS LAYOUT
Section No.
S107

Ref
No.
Remarks
R
1
Q't
y
28-B
ARカバー (フィーダ)
AR COVER(FEEDER)
イラスト
No.
Part No.
品 名品番 数量
R
2
パーツリスト
Kit No.
キット品
番
Kit Name
キット名称
N610023638AA
Part Name
備 考
セクションNo.
PARTS LIST
Section No.
R
3
COVER
1
1 N210026338AF
S
COVER
1
12 N210027713AA
BRACKET
1
13 N210027715AA
COVER
1
14 N210043328AA
BRACKET
1
15 N210064060AA
PULL
1
17 KXF0DX62A00 AP-829-2
SCREW
2
25 N510018258AA
Cross recessed Truss head machine screw M4X10-4.8 A2S (Trivalent)
SCREW
12
33 N510018282AA
Cross recessed Truss head machine screw M4X8-4.8 A2J (Trivalent)
BOLT
2
34 N510001804AA SRBS-M4X25
WASHER
8
35 N510011899AA NN-0816-10
SPACER
8
36 N510019916AA CB-503E
SPACER
4
37 N510019894AA ASF-440E
GAS-SPRING
2
38 KXF0E1VCA00
S
KSF90-10
SCREW
8
39 N510018303AA
Cross recessed Truss head machine screw M5X8-4.8 A2S (Trivalent)
WASHER
4
42 N510018497AA
Round finish plain washer 4 10H A2J (Trivalent)
WASHER
6
44 N510020100AA Thick washer for M5
NUT
2
46 N510017855AA
Hexagon nut Type-1 Best class M4-6H-4T A2J (Trivalent)
WASHER
8
50 N510018499AA
Round finish plain washer 5 10H A2J (Trivalent)
BOLT
2
52 N510017346AA
Hexagon socket head cap screw M4X12-10.9 A2J (Trivalent)
WASHER
12
53 N510013724AA TM-147-2V
COVER
1
56 N210064063AA
COVER
1
57 N210043289AA
BOLT
4
59 KXF09KJAA00 MSB10-10
WASHER
8
60 N510018506AA
Round finish plain washer (JIS B 1256:1978) 10 10H A2J (Trivalent)
NUT
2
63 N510017877AA
Hexagon nut Type-1 Best class M8-6H-4T A2J (Trivalent)
BAR
1
65 N210049616AA
STOPPER
1
66 N210049617AB
BRACKET
1
67 N210049615AC
SPACER
2
68 N510020966AA CB-512E
BOLT
8
69 N510017395AA
Hexagon socket head cap screw M5X16-10.9 A2J (Trivalent)
BOLT
2
70 N510017399AA
Hexagon socket head cap screw M5X25-10.9 A2J (Trivalent)
FRAME
1
71 N610049251AD
S
NUT-PLATE
1
72 N210066061AA
PLATE
1
73 N210066062AA
RUBBER-LEG
2
74 N980C30R-123 C-30-RK-10-UL
BOLT
2
75 N510017247AA
Hexagon socket head cap screw M2.5X8-10.9 A2J (Trivalent)
TRIM
2
76 N9866224-B98 62-24-B-5-Aluminium
SCREW
4
77 N510018291AA
Cross recessed Truss head machine screw M5X16-4.8 A2S (Trivalent)
NUT
2
85 N510017840AA
Hexagon nut Type-1 Best class M2.5-6H-4T A2J (Trivalent)
WASHER
2
86 N510018490AA
Round finish plain washer (JIS B 1256:1978) 2.5 10H A2J (Trivalent)
S108

29-A
BRカバー (フィーダ)
BR COVER(FEEDER)
パーツレイアウト
Kit No.
キット品
番
Kit Name
キット名称
N610024212AA
セクションNo.
PARTS LAYOUT
Section No.
S109