SIPLACE Line Computer UNIX - 第554页
17 Practical Tips on Using the LC UNIX User Manual Line Computer UNIX 17.3 Description of Com ponents and PC Bs Software Version 5 02.xx 10 /2000 Issue 552 I t I I Fig. 17.3.6 Placement Position Editor for PCB 2 Enter fi…

User Manual Line Computer UNIX 17 Practical Tips on Using the LC UNIX
Software Version 502.xx 10/2000 Issue 17.3 Description of Components and PCBs
551
I
t I I
To define the ink spot, proceed as follows:
140.In the Fiducial Editor activate the Insert button.
141.Click on the Fiducial set name editing field.
142.Enter a name for the new fiducial set (ink spot), here: ink.
143.Click on the OK button.
The ink fiducial set appears on the fiducial list.
144.Click on the ink fiducial set on the fiducial list.
145.Click on the Fiducial editing field.
146.Enter the fiducial number, here: 48.
147.Click on the individual editing fields for the coordinetes and enter
the coordinates (do not confirm with the Enter key), here: see chart:
148.Click on the OK button.
The data of the ink spot are transferred to the list of the fiducials of the fiducial set.
149.Activate the Ink spot fiducial set button.
150.Click on the ink fiducial set on the fiducial list.
The ink fiducial set name is preceded by an
I for ink spot.
151.Click on the Quit option on the FILE menu.
The Fiducial Editor is closed.
152.In the Cluster Editor click on the Quit option on the FILE menu.
The Cluster Editor is closed.
To create clusters and single circuits, proceed as follows: no clusters and single circuits are present.
To enter the placement positions, proceed as follows:
153.In the Component Editor activate the Select icon .
154.Click on the PCB (rectangle).
The rectangle is highlighted in green.
155.Click on the Placement Position Editor option on the SERVICES menu.
The Placement Position Editor is opened.
156.Position the cursor in the entry field and enter the placement positions in accordance with Tab. 17.3-3 on
page 17-532. The individual entries are to be separated by a blank. Every line is to be confirmed by pres-
sing the Enter key. See also Fig. 17.3.6 on page 17-552.
157.When the entry has been completed, activate the Check icon .
The values entered are checked and arranged in columns.
158.Click on the Quit option on the FILE option.
The Placement Position Editor is closed.
To save the PCB data, proceed as follows:
159.In the PCB Editor click on the Save option on the FILE menu.
The PCB data are saved.
160.Click on the Quit option on the FILE menu.
The PCB Editor is closed. The description of PCB 2 is terminated.
Fiducial number X Y
48 15 0

17 Practical Tips on Using the LC UNIX User Manual Line Computer UNIX
17.3 Description of Components and PCBs Software Version 502.xx 10/2000 Issue
552
I
t I I
Fig. 17.3.6 Placement Position Editor for PCB 2
Enter fiducial set name
# = no fiducials defined for the
placement position
b = placing
k = glueing
d = dispensing (solder paste)
n = reworking
s = blocking (from placement)
Enter number of placement
level
# = no level defined for the pla-
cement position

User Manual Line Computer UNIX 17 Practical Tips on Using the LC UNIX
Software Version 502.xx 10/2000 Issue 17.3 Description of Components and PCBs
553
I
t I I
pattern_2
pattern_1
pattern_3
pattern_4
board 1
board2
board 3
board 1
board2
board 3
board 3
board2
board 1
board 3
board2
board 1
Example_3
5
10
15
Corner
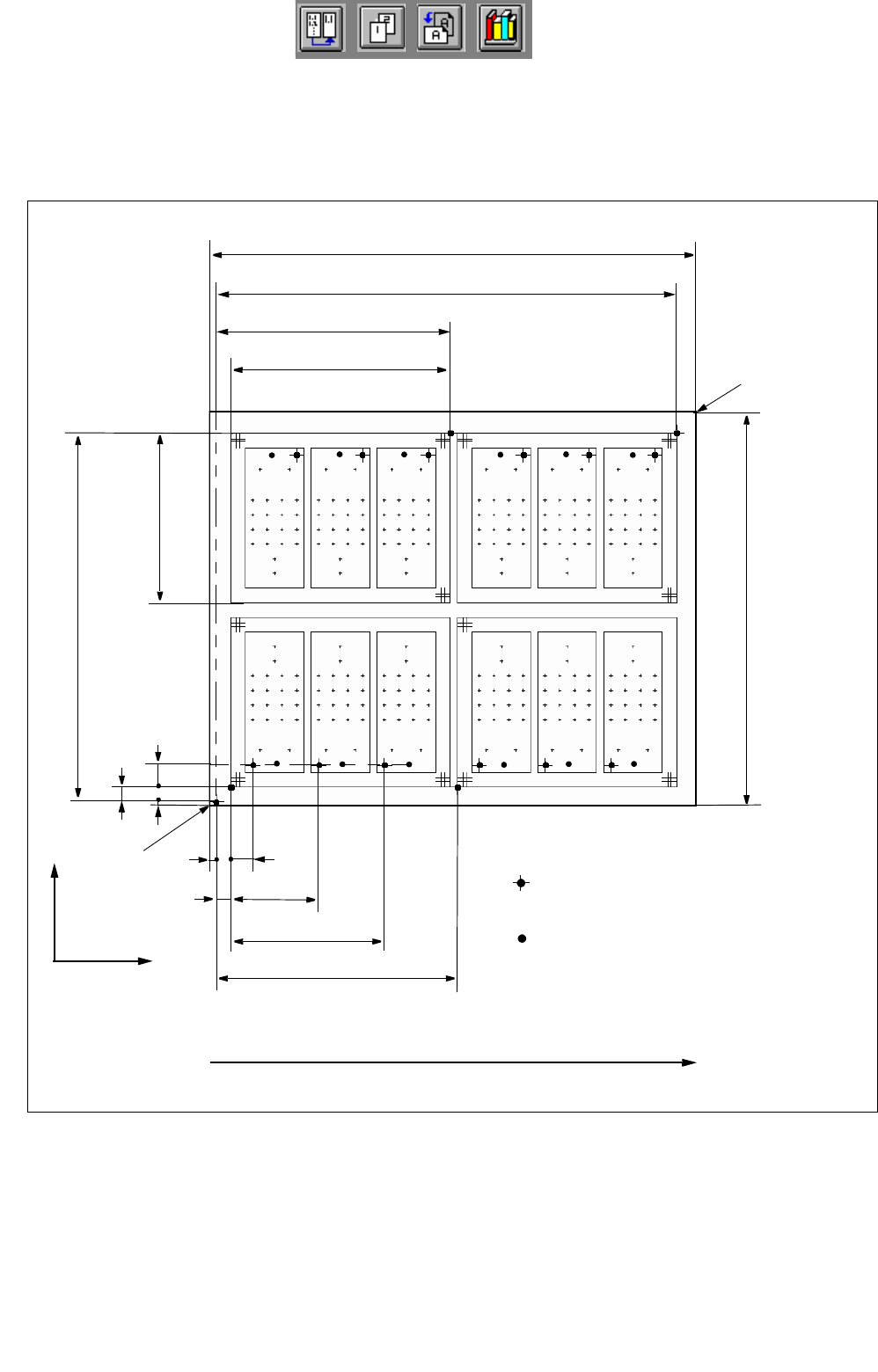
17.3.3 PCB 3: Focus on Cluster Technique
PCB 3 consists of four clusters (pattern) each of which comprises three single circuits (board). The dimensions
and the placement configuration of the single circuits corresponds to those of PCB 2. Clusters 3 and 4 are ro-
tated by 180°. For each cluster a PCB position recognition operation is performed. Three fiducials are available
in each case. An ink spot is located on each single circuit.
335
272
5
X
Y
PCB coordinate
system 0°
Direction of travel
150
116
10
15
60
105
165
Corner
PCB height= 1.5 mm
Zero point of the different levels:
PCB, cluster, single circuit
Ink spot
Fig. 17.3.7 Dimensions PCB 3
252
160
315