00191027-01 - 第386页
Istruzioni per l’uso SIPLACE 80 S/F/G 9 Manutenzione Edizione 07/97 Versione software dalla SR.010.xx 9.3 Statore della macchina 9 - 27 ● Lubrifi cate i due ingras sator i del c arrell o del colte llo c ircolar e (vedi F…

9 Manutenzione Istruzioni per l’uso SIPLACE 80 S/F/G
9.3 Statore della macchina Edizione 07/97 Versione software dalla SR.010.xx
9 - 26
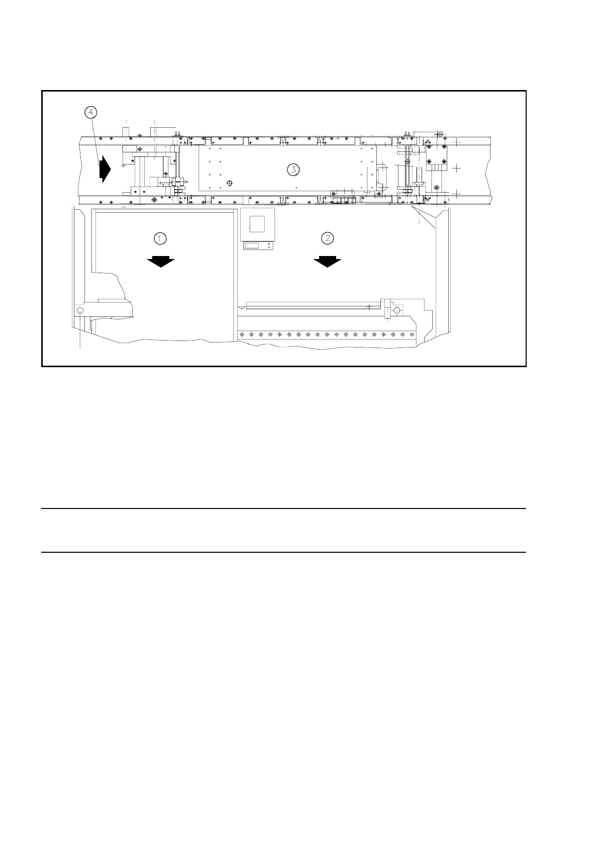
Fig. 9.3.3 Scambiatore automatico di vassoi o tavolo CO sostituibile
- Didascalia della Fig. 9.3.3
1 Scambiatore automatico di vassoi
2 Tavolo CO sostituibile
3 Trasporto centrale
4 Direzione di trasporto CS
Controllare coltello da taglio e coltello circolare, se necessario sostituirli
ATTENZIONE
OO
Non toccate lo spigolo tagliente del coltello da taglio!
Pericolo di ferite !
Eseguite un controllo a vista del coltello da taglio e del coltello circolare. Se lo spigolo tagliente è consumato
e/o se il coltello da taglio si è inserito nel coltello circolare, dovrete sempre sostituire entrambi i pezzi, come
viene descritto nelle istruzioni per l’assistenza, Capitolo „Tavolo per componenti“. Per eseguire questa opera-
zione sarà necessario apportare delle regolazioni!
Pulizia ed oliaggio della guida, ingrassaggio del coltello circolare
●
È possibile ferirsi con lo spigolo tagliente! Indossate guanti da lavoro ben robusti!
●
Pulite la guida (vedi Fig. 9.3.4, a pagina 9 - 27) con alcool., facendo particolare attenzione ad eliminare gli
ammassi di grasso e di sporcizia alle due estremità del percorso di spostamento del carrello.
Cospargete
leggermente di anticorrosivo e di antisdrucciolo WD40.
●
Per poter raggiungere tutti i punti, spostate a mano il carrello con il coltello circolare.
●
Versate un poco di materiale antisdrucciolo ed anticorrosivo WD40 su un pennello e strofinate col panno il
coltello circolare ed il coltello da taglio.

Istruzioni per l’uso SIPLACE 80 S/F/G 9 Manutenzione
Edizione 07/97 Versione software dalla SR.010.xx 9.3 Statore della macchina
9 - 27
●
Lubrificate i due ingrassatori del carrello del coltello circolare (vedi Fig. 9.3.4, a pagina 9 - 27) con un poco
di materiale Urethyn E/M2 (ca. 0,5 g + 0,25 g per ingrassatore).
Per compiere questa operazione utilizzate
l’ingrassatore a siringa.
●
Infine spostate più volte lungo la guida il carrello con il coltello circolare, in modo da spargere il grasso in
modo uniforme sulle superfici di scorrimento laterali della guida.
Ingrassaggio della cinghia dentata
●
Ingrassate leggermente con Staburags N12 la cinghia dentata per lo spostamento della slitta del coltello
circolare (vedi Fig. 9.3.4, a pagina 9 - 27) e la cinghia per il moto rotatorio del coltello circolare (vedi Fig.
9.3.4, a pagina 9 - 27).
Fig. 9.3.4 Manutenz. del dispos. di taglio per cinghia vuota (il canale della cinghia v. è smontato)
- Didascalia della Fig. 9.3.4
1 Smontaggio del tavolo CO sostituibile
2 Coltello da taglio
3 Cinghia dentata per il movimento del carrello del coltello circolare
4 Cinghia dentata per il movimento di rotazione del coltello circolare
5 Guida
6 Coltello circolare

9 Manutenzione Istruzioni per l’uso SIPLACE 80 S/F/G
9.3 Statore della macchina Edizione 07/97 Versione software dalla SR.010.xx
9 - 28
7 Ingrassatore
8 Carrello del coltello circolare in posizione di sosta
9 Cilindro ad aria compressa
10 Spigolo tagliente
A Unità A
A1 Controllo a vista: la superficie ad anello del coltello circolare è consumata?
A-A Sezione A-A, ingrandimento
A-A1 Controllo a vista: controllare il tagliente
O
!
Pericolo di ferite nel tagliente
Rimontaggio dello scambiatore automatico di vassoi
INDICAZIONE
Alternate la manutenzione del dispositivo di taglio a quella dello scambiatore automatico di vassoi.
●
Rimontate lo scambiatore automatico di vassoi (vedi Capitolo "Messa a disposizione dei componenti" di
questo manuale di istruzioni).
●
Fate attenzione alla posizione di rotazione dei caricatori ed alla giusta assegnazione dei caricatori rispetto
al supporto dei caricatori (vedi la Sezione 9.8 „Scambiatore automatico di vassoi“). La posizione dello
scambiatore automatico di vassoi viene accettata automaticamente dallo scambiatore automatico di vas-
soi dopo avere caricato un programma di montaggio con inserzione CO.
9.3.5 Unità di aria compressa, Siplace 80S ed 80F
INDICAZIONE
Gli intervalli di questi lavori di manutenzione dipendono direttamente dalla qualità dell’aria compressa utiliz-
zata. Se non rispetterete le esigenze qualitative delle specifiche dell’aria compressa si abbrevieranno gli inter-
valli di manutenzione. Per evitare che le zone vuote delle teste di montaggio si sporchino, dato che risulta
molto difficile pulirle, dovreste sostituire in ogni caso le cartucce dei filtri, prima che appaiano messaggi di
errore!
9.3.5.1 Controllare la pressione di esercizio a 5,1 bar
INDICAZIONE
Una pressione di esercizio troppo alta o troppo bassa causa innanzitutto guasti del vuoto ed ha come conse-
guenza messaggi di errore fatali con l'interruzione del processo di montaggio.
L’interruttore principale del dispositivo automatico rimane acceso per la seguente operazione.