IPC J-STD-003B - 第28页
4.3 Tests with Force Measurement Criteria 4.3.1 Test F – Wetting Balance Test: Tin/Lead Solder This test is for wetting balance testing of plated-through holes, surface conductors and attachment lands. 4.3.1.1 Apparatus …

4.2.10.1 Apparatus
4.2.10.1.1 Stencil/Screen
A stencil or screen with pad
geometry openings that are appropriate for the test speci-
men shall be used. Unless otherwise agreed upon between
vendor and user the nominal stencil thickness shall be per
Table 4-3.
4.2.10.1.2 Paste Application Tool A rubber or metal
squeegee device shall be used to distribute paste across the
stencil/screen.
4.2.10.2 Test Specimen The test specimen shall be in
accordance with 1.7. The test specimen shall be tested in
the condition that it would normally represent at the time
of assembly soldering. The test specimen surfaces to be
tested shall not be handled in such a manner as not to
cause contamination, nor shall the surfaces being tested be
wiped, cleaned, scraped or abraded.
4.2.10.3 Reflow Equipment An IR/convection reflow
oven, vapor phase reflow system, or storage oven capable
of reaching the reflow temperature of the paste shall be
used. The temperatures listed in Table 4-4 correspond to
the temperature/time duration for the solder paste. Addi-
tional time may be required to allow the test specimen
itself to reach the temperatures listed in Table 4-4. Unless
otherwise agreed upon between vendor and user the reflow
parameters shall be per Table 4-4.
4.2.10.4 Procedure Place the stencil/screen on a surface
termination area of interest, apply solder paste (see
3.2.1)onto the stencil/screen and print the stencil pattern
onto the test substrate by wiping paste over the stencil/
screen in one smooth motion using rubber or metal squee-
gee. Remove the stencil/screen carefully so as to avoid
smearing the paste print. Place test substrate on applicable
reflow equipment and conduct reflow process. After reflow,
carefully remove test specimen and allow to cool to room
temperature. Prior to examination, all test specimens shall
have the flux removed using a cleaning agent in accordance
with 3.2.3.
4.2.10.5 Evaluation
4.2.10.5.1 Magnification
Test specimens shall be exam-
ined at 10X using the equipment specified in 3.3.3.
4.2.10.5.2 Surface Evaluation – Accept/Reject Criteria
A minimum of 95% of each of the surfaces (i.e., each pad)
being tested shall exhibit good wetting. The balance of the
surface may contain only small pin holes, dewetted areas,
and rough spots provided such defects are not concentrated
in one area. For less critical applications, a smaller percent
coverage may be determined between vendor and user.
There shall be no nonwetting or exposed base metal within
the evaluated area.
Table 4-3 Stencil Thickness Requirements
Nominal
Stencil Thickness Pitch
0.10 mm [0.00394 in] <0.50 mm [<0.0197 in]
0.15 mm [0.00591 in] 0.50-0.65 mm [0.0197-0.0256 in]
0.20 mm [0.00787 in] >0.65 mm [>0.0256 in]
Table 4-4 Lead-Free Reflow Parameter Requirements
Reflow Type Temperature Time
Vapor Phase Reflow 217-240 °C [423-464 °F] 45-90 seconds dwell at reflow
IR/Convection Reflow
150-180 °C [302-356 °F] Preheat 60-120 seconds
230-250 °C [446-482 °F] Reflow 30-60 seconds
Oven 230-250 °C [446-482 °F] 2-5 minutes (until reflow is assured)
March 2007 IPC J-STD-003B
17
Copyright Association Connecting Electronics Industries
Provided by IHS under license with IPC
Not for Resale
No reproduction or networking permitted without license from IHS
--`,,```,,,,````-`-`,,`,,`,`,,`---
//^:^^#^~^^"^~"^"^:$^~#:"#:$@:~^"$^:#*~^$^~:^#*^^:^^*\\

4.3 Tests with Force Measurement Criteria
4.3.1 Test F – Wetting Balance Test: Tin/Lead Solder
This test is for wetting balance testing of plated-through
holes, surface conductors and attachment lands.
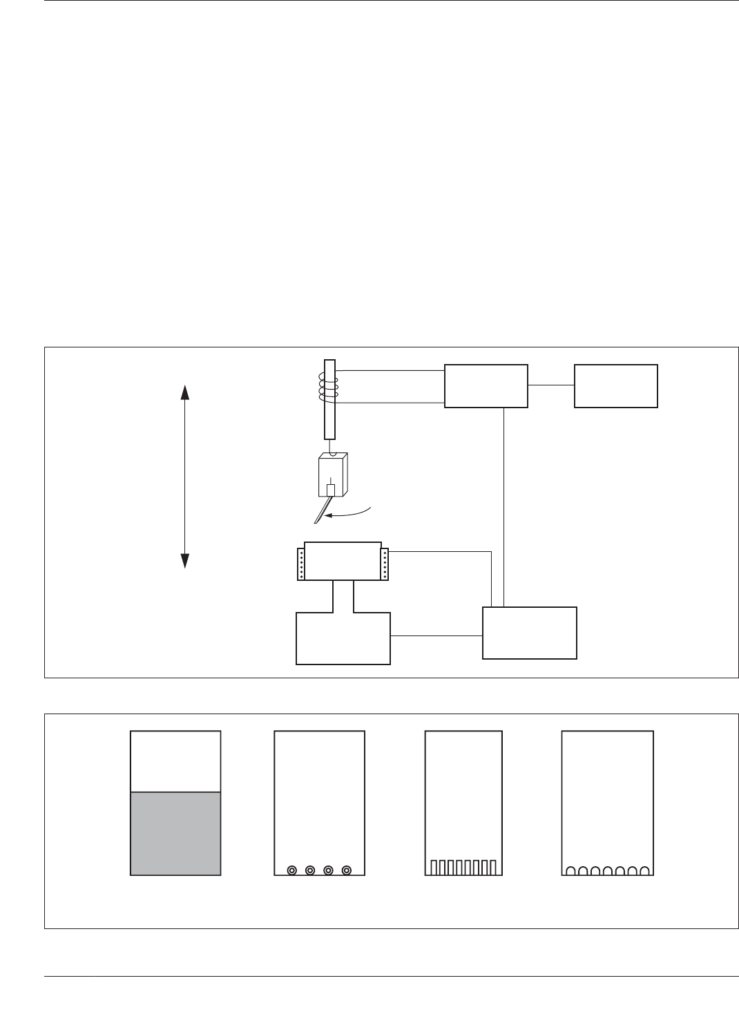
4.3.1.1 Apparatus A solder meniscus force measuring
device (wetting balance) which includes a temperature con-
trolled solder pot containing solder per 3.2.1 and main-
tained per 3.5.1 and 3.5.2 shall be used. The equipment
shall have a means of recording force as a function of time,
such as a chart recorder, data logger, or computer.
4.3.1.1.1 Dipping Device A mechanical or electrome-
chanical dipping device incorporated in the wetting balance
shall be used. The device shall be preset to produce an
immersion and emersion rate as specified in 4.3.1.3.
Thetest specimen dwell time is controlled to the time speci-
fied in 4.3.1.3 (see Figure 4-7).
4.3.1.2 Test Specimen The test specimen shall be in
accordance with 1.7. The test specimen shall either be a
full board, a section of a board, or a suggested test speci-
men as illustrated in Figure 4-8. Test specimen preparation
shall be in accordance with 3.4.
4.3.1.3 Procedure After application of the flux and par-
tial drying per 4.1, the test specimen shall be mounted on
the test equipment. After blotting away excess flux from
the test specimen with a piece of absorbent clean material,
hang it on the apparatus so that its lower edge is 10 ± 1
mm [0.394 ± 0.039 in] above the solder bath to preheat it
for 20 ± 1 seconds. The test shall be started after clearing
of the surface dross from the molten solder and a waiting
period of5±5seconds for the bath to settle down.
The flux covered surface shall be immersed only once in
the molten solder to a depth of 0.20 ± 0.1 mm [0.00787 ±
0.0039 in]. The angle of immersion shall be20°-40°.An
Chart
Recorder
Signal
Conditioner
Controls
Solder
Bath
Heater
Clamp
PWB
Specimen
Relative
Motion
LVDT
(Transducer)
IPC-003b-4-7
Figure 4-7 Wetting Balance Apparatus
Ground
Plane
Plated
Through-Holes
SM Pads SM Pads
IPC-003b-4-8
Figure 4-8 Suggested Wetting Balance Test Specimens and Soldering Immersion
IPC J-STD-003B March 2007
18
Copyright Association Connecting Electronics Industries
Provided by IHS under license with IPC
Not for Resale
No reproduction or networking permitted without license from IHS
--`,,```,,,,````-`-`,,`,,`,`,,`---
//^:^^#^~^^"^~"^"^:$^~#:"#:$@:~^"$^:#*~^$^~:^#*^^:^^*\\

angle of 90 ° may be used only upon agreement between
user and vendor on immersion angle selection. The
immersion/emersion rate shall be1mm-5mm[0.039 in
- 0.20 in] per second and the dwell time shall be 5.0 +
0/-0.5 seconds. Prior to examination, all test specimens
shall have the flux removed using a cleaning agent in
accordance with 3.2.3 (see Figure 4-9).
4.3.1.4 Evaluation This test is intended for evaluation
purposes only (see 1.3).
4.3.1.4.1 Magnification Test specimens shall be exam-
ined at 10X using the equipment specified in 3.3.3.
4.3.1.4.2 Suggested Criteria The suggested criteria sets
for solderability evaluation are listed in Table 4-5. Figures
4-10 and 4-11 illustrate the suggested criteria of Table 4-5.
In addition, the area of the test sample with fresh solder
adhesion shall be greater than the area that was immersed
in the solder bath, (i.e., the printed board shall exhibit
positive solder wetting beyond its immersion depth).
4.3.1.5 Gauge Repeatability and Reproducibility (GR&R)
Protocol
Appendix D contains a suggested GR&R proto-
col that may be used by the vendor and user to insure that
the respective wetting balance equipment are correctly cali-
brated.
Test Specimen
w
a=20º to 40º
D=0.2 ± 0.1 mm [0.0079 ± 0.0039 in]
Immersion Depth
IPC-003b-4-9
Figure 4-9 Wetting Balance Test Soldering Immersion
Table 4-5 Wetting Balance Parameter and Suggested Criteria
Parameter Description
Suggested Criteria
a
Set A Set B
T
o
Time to buoyancy corrected zero ≤1 second ≤2 second
F2
Wetting force at two seconds from
start of test
≥50% of maximum theoretical
wetting force at or before two
seconds
b
Positive value at or before two
seconds
F5
Wetting force at five seconds from
start of test
At or above the value of F2 At or above the value of F2
AA
Integrated value of area of the
wetting curve from start of test
≥ area calculated using sample
buoyancy and 50% maximum
theoretical force
c
> zero (0)
a. These suggested criteria have been established in a two-tier evaluation format with Set A being more stringent. Components meeting Set A suggested
criteria are applicable to a larger soldering process window than components meeting Set B suggested criteria. It should be recognized that components
meeting Set B suggested criteria may be completely acceptable to a larger process window but the user must determine which criteria set best integrates
into their process.
b. See Appendix A for the method of calculating the maximum theoretical force.
c. See Appendix B for the method of calculation. (It is suggested that this method of calculation be programmed into the software used for control of the wetting
balance test equipment).
March 2007 IPC J-STD-003B
19
Copyright Association Connecting Electronics Industries
Provided by IHS under license with IPC
Not for Resale
No reproduction or networking permitted without license from IHS
--`,,```,,,,````-`-`,,`,,`,`,,`---
//^:^^#^~^^"^~"^"^:$^~#:"#:$@:~^"$^:#*~^$^~:^#*^^:^^*\\