00197003-04_UM_X-Serie-S_DE - 第388页
6 Stationserweiterungen Betriebsanleitung SIPLACE X-Serie 6.8 Andockstation für den BE-Wagen SIPLACE X-Serie Ab Softwareversion 706.1 SP1 Ausgabe 10/2014 390 6 6 6.8.3 A bmessungen für die Andockst at ion mit angedocktem…

Betriebsanleitung SIPLACE X-Serie 6 Stationserweiterungen
Ab Softwareversion 706.1 SP1 Ausgabe 10/2014 6.8 Andockstation für den BE-Wagen SIPLACE X-Serie
389
6
Abb. 6.8 - 2 Andockstation - Abmessungen in Millimeter, Anschlussstellen
Legende zu Abb. 6.8 - 2, Seite 391
(1) Druckluftanschluss
(2) CAN-Bus-Anschluss
(3) Stromversorgungsanschluss
6.8.2 Technische Daten
6
Abmessungen
Länge x Breite 950 mm x 930 mm
Höhe 864 mm bei 900 mm LP-Transporthöhe
894 mm bei 930 mm LP-Transporthöhe
914 mm bei 950 mm LP-Transporthöhe
Gewicht 120 kg
Druckluftanschlusswerte
p
min
p
max
0,5 MPa (5,0 bar)
1,0 MPa (10,0 bar)
Druckluftanschluss Kupplungsstecker KS 2-M5-A

6 Stationserweiterungen Betriebsanleitung SIPLACE X-Serie
6.8 Andockstation für den BE-Wagen SIPLACE X-Serie Ab Softwareversion 706.1 SP1 Ausgabe 10/2014
390
6
6
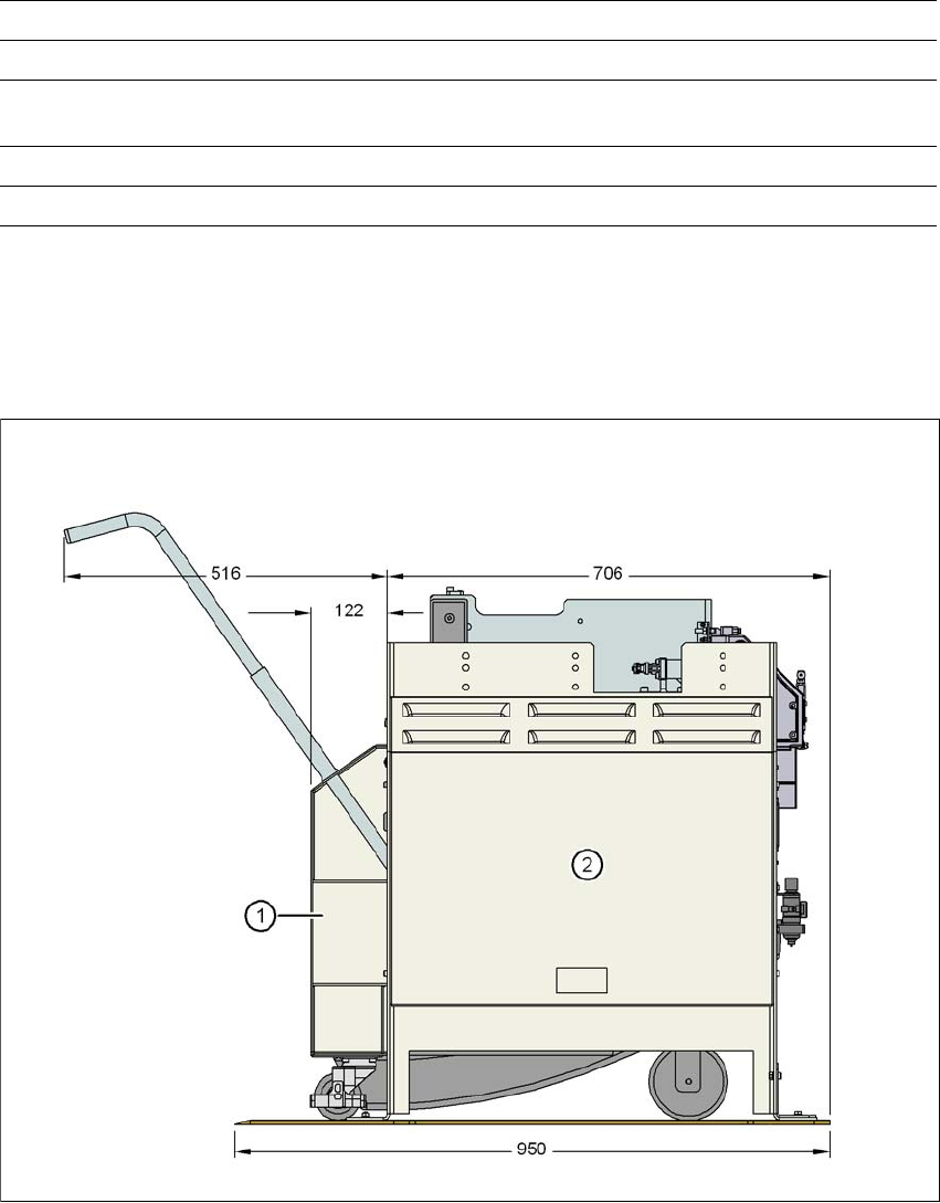
6.8.3 Abmessungen für die Andockstation mit angedocktem BE-Wagen
6
Abb. 6.8 - 3 Andockstation mit angedocktem BE-Wagen - Maße in Millimeter
(1) BE-Wagen
(2) Andockstation
Druckluftverbrauch 50 Nl/min
*a
Anschlussspannung 88 - 264 V~
Nennstrom 3,5 A (230 V~)
7 A (115 V~)
Nennscheinleistung 0,8 kW
Absicherung 2 x 8 A
*)a Unter atmosphärischen Normalbedingungen bei 20°C und 1013 hPa

Betriebsanleitung SIPLACE X-Serie 6 Stationserweiterungen
Ab Softwareversion 706.1 SP1 Ausgabe 10/2014 6.8 Andockstation für den BE-Wagen SIPLACE X-Serie
391
6.8.4 Bedien- und Anzeigeelemente
6
Abb. 6.8 - 4 Andockstation - Bedien- und Anzeigeelemente