NXT partlist - 第299页
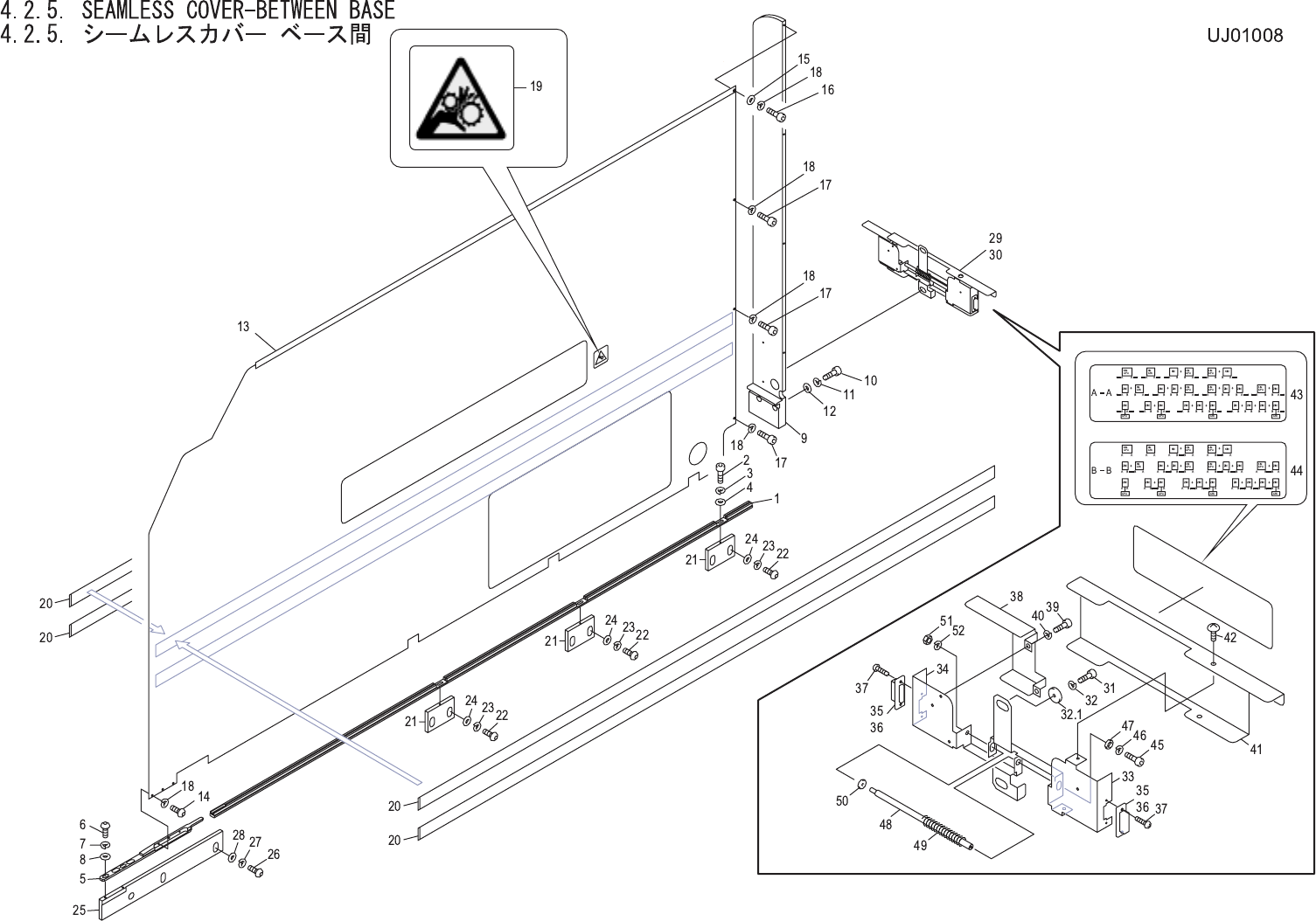
4.2.5. SEAMLESS COVER-BETWEEN BASE 4.2.5. シームレス カバー ベース間 UJ01008 No. Drg.No. & Code No. QTY Description Rating Materials Remarks 番号 図番 & コード番号 個数 品名 規格 材質 備考 1 PT00550 1 RAIL, LOWER レール 下 AL 2 H5289A 3 BOLT, HEX…

4. MODULE / モジュール 298 PTS-NXT-09JE

4.2.5. SEAMLESS COVER-BETWEEN BASE
4.2.5. シームレスカバー ベース間
UJ01008
No. Drg.No. & Code No. QTY Description Rating
Materials
Remarks
番号 図番 & コード番号 個数 品名 規格 材質 備考
1 PT00550 1 RAIL, LOWER レール 下 AL
2 H5289A 3 BOLT, HEX SOCKET ボルト 六角穴 M04X012 FE
3 W1022A 3 WASHER, LOCK ワッシャ スプリング 4M/M FE
4 W1041A 3 WASHER, FLAT ワッシャ 平 4M/MX0.8X9(1W-4) FE
5 PM55251 1 BKT, COVER BKT カバー FE
6 K5261T 2 SCREW, HEX SOCKET BUTTON 小ネジ 六角穴ボタン M05X015 FE
7 W1023A 2 WASHER, LOCK ワッシャ スプリング 5M/M FE
8 W1050A 2 WASHER, FLAT ワッシャ 平 5M/MX1.0X10(1W-5) FE
9 PM69221 1 STAND スタンド FE
10 H5342A 2 BOLT, HEX SOCKET ボルト 六角穴 M08X025 FE
11 W1025A 2 WASHER, LOCK ワッシャ スプリング 8M/M FE
12 PB29000 2 WASHER ワッシャ FE
13 PB30520 1 COVER カバー FE
14 K52565 3 SCREW, HEX SOCKET BUTTON 小ネジ 六角穴ボタン M04X006 FE
15 W1043A 1 WASHER, FLAT ワッシャ 平 4W- 4 FE
16 H5289A 1 BOLT, HEX SOCKET ボルト 六角穴 M04X012 FE
17 H5287A 3 BOLT, HEX SOCKET ボルト 六角穴 M04X008 ゼンネジ FE
18 W1022A 7 WASHER, LOCK ワッシャ スプリング 4M/M FE
19 PZ25390 2 SEAL シール PL
20 PZ13485 4 SHEET シート PL
21 PM49082 3 BKT BKT FE
22 K5261A 6 SCREW, HEX SOCKET BUTTON 小ネジ 六角穴ボタン M05X010 FE
23 W1023A 6 WASHER, LOCK ワッシャ スプリング 5M/M FE
24 W1050A 6 WASHER, FLAT ワッシャ 平 5M/MX1.0X10(1W-5) FE
25 PM51872 1 BKT BKT FE
26 K5261A 2 SCREW, HEX SOCKET BUTTON 小ネジ 六角穴ボタン M05X010 FE
27 W1023A 2 WASHER, LOCK ワッシャ スプリング 5M/M FE
28 W1050A 2 WASHER, FLAT ワッシャ 平 5M/MX1.0X10(1W-5) FE
29 AA2LW00 1 CONNECTOR コネクタ OT "With-With CPU" "CPU有有"
30 AA2LX00 1 CONNECTOR コネクタ OT
"With-Without CPU" "CPU有無"
31 H5288A 2 BOLT, HEX SOCKET ボルト 六角穴 M04X010 FE
32 W1022A 2 WASHER, LOCK ワッシャ スプリング 4M/M FE
32.1 W10922 2 WASHER ワッシャ WSSM16-4-3 FE
33 PB43611 1 BKT BKT FE
34 PB43621 1 BKT BKT FE
35 RH20110 1 HARNESS ハーネス OT "With-With CPU" "CPU有有"
36 RH20120 1 HARNESS ハーネス OT
"With-Without CPU" "CPU有無"
37 K51757 4 SCREW, C/R PAN 小ネジ 十穴鍋 M02.5X006 ステンレス FE
4. MODULE / モジュール 299 PTS-NXT-09JE

4.2.5. SEAMLESS COVER-BETWEEN BASE
4.2.5. シームレスカバー ベース間
UJ01008
No. Drg.No. & Code No. QTY Description Rating
Materials
Remarks
番号 図番 & コード番号 個数 品名 規格 材質 備考
38 PB43642 1 COVER カバー FE
39 H5286A 1 BOLT, HEX SOCKET ボルト 六角穴 M04X006 FE
40 W1022A 2 WASHER, LOCK ワッシャ スプリング 4M/M FE
41 PB43632 1 COVER カバー FE
42 K5208A 2 SCREW, C/R TRUSS 小ネジ 十穴トラス M04X006 ユニクロメッキ FE
43 PZ20700 1 SEAL シール PL "With-With CPU" "CPU有有"
44 PZ20710 1 SEAL シール PL
"With-Without CPU" "CPU有無"
45 H5274A 1 BOLT, HEX SOCKET ボルト 六角穴 M03X006 FE
46 W1021A 1 WASHER, LOCK ワッシャ スプリング 3M/M FE
47 W1087X 1 WASHER ワッシャ WSSB10-3-2 FE
48 PM74220 1 SHAFT シャフト FE
49 S3019R 1 SPRING スプリング WY8-70 OT
50 W1087Z 1 WASHER ワッシャ WSSB10-6-2 FE
51 N1080A 1 NUT, HEX ナット 六角 M 4 P=0.7 FE
52 W1022
A
1 WASHER, LOC
K
ワッシャ ス
プ
リン
グ
4M/M FE
4. MODULE / モジュール 300 PTS-NXT-09JE