NXT partlist - 第329页
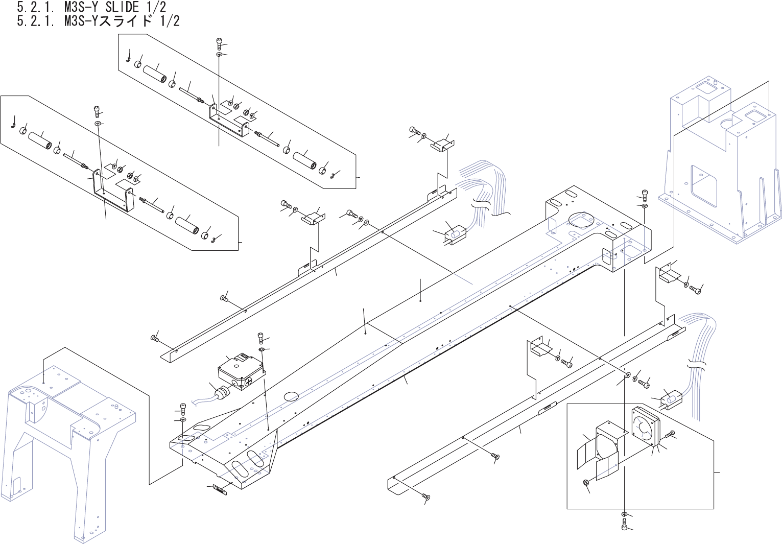
5.2.1. M3S-Y SLIDE 1/2 5.2.1. M3S-Yスライド 1/2 US00466 No. Drg.No. & Code No. QTY Description Rating Materials Remarks 番号 図番 & コード番号 個数 品名 規格 材質 備考 1 PM72132 1 FRAME フレーム FE 2 H5341A 8 BOLT, HEX SOCKET ボルト 六角穴 M08X…

A
B
B
A
A
6
7
9
12.1
12
11
15.1
15
14
1
2
3
4
5
48
30
33
33
36
37
37
36
38
38
36
36
39
42
42
45
46
46
45
47
47
45
45
43
43
44
44
15.1
15
14
16.1
16.2
16
20
7
12.1
12
11
13.1
13.2
13
9
8
34
34
35
35
18
19
17
21
22
23
24
26
28
27
29
29.1
38.1
31
32
41
40
52
53
52
53
22
US00466
5. XY-ROBOT / XYロボット 328 PTS-NXT-09JE

5.2.1. M3S-Y SLIDE 1/2
5.2.1. M3S-Yスライド 1/2
US00466
No. Drg.No. & Code No. QTY Description Rating
Materials
Remarks
番号 図番 & コード番号 個数 品名 規格 材質 備考
1 PM72132 1 FRAME フレーム FE
2 H5341A 8 BOLT, HEX SOCKET ボルト 六角穴 M08X020 FE
3 W1025A 8 WASHER, LOCK ワッシャ スプリング 8M/M FE
4 H5341A 8 BOLT, HEX SOCKET ボルト 六角穴 M08X020 FE
5 W1025A 8 WASHER, LOCK ワッシャ スプリング 8M/M FE
6 PB18321 1 GUIDE, HOLDER ガイド 受け FE
7 K5357T 2 SCREW, HEX SOCKET COUNTERSUNK 小ネジ 六角穴皿 M03X008 FE
8 PB18311 1 GUIDE, HOLDER ガイド 受け FE
9 K5357T 2 SCREW, HEX SOCKET COUNTERSUNK 小ネジ 六角穴皿 M03X008 FE
11 PB18341 2 RETAINER, WIRING 押え 配線 FE
12 H5276A 4 BOLT, HEX SOCKET ボルト 六角穴 M03X010 FE
12.1 W1021A 4 WASHER, LOCK ワッシャ スプリング 3M/M FE
13 H5277A 1 BOLT, HEX SOCKET ボルト 六角穴 M03X012 FE
13.1 W1021A 1 WASHER, LOCK ワッシャ スプリング 3M/M FE
13.2 W1042A 1 WASHER, FLAT ワッシャ 平 4W- 3 FE
14 PB18351 2 RETAINER, WIRING 押え 配線 FE
15 H5276A 4 BOLT, HEX SOCKET ボルト 六角穴 M03X010 FE
15.1 W1021A 4 WASHER, LOCK ワッシャ スプリング 3M/M FE
16 H5277A 1 BOLT, HEX SOCKET ボルト 六角穴 M03X012 FE
16.1 W1021A 1 WASHER, LOCK ワッシャ スプリング 3M/M FE
16.2 W1042A 1 WASHER, FLAT ワッシャ 平 4W- 3 FE
17 AA892** 1 FAN ファン OT
18 H5288A 2 BOLT, HEX SOCKET ボルト 六角穴 M04X010 FE
19 W1022A 2 WASHER, LOCK ワッシャ スプリング 4M/M FE
20 PB17621 1 BKT BKT FE
21 H3012G 1 FAN ファン 109R0824G402 OT
22 H3012H 2 GUARD, FIN ガード フィン 109-1002G OT
23 K51996 4 SCREW, WASHER ASS'Y 小ネジ 座金組込み M04X040 ナベセムス P3 FE
24 N1079A 4 NUT, HEX ナット 六角 M 4 (ザツキ) FE
26 S31935 1 SW, LIMIT SW リミット D4NL-1HFG-B OT
27 H5295A 3 BOLT, HEX SOCKET ボルト 六角穴 M04X035 FE
28 W1011A 3 WASHER, CONICAL ワッシャ 皿 M-4-L FE
29 N2029Z 1 NIPPLE ニップル STR13.5 OT
29.1 AA556** 1 ROLLER ローラ OT
30 PP01420 1 BKT, ROLLER BKT ローラ FE
31 H5288A 2 BOLT, HEX SOCKET ボルト 六角穴 M04X010 FE
32 W1022A 2 WASHER, LOCK ワッシャ スプリング 4M/M FE
33 PM18852 2 PIN ピン FE
5. XY-ROBOT / XYロボット 329 PTS-NXT-09JE

5.2.1. M3S-Y SLIDE 1/2
5.2.1. M3S-Yスライド 1/2
US00466
No. Drg.No. & Code No. QTY Description Rating
Materials
Remarks
番号 図番 & コード番号 個数 品名 規格 材質 備考
34 N1085A 2 NUT, HEX ナット 六角 M 6 P=1.0 FE
35 W1024A 2 WASHER, LOCK ワッシャ スプリング 6M/M FE
36 K4228A 4 BEARING ベアリング 696ZZ OT
37 PJ01682 2 ROLLER ローラ PL
38 S1023A 2 CIR-CLIP サークリップ ST-EW- 5 OT
38.1 AA689** 1 ROLLER ローラ OT
39 PB14390 1 BKT, ROLLER BKT ローラ FE
40 H5288A 2 BOLT, HEX SOCKET ボルト 六角穴 M04X010 FE
41 W1022A 2 WASHER, LOCK ワッシャ スプリング 4M/M FE
42 PM18852 2 PIN ピン FE
43 N1085A 2 NUT, HEX ナット 六角 M 6 P=1.0 FE
44 W1024A 2 WASHER, LOCK ワッシャ スプリング 6M/M FE
45 K4228A 4 BEARING ベアリング 696ZZ OT
46 PJ01682 2 ROLLER ローラ PL
47 S1023A 2 CIR-CLIP サークリップ ST-EW- 5 OT
48 PX01490 1 SEAL, BAR CODE シール バーコード OT
52 K40025 3 CASE ケース JUSP-BA01 OT
53 H10212 3 BATTER
Y
バッテリ JZSP-BA01 OT
5. XY-ROBOT / XYロボット 330 PTS-NXT-09JE