NXT partlist.pdf - 第791页
This page intentionally blank. 8. ACCESSORIES / アクセサリ 197 PTS-NXT-09JE

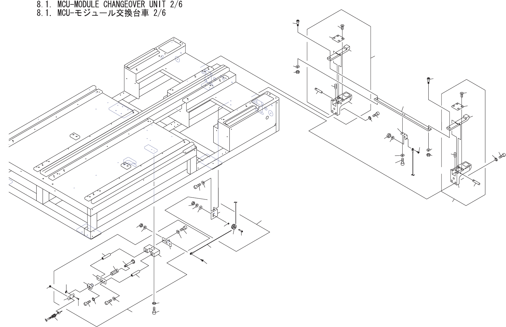
8.1. MCU-MODULE CHANGEOVER UNIT 1/6
8.1. MCU-モジュール交換台車 1/6
UX00126
No. Drg.No. & Code No. QTY Description Rating
Materials
Remarks
番号 図番 & コード番号 個数 品名 規格 材質 備考
38 W1011A 8 WASHER, CONICAL ワッシャ 皿 M- 4-L FE
45 PH01300 2 STOPPER ストッパ PL
45.1 PM52850 2 COLLAR カラー FE
46 H5323A 2 BOLT, HEX SOCKET ボルト 六角穴 M06X018 FE
47 W1024A 2 WASHER, LOCK ワッシャ スプリング 6M/M FE
48 PZ05110 1 SCALE スケール PL
49 PZ08770 1 SEAL シール OT
50 PZ08801 1 SEAL シール PL
51 PZ08811 1 SEAL シール PL
52 PZ08821 2 SEAL シール PL
53 PZ08831 2 SEAL シール PL
54 PZ09130 1 SEAL シール PL
55 PZ10820 1 SEAL シール PL
56 PB17480 2 SHIM シム FE
57 PG01480 4 STOPPER ストッパ PL
57.1 PM52840 4 COLLAR カラー FE
58 H5290A 4 BOLT, HEX SOCKET ボルト 六角穴 M04X015 FE
59 W1022A 4 WASHER, LOCK ワッシャ スプリング 4M/M FE
60 PX0154
0
1 SEAL, BAR COD
E
シール バーコード OT
8. ACCESSORIES / アクセサリ 196 PTS-NXT-09JE

This page intentionally blank.
8. ACCESSORIES / アクセサリ 197 PTS-NXT-09JE

A
29
2
5
6
7
8
9
10
11
12
13
14
16
15
8
17
18
18.1
30
25
28
31
32
33
35
36
37
43
44
45
46
47
49
48
49
48
47
35
36
37
43
44
45
50
51
52
1
4
3
19
19
20
21
22
23
24
27
26
21
22
23
34
34
38
39
38
39
UX00126
8. ACCESSORIES / アクセサリ 198 PTS-NXT-09JE