00195166-0402_SM_D4_EN - 第102页
Service Work Component Handling Cutter 102 Serv ice Manual SIPLACE D4 4-35: Removing and Installing the Short-Stroke Cylinder Legend X Loosen the screws fastening the two inductive pro x imity switches to the short-strok…

Service Work
Cutter Component Handling
Service Manual SIPLACE D4
101
4.3.2.8 Replacing the Articulated Joint on the Short-Stroke Cylinder [00348579-xx]
Removing the articulated joint and short-stroke cylinder
X Remove the cutter from the machine. (See section (4.3.2.5 Exchanging the Pneumatic Cutter
J
87
) .)
X Remove the deflector plate from the cutter.
X Loosen the screws holding the moveable blade.
4-34: Compressed air connections, left (1) and right (2)
X Loosen the compressed air connections (1, 2) on the short-stroke cylinder.
X In addition, mark the allocation of the proximity switches to the short-stroke cylinder (position front/
back).
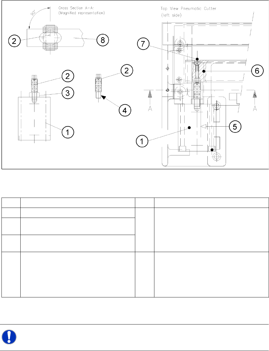
4-33: Replacing the articulated joint on the short-stroke cylinder
WARNING: Risk of injury!
Wear appropriately thick protective
gloves!
There is a high risk of injury from the
blades and the tape deflector.
Never reach into the cutter from below
or into the empty-tape duct from above.
Legend
1. Deflector plate
2. Cover
3. Screws to fasten short-stroke cylinder
4. Articulated joint
5. Screws to fasten the moveable blade

Service Work
Component Handling Cutter
102 Service Manual SIPLACE D4
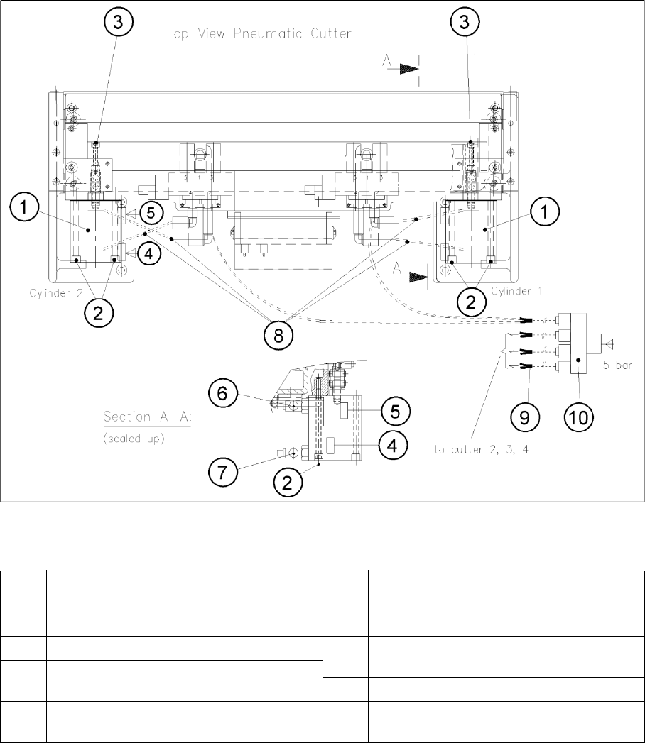
4-35: Removing and Installing the Short-Stroke Cylinder
Legend
X Loosen the screws fastening the two inductive proximity switches to the short-stroke cylinder (1
screw each (4, 5)).
X Loosen the screws fastening the short-stroke cylinder (1) (2 M5x65 screws (5)) and remove the
cylinder, incl. the articulated joint screwed into it.
1 Short-stroke cylinders 1 and 2 6 One-way restrictor (for running cylinder out)
2 Screws fastening the short-stroke cylinders: 2 M
5x65 hexagon socket-head screws each
7 One-way restrictor (for running cylinder in)
3 Articulated joint fixtures 8 Allocation of the compressed air connections,
pneumatic hoses
4 Proximity switch (for position cylinder moved in).
Fastener: 1 Phillips screw 9 Y-socket union (in the cable duct)
5 Proximity switch (for position cylinder moved
out). Fastener: 1 Phillips screw
10 Multiple-Y-distributor on the safety valve (5 bar
from compressed air unit)

Service Work
Cutter Component Handling
Service Manual SIPLACE D4
103
4-36: Removing Articulated Joint, Installing It on New Master Cylinder and Bonding It in Place
Legend
X Dismantle the articulated joint (2) from the cylinder (1) by turning the open-end wrenches
(SW 11, 14) on the surfaces marked (3) .
1 Short-stroke cylinder (1 or 2) 6 Slide surface of the movable blade
2 Articulated joint (complete) 7 Screw fastening the articulated joint to the
movable blade:
One M4 x 24 DIN 912 socket hex head cap
screw each, strength 12.9, secured with Loctite
no. 243
3 Wrench surface for disassembling the
articulated joint
4 Secure articulated joint thread with Loctite no.
243
5 Open-end wrench surface of articulated joint 8 Movable blade with slot to prevent the
articulated joint from turning if the articulated
joint is damaged, use a (complete) new one
(article no.: see ) or clean the residues of Loctite
from the thread of the existing articulated joint
pin.
NOTE:
The threaded pin is secured with Loctite no. You will need somewhat more strength than usual
to loosen it.