NPM-D3 parts list - 第95页
Ref No. Remarks R 1 Q'ty 20 銘板・警告ラベル(全体カバー):NPM-D3 Label(W hole Cover):NPM -D3 イラスト No. Part No. 品 名 品 番 数量 R 2 パーツリスト Kit No. キット品番 Kit Name キット名称 N610162273AA Part Nam e 備 考 セク ション No . PARTS LIST Section No. R 3 …

20
銘板・警告ラベル(全体カバー):NPM-D3
Label(Whole Cover):NPM-D3
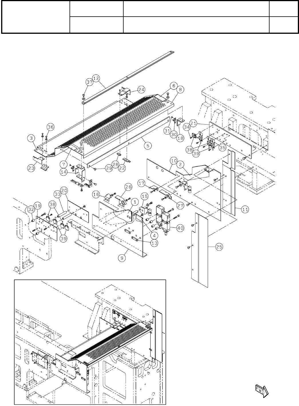
パーツレイアウト
Kit No.
キット品番
Kit Name
キット名称
N610162273AA
セクションNo.
PARTS LAYOUT
Section No.
--
S73
( KN610162273AA-06A )

Ref
No.
Remarks R
1
Q'ty
20
銘板・警告ラベル(全体カバー):NPM-D3
Label(Whole Cover):NPM-D3
イラスト
No.
Part No.
品 名品 番 数量
R
2
パーツリスト
Kit No.
キット品番
Kit Name
キット名称
N610162273AA
Part Name
備 考
セクションNo.
PARTS LIST
Section No.
R
3
LABEL
6
1 KXF0E05TA00
S
PC010101(Drawing available KXF0E05TA00)
LABEL
3
2 KXF0E05UA00
S
PC010201(Drawing available KXF0E05UA00)
LABEL
2
3 N510010729AA
S
PC011701
LABEL
1
4 KXF0E066A00
S
PW0104M1(Drawing available KXF0E066A00)
LABEL
2
5 N510057516AA PW0210M1
LABEL
2
6 KXF0E061A00
S
PD0101M1(Drawing available KXF0E061A00)
S74
--
( KN610162273AA-06A )

21
フィーダテーブルカバー(前側):NPM-D3
Feeder Table Cover(Front Side):NPM-D3
パーツレイアウト
Kit No.
キット品番
Kit Name
キット名称
N610161827AA
セクションNo.
PARTS LAYOUT
Section No.
--
S75
( KN610161827AA-04 )