YSM40R_KMB_mpl - 第57页
KMB-1712 27 26 26 27 29 28 28 29 6 7 8 22 25 11 8 17 5 4 3 22 23 1 23 14 12 24 11 19 18 18 18 25 19 25 10 12 24 11 9 13 20 23 5 4 3 21 8 1 23 14 12 24 5 4 2 22 8 1 10 8 11 24 12 9 23 13 20 25 18 18 18 25 19 25 19 4 2 21 …

KMB-1712
Rev. :It had a change without the compatibility. Please be careful at the time of the parts ordering.
Rev.: 過去に互換性の無い変更が入った部品。部品発注時は注意してください。
No. Part No. Part Name Q’ty Remarks Rev. Rank Level
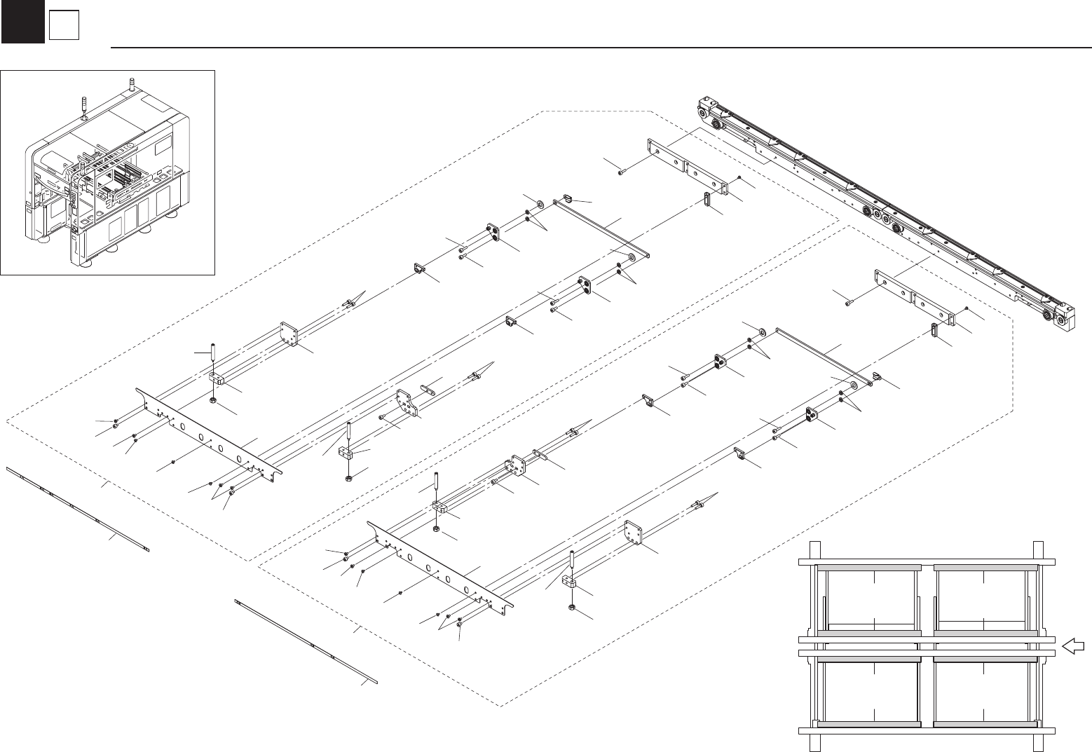
1 KMB-M9121-00 FRAME,CONVEYOR 2 /
Í
2 KMB-M9131-00 PLATE 1B,GUIDE 1 /
Í
3 KMB-M9132-00 PLATE 2,GUIDE 2 /
Í
4 KLF-M913A-A1 PULLEY,ASSY. 8 /
5 KGA-M9113-00 GUIDE 1,END 4 /
Í
6 KGA-M9114-00 GUIDE 2,END 4 /
Í
7 KGS-M9140-A0 PULLEY CONV. ASSY. 4 /
8 KGY-M9140-A0 PULLEY CONV. ASSY. 4 /
9 KLF-M9122-01 PLATE 1A,GUIDE 2 /
Í
10 KLF-M9122-11 PLATE 1A,GUIDE 2 /
Í
11 KLF-M9123-01 PLATE 2,GUIDE 4 /
Í
12 91312-03006 BOLT HEX.SOCKET HEAD 16 M3X6
13 91312-03008 BOLT HEX.SOCKET HEAD 20 M3X8
14 91312-04012 BOLT,HEX.SOCKET HEAD 8 M4X12
15 91312-05020 BOLT HEX.SOCKET HEAD 4 M5X20
16 92902-05200 WASHER PLAIN 20
17 92902-05600 WASHER PLAIN 16
18 95302-03700 NUT HEXAGON 48
19 KMB-M9120-A0 FRAME ASSY. 2 /
Í
20 KLF-M9120-B0 FRAME ASSY. 2 /
Í
21 KMB-M9138-00 PLATE 1B,GUIDE 1 /
Í
22 KLF-M9121-02 FRAME,CONVEYOR 2 /
Í
23
24
25
26
27
28
29
30
31
32
33
34
35
36
37
38
No. Part No. Part Name Q’ty Remarks Rev. Rank Level
39
40
41
42
43
44
45
46
47
48
49
50
51
52
53
54
55
56
57
58
59
60
61
62
63
64
65
66
67
68
69
70
71
72
73
74
75
76
7
6
Frame Assy
Conveyor

KMB-1712
Rev. :It had a change without the compatibility. Please be careful at the time of the parts ordering.
Rev.: 過去に互換性の無い変更が入った部品。部品発注時は注意してください。
No. Part No. Part Name Q’ty Remarks Rev. Rank Level
1 KHW-M9261-01 PLATE1,LINK 4 /
Í
2 KHW-M9264-A0 LINK A ASSY. 2 /
Í
3 KHW-M9264-B0 LINK B ASSY. 2 /
Í
4 KHW-M9265-00 SPACER 8 /
Í
5 KHW-M926A-00 COLLAR 4 /
Í
6 KHW-M926E-00 NUT 2 /
Í
7 KKE-M9262-00 PLATE,BASE S 2 /
Í
8 KLF-M926G-00 PLATE 2,LINK 2 /
Í
9 KLF-M9267-00 STOPPER 2 /
Í
10 KLF-M926C-00 PLATE,BOARD CLAMP 2 /
Í
11 KLF-M926E-00 SPRING PLUNGER 4 /
Í
12 KLF-M926F-00 HOLDER,PLUNGER 4 /
Í
13 KLF-M926H-00 PLATE 2 /
Í
14 KLF-M926J-00 PLATE 2 /
Í
15
KLF-M926P-00 SEAL,CP BOARD 1 1 4 Beams /
Í
KLF-M926V-00 SEAL,CP BOARD 1 1 2 Beams /
Í
16
KLF-M926R-00 SEAL,CP BOARD 2 1 4 Beams /
Í
KLF-M926W-00 SEAL,CP BOARD 2 1 2 Beams /
Í
17 KV7-M9266-01 GUIDE 6 /
Í
18 90169-02JB04 SCREW, BINDING HEAD 24
19 91312-04005 BOLT HEX,SOCKET HEAD 8
20 91312-04008
BOLT HEX,SOCKET HEAD 4
21 91312-04010 BOLT HEX,SOCKET HEAD 2
22 91312-04012 BOLT HEX,SOCKET HEAD 10
23 91312-04014 BOLT HEX,SOCKET HEAD 12
24 95302-06600 NUT HEXAGON 4
25 98902-03005 SCREW BINDING HEAD 16
26 KLF-M9260-A0 CP BOARD A SUB ASSY. 2 /
Í
27 KLF-M9260-B0 CP BOARD B SUB ASSY. 2 /
Í
28 KLF-M9260-C0 CP BOARD C SUB ASSY. 2 /
Í
29 KLF-M9260-D0 CP BOARD D SUB ASSY. 2 /
Í
30
31
32
33
34
35
36
No. Part No. Part Name Q’ty Remarks Rev. Rank Level
37
38
39
40
41
42
43
44
45
46
47
48
49
50
51
52
53
54
55
56
57
58
59
60
61
62
63
64
65
66
67
68
69
70
71
72
73
74
7
7
Clamp Board 1
Conveyor
