YSi-X_HD_mpl - 第28页
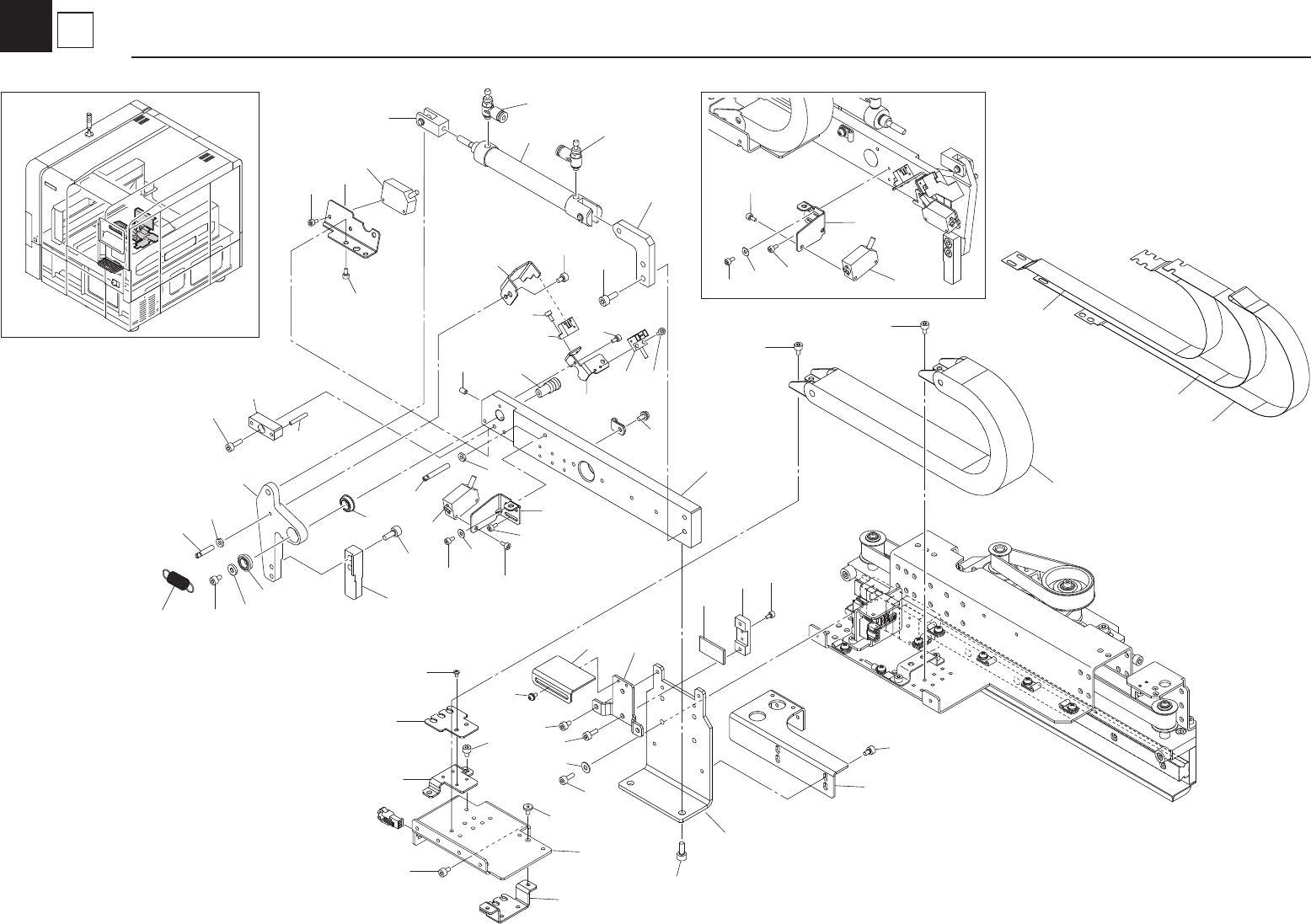
KLC-1304 Rev . :It had a change without the compatibility . Please be careful at the time of the parts ordering. Rev.: 過去に互換性の無い変更が入った部品。部品発注時は注意してください。 No. Part No. Part Name Q’ty Remarks Rev. Rank Level No. Part No. Pa…

KLC-1304
Rev. :It had a change without the compatibility. Please be careful at the time of the parts ordering.
Rev.: 過去に互換性の無い変更が入った部品。部品発注時は注意してください。
No. Part No. Part Name Q’ty Remarks Rev. Rank Level No. Part No. Part Name Q’ty Remarks Rev. Rank Level
1
KLC-M9521-01 PLATE, STOPPER
1
/
Í
39
91312-05012 BOLT HEX.SOCKET HEAD
4
M5X12
2
KLC-M9522-00 ARM, STOPPER
1
/
Í
40
91609-30020
PIN SPRING : 3X20
2
3
KLC-M9523-00 BLOCK, ARM
1
A
Í
41
92A08-04006 SET SCREW M4X6
1
4
KLC-M9524-00 BRKT., CYLINDER
1
/
Í
42
92902-03200 WASHER PLAIN
1
5
KLC-M9525-01 BLOCK, STOPPER
1
/
Í
43
92902-04200 WASHER PLAIN
5
6
KLC-M9526-00 SHAFT, ARM
1
/
Í
44
95302-04700 NUT HEXAGON
2
7
KLC-M9527-00 HOOK,SPRING MS 2
1
/
Í
45
97602-04308 SCREW,PAN HEAD W/W
8
8
KLC-M9528-00 HOOK,SPRING MS 1
1
/
Í
46
97602-03306 SCREW,PAN HEAD W/WAS
2
9
KLC-M9529-00 SPRING,LEVER
1
/
Í
47
91312-06010 BOLT HEX.SOCKET HEAD
2
10
KLC-M952A-01
BRKT.,SENS.MS SAFE
1
/
Í
48
90990-01J058 BOLT,HEX.SOCKET HEAD
1
11
KLC-M952C-01 BRKT.,SENS.PCB R
1
R>L /
Í
49
91312-04005 BOLT HEX.SOCKET HEAD
2
12
KLC-M952B-01 BRKT.,SENS.PCB L
1
L>R /
Í
50
98902-03004 SCREW BINDING HEAD
2
13
KLC-M952E-01 DOG,MS ON OFF
1
/
Í
51
KLC-M9535-00 PLATE,HNS.
1
/
Í
14
KLC-M952F-01 BRKT.,SENS.ON OFF
1
/
Í
52
KLC-M9536-00 BRKT.,HNS.MS 7
1
/
Í
15
KLC-M652W-00 SEN.,MS ON ASSY
1
B
Í
53
KLC-M9537-00 STAY,DOG
1
/
Í
16
KLC-M652X-00 SEN.,MS OFF ASSY
1
B
Í
54
KLC-M9538-00 STAY,HNS.
1
/
Í
17
KLC-M652U-00 SEN.,MS PCB CHK ASSY
1
B
Í
55
KLC-M9539-01 STAY,COVER
1
/
Í
18
KLC-M652V-00 SEN.,MS SAFETY ASSY
1
B
Í
56
19
LE2-M940A-00 AIR CYLINDER
1
B
Í
57
20
LE2-M940B-00 JOINT
1
/
Í
58
21
$SC4-M5A SPEED CONTROLLER
2
/
Í
59
22
90933-03J148 BEARING
2
/
Í
60
23
KLC-M951G-00 BELT 2
1
/
Í
61
24
KLC-M951J-01 BRKT., ARM ASSY.
1
/
Í
62
25
KLC-M951K-01 DOG,MS
1
/
Í
63
26
KLC-M951L-00 PLATE, BELT
1
/
Í
64
27
KLC-M951M-01 BRKT., CABLE LOWER
1
/
Í
65
28 66
29
KLC-M951P-01 CABLE DUCT, MS
1
/
Í
67
30
KLC-M951S-01 TAPE,CABLE DUCT 1
1
/
Í
68
31
KLC-M951T-01 TAPE,CABLE DUCT 2
1
/
Í
69
32
KLC-M951U-01 TAPE,CABLE DUCT 3
1
/
Í
70
33
90990-28J032 WASHER,PLAIN
1 71
34
91312-03005 BOLT HEX.SOCKET HEAD
2
M3X5
72
35
91312-03006 BOLT HEX.SOCKET HEAD
14
M3X6
73
36
91312-04006 BOLT HEX.SOCKET HEAD
16
M4X6
74
37
91312-04010 BOLT,HEX.SOCKET HEAD
8
M4X10
75
38
91312-04012 BOLT,HEX.SOCKET HEAD
4
M4X12
76
6
2
MS-ARM / Duct
Conveyor

