YSi-X_HD_mpl - 第34页
KLC-1304 Rev . :It had a change without the compatibility . Please be careful at the time of the parts ordering. Rev.: 過去に互換性の無い変更が入った部品。部品発注時は注意してください。 No. Part No. Part Name Q’ty Remarks Rev. Rank Level No. Part No. Pa…

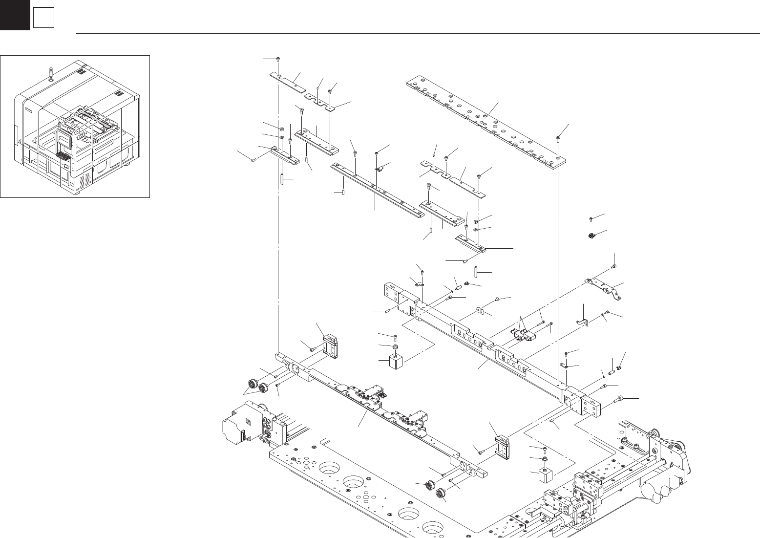
KLC-1304
Rev. :It had a change without the compatibility. Please be careful at the time of the parts ordering.
Rev.: 過去に互換性の無い変更が入った部品。部品発注時は注意してください。
No. Part No. Part Name Q’ty Remarks Rev. Rank Level No. Part No. Part Name Q’ty Remarks Rev. Rank Level
1
KLC-M9122-00 FRAME,CONVEYOR R
1
/
Í
39
90990-01J070 BOLT,HEX.SOCKET HEAD
10
2
KLC-M9156-00 FRAME1,SIDE
1
/
Í
40
3
KLC-M9157-00 FRAME2,SIDE
1
/
Í
41
90990-01J037 BOLT,HEX.SOCKET HEAD
4
4
KLC-M9158-00 GUIDE3,PCB
2
/
Í
42
90990-01J059 BOLT HEXAGON SOCKET
6
5
KLC-M9159-00 STOPPER
2
/
Í
43
91312-06025 BOLT,HEX.SOCKET HEAD
10
M6X25
6
KLC-M915B-00 UPPER PLATE 2
1
/
Í
44
90112-2AJ006 BOLT,HEX.SOCKET HEAD
2
7
KLC-M915C-00 PIN
2
/
Í
45
KLC-M13P8-00 CLAMP
2
/
8
KLC-M915D-00 PIN
6
/
Í
46
91312-03016 BOLT,HEX.SOCKET HEAD
2
M3X16
9
KLC-M915E-00 PLATE1,BELT
1
/
Í
47
10
KLC-M915F-00
PLATE1,CONVEYOR
1
/
Í
48
11
KLC-M915G-00 PLATE2,CONVEYOR
1
/
Í
49
12
KLC-M915H-00 GUIDE1, PCB
2
/
Í
50
13
KLC-M915J-00 HOLDER,SENSOR
1
/
Í
51
14
KLC-M915M-00 PLATE1,STOPPER
1
/
Í
52
15
KLC-M915N-00 PLATE2,STOPPER
1
/
Í
53
16
KLC-M9161-00 CYLINDER
2
B
Í
54
17
KLC-M9162-00 GUIDE
2
/
Í
55
18
KLC-M9163-00 JOINT,CYLINDER
2
/
Í
56
19
KLC-M9164-00 JOINT
4
/
Í
57
20
KLC-M9165-00 BRACKET,SENSOR
1
/
Í
58
21
KLC-M9168-00 BRACKET2,HNS.
1
/
Í
59
22
KLC-M9169-00 GASKET
4
/
Í
60
23
KLC-M916D-00 JOINT
4
/
Í
61
24
KLC-M916E-00 JOINT ASSY
2
/
62
25
KLC-M914M-00 CLAMP
15
/
Í
63
26
KGY-M9140-A0 PULLEY CONV. ASSY.
4
A
64
27
KLC-M92A0-00 SIDE CLAMP ASSY
1
/
Í
65
28
91312-03008 BOLT HEX.SOCKET HEAD
14
M3X8
66
29
91312-03020 BOLT,HEX.SOCKET HEAD
2
M3X20
67
30
91312-04008 BOLT HEX.SOCKET HEAD
2
M4X8
68
31
91312-04012 BOLT,HEX.SOCKET HEAD
10
M4X12
69
32
92902-03600 WASHER PLAIN
2 70
33
92902-05600 WASHER PLAIN
2 71
34
95302-05600 NUT HEXAGON
2 72
35
98702-04008 SCREW,FLAT HEAD (+)
16 73
36
98902-03006 SCREW BINDING HEAD
2 74
37
99480-04012 PIN,PARALLEL
5 75
38
92012-04006 BOLT, BUTTON HEAD
10 76
6
5
Clamp Board R
Conveyor

