EJM9BE-PL-00A-00 - 第209页
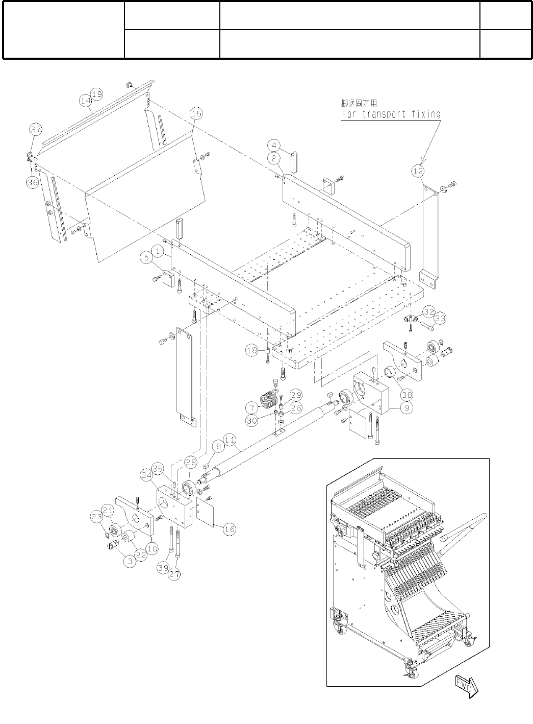
Ref No. Remark s R 1 Q'ty 18-B 交 換 台車(17連):NPM Fe eder Ca rt( 17 Ro ws): NPM イラスト No. Part No. 品 名 品番 数量 R 2 パーツリスト Kit N o . キット品 番 Kit Name キット名称 N610060938AA Part Name 備 考 セクションNo. PARTS LIST Section No. R 3 BAR …

18-B
交
換
台車(17連):NPM
Feeder Cart(17 Rows):NPM
パーツレイアウト
Ki
t
N
o
.
キット
品番
Kit Name
キット名称
N610060938AA
セクションNo.
PARTS LAYOUT
Section No.
--
O97
( KN610060938AA-05-2 )

Ref
No.
Remarks
R
1
Q'ty
18-B
交
換
台車(17連):NPM
Feeder Cart(17 Rows):NPM
イラスト
No.
Part No.
品 名品番 数量
R
2
パーツリスト
Kit N
o
.
キット品
番
Kit Name
キット名称
N610060938AA
Part Name
備 考
セクションNo.
PARTS LIST
Section No.
R
3
BAR
1
1 N210102890AC
BAR
1
2 N210102891AC
SHAFT
2
3 N210103056AA
POST
2
4 N210102892AA
BLOCK
2
5 N210102906AB
SPRING
1
7 N210091473AC
KEY
2
8 N210110190AA
BLOCK
1
9 N210110191AA
CAM
2
10 N210110192AA
SHAFT
1
11 N210110194AA
BRACKET
2
12 N210091481AC
CHUTE
1
14 N210105631AA
COVER
1
15 N210105630AA
COVER
2
16 N210105587AB
SPACER
1
18 N510030566AA CB-412E
TAPE
1
19 KXF0DXNAA00 AGF-100 t=0.18 W=100mm L=10m
BEARING
2
21 N510034423AA NART10VUUR
COLLAR
2
22 N210103058AA
SNAP-RING
2
23 XUB10FP
Ctype retaining ring for shaft 10 Steel, Parker, Black
URETHANE
2
26 N510030817AA 87URWH12-8-5
BOLT
2
27 N510017454AA
Hexagon socket head cap screw M6X70-10.9 A2J (Trivalent)
BEARING
2
28 N510045267AA GE20EC
SPACER
1
29 N510023663AA CB-410E
SPACER
1
30 N510041225AA 3382330-60060
JOINT
1
32 KXF0E1J6A00 KJL06-00
JOINT
1
33 KXF09ZBAA00 KQ2P-06
BLOCK
1
34 N210110198AA
PIN
2
35 N510020617AA MMS6-10
BOLT
4
36 N510017535AA
SSS 003 Hexagon socket button head screw M4X8-10.9 A2S (Trivalent)
RUBBER-CUSHION
2
37 N510043348AA C-30-CS-9-UL
COLLAR
1
38 N510045268AA 87CLBUB20-25-12.5
BOLT
2
39 N510017452AA
Hexagon socket head cap screw M6X65-10.9 A2J (Trivalent)
O98
--
( KN610060938AA-05-2 )

18-C
交
換
台車(17連):NPM
Feeder Cart(17 Rows):NPM
パーツレイアウト
Ki
t
N
o
.
キット
品番
Kit Name
キット名称
N610060938AA
セクションNo.
PARTS LAYOUT
Section No.
--
O99
( KN610060938AA-05-3 )