KE-3010A_KE-3020VA_KE-3020VRA-Rev06 - 第147页
- - REF.NO NOTE PART NO D E S C R I P T I O N Qty 1 401-47461 CONNECTOR_BRACKET_ ASM 1 2 #01 401-47462 C ONNECTOR_BRACKET_ASM_(EN) 1 3 B4011-210- 000 SPACER (4) 4 NM-60300 03-SC NUT M3X0.5 T YPE3 (4) 5 SM-4020801- SC S…

- -
70.M REPLACING OVERALL CHANGER TRUCK COMPONENTS(WITH CONNECTOR BRACKET)(2)
2 1
2 0
1 9
2 2
1 2
8
9
8
1 5
1 4
1 3
1 2
1 1
1 0
9
7
6
5
3
4
1 7
2 3
1 6
1 8
2 4
2 6
2 7
2 5
2 8

- -
REF.NO NOTE PART NO D E S C R I P T I O N Qty
1 401-47461 CONNECTOR_BRACKET_ASM 1
2
#01
401-47462 CONNECTOR_BRACKET_ASM_(EN) 1
3 B4011-210-000 SPACER (4)
4 NM-6030003-SC NUT M3X0.5 TYPE3 (4)
5 SM-4020801-SC SCREW M2 X 8 (4)
6 HX-0029400-00 FIXED BASE (1)
7 SM-4030601-SC SCREW M3 X 6 (1)
8 PJ-3010651-06 KNIFE UNION (2)
9 E2904-700-000 SOCKET (2)
10 PJ-2300061-00 UNION 06 (1)
11 PJ-3050600-04 TEE (1)
12 PJ-0320090-05 NIPPLE (1)
13 E2642-721-000 CONNECTOR NO. LABEL (1)
14 BT-0600400-EC URETHANE TUBE BLUE 6X4 (1.3)
15 EA-9500B01-00 CABLE BAND (4)
16 E8615-715-0A0 FEEDER BANK CIRCUIT BOARD ASM. (2)
17 E8618-721-0A0 FEEDER I/F BOARD ASM. (1)
18 E2508-729-000 CONNECTOR BRACKET (1)
19
#01
HN-0017900-0B NOISE FILTER (2)
20
#01
HN-0017900-0D FERRITE CLAMP (4)
21
#01
HK-0429900-8A CAP (1)
22
#01
HN-0014900-00 CLAMP FILTER(L) (3)
23 SM-4860601-SC SCREW M2.6 L=6 (16)
24 SM-4031201-SC SCREW M3 X 12 (4)
25 HB-0015400-10 RELAY (1)
26 HB-0015400-00 RELAY (1)
27 SM-6031402-TN SCREW M3X0.5 L=8 (1)
28 401-46434 RFID BANK CABLE ASM (1)

- -
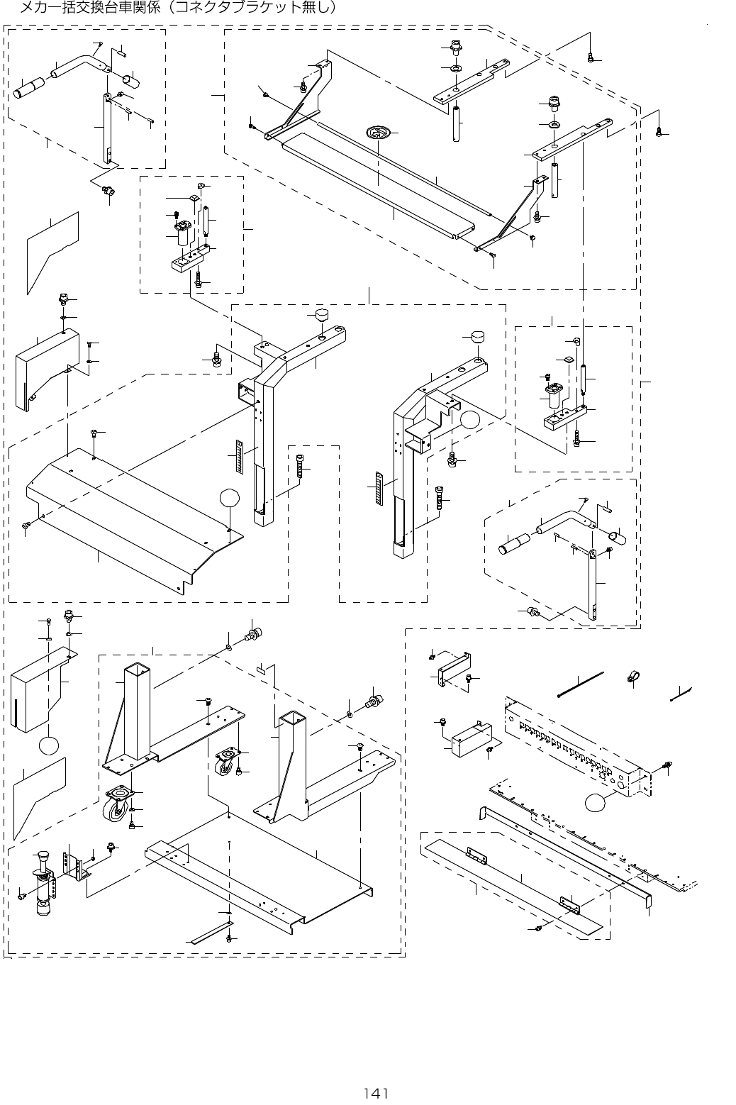
71.M REPLACING OVERALL CHANGER TRUCK COMPONENTS(WITHOUT CONNECTOR BRACKET)
7 8
6 5
6 9
6 9
6 7
6 9
6 7
4 7
7 0
1
6 1
6 1
8 2
8 2
7 4
6 5
6 9
6 8
6 6
6 2
6 3
6 4
7 0
6 8
6 6
6 0
5 9
6 0
5 9
5 0
5 0
3 6
2 8
B
4 8
A
3 0
2 1
6 4
6 3
6 2
7 5
7 3
7 6
7 1
5 8
5 7
5 7
5 6
5 4
5 5
5 5
5 3
5 3
5 2
5 1
4 9
4 3
3 5
3 4
3 2
4 2
4 0
4 4
3 3
4 1
4 4
2 9
3 8
3 9
3 1
3 7
2 3
2 6
2 6
2 5
2 2
2 4
2 4
2 7
2 7
7 9
9 3
8 0
7 7
7 4
7 3
1 8
1 9
1 7
9 1
8 8
8 9
9 0
9 2
8 7
8 7
8 6
8 6
8 4
8 5
B
2
8 1
8 3
A
7 5
7 6
7 2
4 5
4 6
4 5
4 6
1 4
1 6
1 5
1 3
1 2
1 1
1 0
7
9
8
6
6
5
4
3
2 0
2 3