KE-3010A_KE-3020VA_KE-3020VRA-Rev06 - 第44页
- - 19.X - Y COMPONENTS(2 ) 1 3 1 3 1 3 1 7 1 6 1 4 1 5 6 1 4 1 6 1 5 1 7 1 2 1 2 1 2 1 2 1 8 1 8 1 8 1 8 1 1 1 1 1 6 1 5 1 4 1 4 1 6 1 5 1 0 1 0 1 9 2 0 1 9 2 0 2 1 2 1 9 8 7 5 4 3 1 7 2 2 3 2 2 2 2 1 3 2 5 2 6 2 4 2 …

- -
REF.NO NOTE PART NO D E S C R I P T I O N Qty
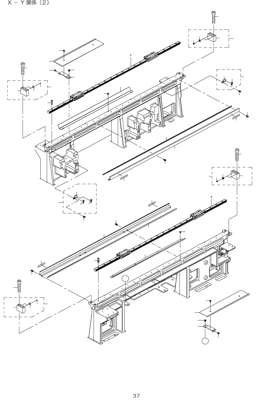
1 401-46913 X_AXIS_FRAME_ASM 1
2 SM-6041602-TN SCREW M4 X 16 (34)
3 401-46920 X_AXIS_FRAME (1)
4 400-71325 X LM GUIDE L (2)
5 401-46896 X_LMT_SENSOR_DOG_20VA 1
6 #01 401-46909 X_LMT_SENSOR_DOG_10A 1
7 401-13692 MAGNETIC SCALE 3010 X 1
8 401-46914 X PLUS LMT SENSOR ASSY 1
9 SM-6030602-TN SCREW M3X6 2
10 401-46915 X MINUS LMT SENSOR ASSY 1
11 SM-6030602-TN SCREW M3X6 2
12 401-46921 X_MSC_GUARD 1
13 401-06022 X FRAME END R 1
14 SL-6030892-TN SCREW M3 L=8 5
15 SL-6062092-TN SCREW M6 L=20 4
16 401-06020 X FRAME END L 1
17 SL-6062092-TN SCREW M6 L=20 4
18 401-46924 Y_SENSOR_DOG 1
19 SL-6040892-TN BOLT 2
20 401-10216 Y MSC BR V2 2
21 SL-6041092-TN SCREW M4 L=10 4
22 401-29630 XY LINEAR SCALE HEAD 2
23 SM-6030502-TN SCREW M3 L=5 4
24 E3021-721-000 HAED CENTER SHIM C 2
25 E3020-721-000 HAED CENTER SHIM B 2
26 E3019-721-000 HAED CENTER SHIM A 2
27 E3047-729-000 HEAD CENTER SHIM D 2
28 400-98047 X BALL SCREW XL 1
29 401-13985 X MOTOR FRAME ASM 1
30 SL-6051692-TN SCREW M5 L=16 4
31 401-29653 X AXIS MOTOR 1
32 SL-6062042-TN BOLT 4
33 400-93855 FIXED SUPPORT UNIT 1
34 SM-6052002-TN BOLT 4
35 SL-6052592-TN SCREW M5 L=25 16
36 401-47719 COUPRING X 1
37 400-93863 X BALL SCREW SUPPORT 1
38 400-93864 O RING X 1
39 401-10217 X BS FRAME 1
40 401-13986 X STOPPER ASM 2
41 401-08820 X OIL GUARD U 3010 1
42 SL-6053092-TN SCREW 2
43 SL-6042592-TN SCREW 2
44 SL-6044092-TN SCREW 2
45 SM-6044002-TN SCREW M4X0.7 L=40 4
46 401-08819 X OIL GUARD F 3010 1
47 400-49671 COVER CUSHION 2
48 SM-4030601-SC SCREW M3X0.5 L=6 2
49 SM-3040652-TN SCREW M4 L=6 6
50 SM-3030552-TN SCREW M3 L=5 8
51 401-05882 KEEP MAGNET AWAY LABEL 2
52 HX-0034400-00 HARNESS PARTS 2
53 SM-4040601-SC SCREW M4X0.7 L=6 6
54 HX-0029400-00 FIXED BASE 4
55 401-35702 X-MSC BRACKET ASSY 1
56 SL-6040892-TN SCREW M4 L=8 (2)
57 400-46002 X-MSC BRACKET (1)
58 401-29630 XY LINEAR SCALE HEAD (1)
59 400-52050 SCREW M3X6 MEC (2)
60 SM-4040601-SC SCREW M4X0.7 L=6 14
61 HX-0029400-00 FIXED BASE 14
62 SM-6061602-TN SCREW M6 L=16 4
63 SL-6040892-TN BOLT 2

- -
19.X-Y COMPONENTS(2)
1 3
1 3
1 3
1 7
1 6
1 4
1 5
6
1 4
1 6
1 5
1 7
1 2
1 2
1 2
1 2
1 8
1 8
1 8
1 8
1 1
1 1
1 6
1 5
1 4
1 4
1 6
1 5
1 0
1 0
1 9 2 0
1 9 2 0
2 1
2 1
9
8
7
5
4
3
1 7
2
2 3
2 2
2 2
1 3
2 5
2 6
2 4
2 7
2 7
2 5
2 6
2 4
2 7
2 7
A
1
1 7
A
2 3

- -
REF.NO NOTE PART NO D E S C R I P T I O N Qty
1 401-46916 Y_SENSOR_BR_F_ASM 1
2 401-46929 Y_SENSOR_BR (1)
3 401-29006 Y LMT SENSOR CABLE ASM (1)
4 401-29006 Y LMT SENSOR CABLE ASM (1)
5 SL-6040892-TN BOLT 2
6 401-46917 Y_SENSOR_BR_R_ASM 1
7 401-46929 Y_SENSOR_BR (1)
8 401-29006 Y LMT SENSOR CABLE ASM (1)
9 SL-6040892-TN BOLT 2
10 400-91396 MAGNETIC SCALE Y 2
11 401-46930 Y_MSC_GUARD 2
12 SL-6040892-TN SCREW M4 L=8 8
13 401-13989 Y STOPPER ASM 4
14 400-00708 Y STOPPER (1)
15 400-49671 COVER CUSHION (2)
16 SM-4030601-SC SCREW M3X0.5 L=6 (2)
17 SM-6126002-TN SCREW M12 L=60 8
18 401-05882 KEEP MAGNET AWAY LABEL 4
19
#02
401-06039 Y LM GUIDE L 2
20
#01
401-06038 Y LM GUIDE M 2
21 SM-6051602-TN SCREW 50
22 401-46931 Y_OIL_GUARD 2
23 401-28154 LOW_HEAD_SCREW_M4 8
24 401-46932 Y_UNDER_OIL_GUARD_BR 4
25 401-46933 Y_UNDER_OIL_GUARD 2
26 401-28154 LOW_HEAD_SCREW_M4 4
27 400-81751 B_COVER_SCREW 8