KE-3010A_KE-3020VA_KE-3020VRA-Rev06 - 第53页
- - REF.NO N O TE PART NO D E S C R I P T I O N Q ty 1 401-49678 I C HEAD 20VA ASS Y 1 2 EA-9500B01-00 CABLE BAND (4 ) 3 EA-9500B02-00 CABLE BAND 150 (1 ) 4 E3005-729-000 LIMI T DA MPER L (1 ) 5 400-78104 I C Z SLIDE A…

- -
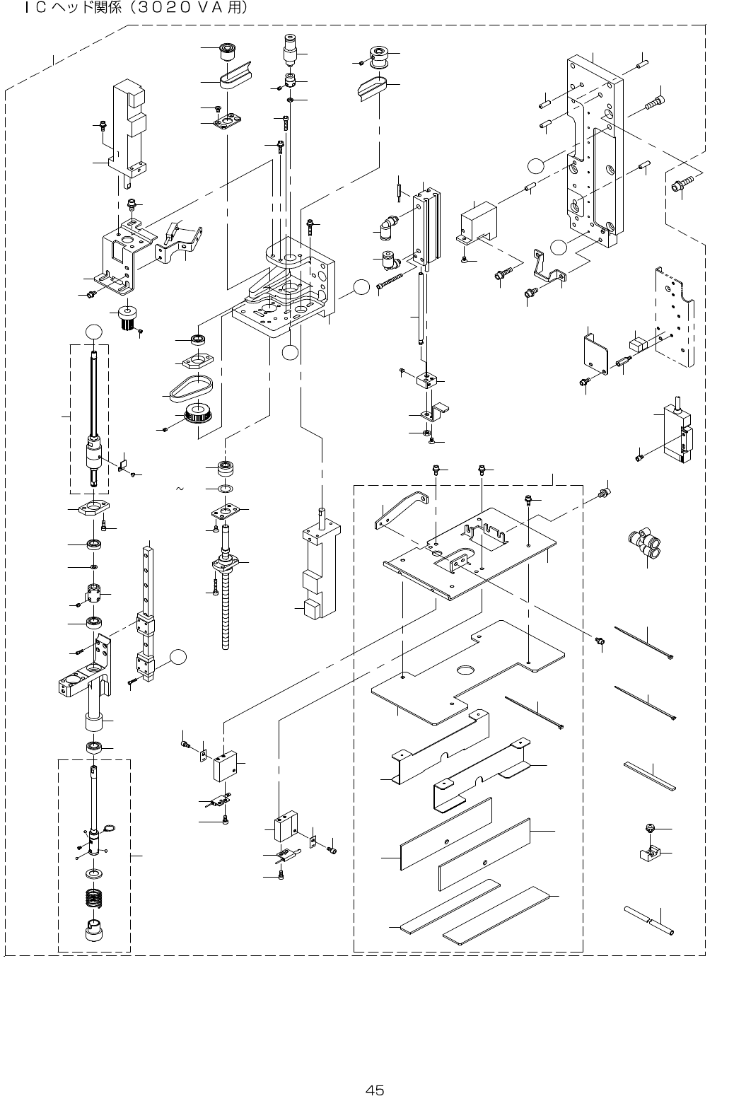
23.IC HEAD COMPONENTS(FOR 3020VA)
1 8
9 3
2 2
4 2
8 6
4 7
5 6
2 3
5 7
4 9
C
7 6
5 3
5 2
4 6
4 1
3 0
3 4
3 4
3 4
B
1 4
1
3 6
7 7
7 4
5 1
5 0
2 3
7 0
6 6
2 2
5 4
5 1
5 0
5 5
4 8
5 9
3 4
3 4
3 2
3
2
4
1 2
1 1
8
9
1 0
6
7
2 1
5 8
2 5
3 8
2 8
3 1
C
7 2
7 1
8 6
5
8 0
7 9
7 8
6 0
6 8
3 3
2 9
7 1
7 5
7 8
3 6
3 7
8 1
7 3
7 3
4 3
1 7
4 0
A
A
3 8
4 4
8 2 8 5
1 5
2 0
6 4
2 7
6 3
1 9
1 7
6 8
6 8
6 8
6 7
6 7
6 5
6 1
6 9
6 2
4 5
3 9
3 5
2 6
2 5
2 4
1 6
1 6
B
1 3
8 7
9 0
8 9
8 8
9 2
9 1
2 2
6 6
2 2
7 0
4 2

- -
REF.NO NOTE PART NO D E S C R I P T I O N Qty
1 401-49678 IC HEAD 20VA ASSY 1
2 EA-9500B01-00 CABLE BAND (4)
3 EA-9500B02-00 CABLE BAND 150 (1)
4 E3005-729-000 LIMIT DAMPER L (1)
5 400-78104 IC Z SLIDE ASM (1)
6 400-80360 T SENSOR DOG (1)
7 SM-0020201-SC SCREW (1)
8 401-33629 IC SPLINE PULLEY (1)
9 SM-8030312-TP SCREW M3 L=3 (4)
10 400-80363 T SENSOR BR (1)
11 401-13698 T7 SLOW DOWN SENSOR ASM (1)
12 SL-6030692-TN SCREW M3 L=6 (2)
13 PJ-2105041-00 HALF UNION (1)
14 PJ-3080400-06 UNION (2)
15 SB-1060018-00 BEARING (1)
16 SB-1060004-00 CLUTCH BEARING (2)
17 SB-1080016-00 BEARING (2)
18 400-78032 IC HEAD BRACKET (1)
19 400-78033 IC SPLINE BRACKET (1)
20 400-78041 IC T MOTOR BR (1)
21 400-93090 IC SPLINE UNIT 80R (1)
22 SM-6030602-TN SCREW M3X6 (6)
23 SL-6030892-TN SCREW (4)
24 401-33628 IC T PULLEY (1)
25 400-46523 TIMING BELT Z IC (1)
26 400-01123 Z PULLEY (1)
27 400-01124 Z MOTOR PULLEY (1)
28 400-78038 IC BALL SCREW (1)
29 400-78036 IC LINEAR GUIDE (1)
30 SM-4040601-SC SCREW M4X0.7 L=6 (1)
31 401-13702 NOZZLE DOWN SENS IC ASM (1)
32 HX-0029400-00 FIXED BASE (1)
33 401-33627 TIMING BELT T (1)
34 PH-0400122-C0 PIN (5)
35 400-78034 IC Z SLIDE BRACKET (1)
36 SM-1030552-TN PLATE SCREW M3 L=5 (2)
37 400-58388 CYLINDER STOPPER (1)
38 400-46056 BEARING PLATE (2)
39 400-46048 BEARING BASE U (1)
40 400-46050 BEARING BASE LR (1)
41 SL-6041092-TN SCREW (2)
42 400-78048 FIBER BR (2)
43 400-46060 O RING H (1)
44 400-46515 COUPRING (1)
45 400-46525 ROTARY JOINT (1)
46 400-78040 Z STOPPER (1)
47 400-78056 DIFFUSER ASM (1)
48 400-46510 DIFFUSER L (1)
49 400-46509 DIFFUSER U (1)
50 400-78047 DIFFUSER V (2)
51 400-78046 DIFFUSER BR (2)
52 400-78045 DIFFUSER BASE (1)
53 EA-9500B01-00 CABLE BAND (1)
54 SL-6030892-TN SCREW (4)
55 400-46511 DIFFUSER R (1)
56 400-78049 DIFFUSER SUPPORT (1)
57 SL-6030692-TN BOLT (2)
58 SM-6031402-TN SCREW M3X0.5 L=8 (1)
59 SM-6051602-TN BOLT (5)
60 400-46058 O RING F1 (1)
61 SM-6030802-TN SCREW (2)
62 SM-6020602-TN SCREW M2 L=6 (8)
63 SL-6031292-TN SCREW M3 L=12 (2)
64 SL-6031692-TN SCREW (2)
65 SM-6031602-TN SCREW M3 L=16 (4)
66 400-46067 FIBER SLIT (2)
67 SM-1030552-TN PLATE SCREW M3 L=5 (8)
68 SM-8030312-TP SCREW M3 L=3 (10)
69 SM-6020802-TN SCREW M2 L=8 (9)
70 HD-0026000-10 SENSOR (2)
71 401-49143 SERVO MOTOR 30W (2)
72 SL-6030842-TN SCREW M3 L=8 (3)
73 PJ-3040405-04 ELBOW UNION (2)
74 SL-6041692-TN SCREW M4 L=16 (1)
75 SM-6033002-TN SCREW M3 L=30 (1)
76 HX-0030600-00 UL TUBE ( 0.3)
77 400-78044 CYLINDER MOUNT IC (1)
78 400-46524 AIR CYLINDER (1)
79 400-58389 GUIDE SHAFT (1)
80 SM-8030312-TP SCREW M3 L=3 (1)
81 400-58387 RELEASE BAR IC (1)
82 E3071-729-000 BEARING SHIM A (1)
83 E3072-729-000 BEARING SHIM B (1)
84 E3073-729-000 BEARING SHIM C (1)
85 E3074-729-000 BEARING SHIM D (1)
86 SL-6040892-TN BOLT (7)
87 400-78054 FIBER COVER (1)
88 HX-0035400-0D BASE PARTS (1)
89 400-78052 CUSHION (1)
90 SL-6030592-TN SCREW M3 L=5 (1)
91 400-45484 NOZZLE SENSOR AMP ASM (1)
92 SL-6030692-TN SCREW M3 L=6 (1)
93 SL-6052092-TN SCREW 5

- -
24.IC HEAD COMPONENTS(FOR 3020VRA)
1 1
3 3
C
1 2
2 2
3 0
1 0
9
6
5 3
4 7
4 9
5 2
4 6
4 1
8
3 4
3 4
1 2
1 2
1 2
3 4
B
1 4
6 7
6 6
4 2
1
7 7
3 6
4 2
3 6
3 7
7 1
7 4
7 4
3 1
7 6
5 1
5 0
5 4
5 1
5 0
4 8
4 8
5 9
3 4
3 4
1 8
3 2
3
2
4
7 5
7 0
2 4
3 8
2 8
C
5 8
5 5
6
6 9
6 2
7 3
7 2
7
5
6 0
6 8
2 9
7 2
4 3
1 7
4 0
2 1
A
A
3 8
4 4
7 8 8 1
1 5
2 0
6 4
2 7
6 3
1 9
1 7
6 8
6 8
6 8
6 7
6 7
6 5
6 1
5 7
5 6
4 5
3 9
3 5
2 6
2 5
2 5
1 6
1 6
B
1 3
2 3