DF01-Rev02 - 第19页
- - REF . NO NOTE PA RT NO D E S C R I P T I O N Q ty 1 4 01 -2 40 08 EJEC TOR B RAC KE T 1 2 4 01 -2 40 09 CA MER A X AXI S S TA N D R IG H T 1 3 4 01 -2 40 10 CA MER A X AXI S S TA N D L EF T 1 4 4 01 -2 40 11 CA MER…

- -
8. X AXIS & CAMERA UNIT COMPONENTS
1
2
4
5
2 3
8
1 2
1 4
1 3
1 5
2 4
4 0
4 1
1 0
1 0
7 5
7 6
7 7
7 5
8 5
4 2
7 8
4 2
7 8
7 6
7 7
7 9
8 0
8 1
8 0
7 9
8 1
1 0 2
8 2
7 3
7 4
2 2
6 5
6 6
6 7
1 6
3 8
3 7
1 9
7 0
1 9
7 0
9 1
9 0
8 9
5 4
8 4
4 3
6 1
6 2
6 4
4 8
9
9 7
9 6
3 3
3 1
3 1
3 3
2 1
9 5
9 2
9 3
1 0 0
1 0 1
4 4
4 3
3
8 6
8 7
8 8
4 6
5 6
5 7
9 9
2 9
5 5
7 2
6 9
1 8
4 9
6 8
4 5
5 2
5 8
2 0
8 6
8 7
8 8
5 8
1 1
5 9
A
A
2 9
9 8
7
9 8
B
B
8 3
8 3
3 5
7 1
5 0
5 1
2 5
2 6
4 7
4 7
3 3
3 2
3 3
3 2
3 9
3 0
1 1
5 9
3 0
3 6
3 4
2 7
2 8
1 0 3
5 3
C
1 7
C
6 3
6 0
9 4
5 8
D
D
6

- -
REF.NO NOTE PART NO D E S C R I P T I O N Qty
1 401-24008 EJECTOR BRACKET 1
2 401-24009 CAMERA X AXIS STAND RIGHT 1
3 401-24010 CAMERA X AXIS STAND LEFT 1
4 401-24011 CAMERA X AXIS BLOCK RIGHT 1
5 401-24012 CAMERA X AXIS BLOCK LEFT 1
6 401-24013 CAMERA X AXIS BLOCK LARGE 1
7 401-24014 CAMERA X AXIS BEAR BRACKET 1
8 401-24015 CAMERA X AXIS BASE CONNECT ION BOARD 1
9 401-24016 CAMERA X AXIS MOTOR PLATE 1
10
#01
401-24017 CAMERA X AXIS ADJUSTMENT BOARD 1
11
#01
401-24018 CABLE FIXATION METAL FITTINGS 2
12 401-24019 PICKUP 1.7 2
13 401-24021 PICKUP PIN 2
14 401-24022 PICKUP BLOCK 2
15 401-24023 PICKUP HOLDER 2
16 401-24024 Z AXIS COVER 1
17 401-24025 LENS BARREL BLOCK 1
18 401-24026 LENS BARREL BASE 1
19 401-24027 LENS BARREL WEIGHT 2
20 401-24028 CAMERA FIXATION BOARD 1
21 401-24029 FLOW SENSOR BRACKET 1
22 401-24030 LIGHT FIXATION BOARD 1
23 401-24031 CAMERA X AXIS BASE 1
24 401-24032 CABLE BEAR COVER 1
25 401-24456 V1 ASM 1
26 401-24457 V12 ASM 1
27 401-24349 M7 UNIT ASM 1
28 401-24350 M11 UNIT ASM 1
29 - SCREW M4X12 4
30 401-24037 RUBBER SHEET 1
31 401-21304 FLOW SWITCH 2
32 401-24038 VACUUM FILTER 2
33 401-24039 MINIATURE ELBOW 4
34 401-24040 HOSE NIPPLE 2
35 401-24041 BRANCH 1
36 401-24042 DIFFERENT DIAMETER BRANCH 1
37 401-24043 COMPRESSION SPRING 2
38 401-24044 COMPRESSION SPRING 1
39 401-24045 HAND OPERATED STAGE 1
40 401-24046 STRIPPER BOLT 1
41 401-24047 LOCATING BOLT 1
42 401-24048 MET AL WASHER 3
43 401-24001 CLAMPING PULLEY 2
44 401-21302 TIMING BELT 1
45 401-24049 CABLEVEYOR 1
46 401-24050 ACTUATOR 1
47 401-21305 PHOTO SENSOR 3
48 401-21303 AC SERVO MOTOR 1
49 401-21291 CCD CAMERA 1
50 - SCRWE M2X4 2
51 - WASHER M2 2
52 401-21292 LED LIGHTING 1
53 401-24383 LENS BARREL 1
54 401-21306 REFLECTION MODE SENSOR 1
55 - SCREW M4X8 4
56 - SCREW M5X15 12
57 - SCREW M5X15 4
58 - SCREW M3X5 8
59 - SCREW M4X6 4
60 - SCREW M2X5 12
61 - SCREW M4X16 2
62 - SPRING WASHER M4 2
63 - WASHER M4 2
64 - NUT M4 2
65 - SCREW M3X8 2
66 - SPRING WASHER M3 2
67 - SCREW M3X6 3
68 - SCREW M2X8 8
69 - SCREW M3X8 3
70 - SCREW M4X20 4
71 - SCREW M2.5X6 2
72 - SCREW M4X12 4
73 - SCREW M4X8 2
74 - WASHER M4 2
75 - BOLT M6X25 4
76 - SPRING WASHER M6 4
77 - WASHER M6 4
78 - BOLT M6X30 3
79 - BOLT M5X30 2
80 - SPRING WASHER M5 2
81 - WASHER M5 2
82 401-24096 STOPPER PLATE 1
83 401-24105 STOPPER BOLT 2
84 401-24254 T SENSOR BRACKET 1
85 - BOLT M6X30 2
86 - SCREW M8X35 4
87 - SPRING WASHER M8 4
88 - WASHER M8 4
89 - SCREW M4X8 2
90 - SPRING WASHER M4 2
91 - WASHER M4 2
92 - SCREW M2.5X25 2
93 - SPRING WASHER M2.5 2
94 - WASHER M2.5 2
95 - NUT M2.5 2
96 - SCREW M4X12 4
97 - WASHER M4 4
98 - SCREW M3X8 4
99 - SCREW M4X8 2
100 - SCREW M2.5X25 2
101 - WASHER M2.5 2
102 401-24097 STOPPER PLATE 1
103
#02
401-23157 RUBBER TIP 2

- -
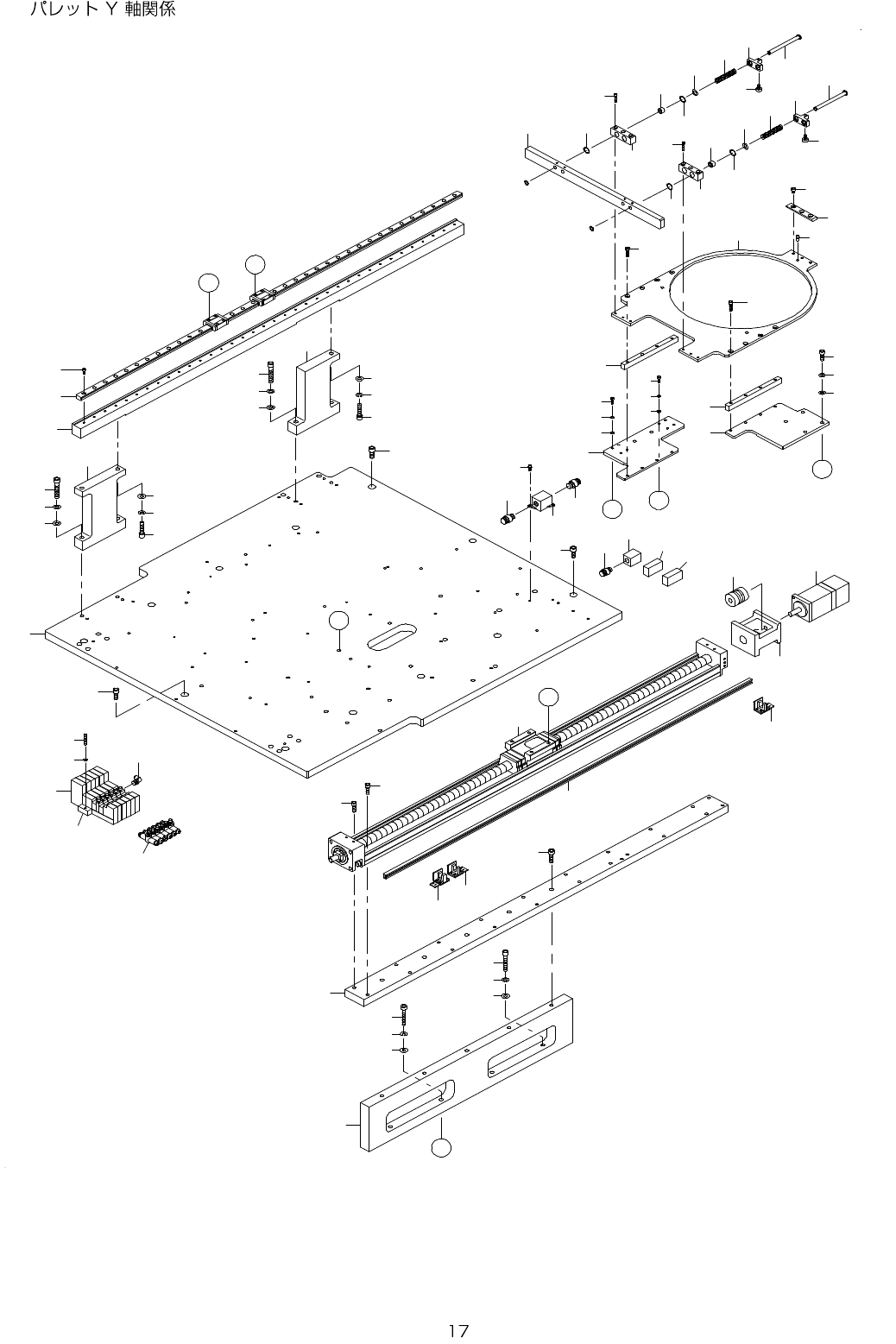
9. PALLET Y AXIS COMPONENTS
1
7
5
6
1 8
2 0
1 9
2 1
3 5
2 3
3 22 5
3 7
2 6
2 6
2 7
8
9
1 5
1 1
1 4
1 4
1 4
1 6
3 9
4 1
4 3
4 2
5 7
5 7
5 7
4 4
4 5
4 6
4 4
4 5
4 6
4 4
4 5
4 6
4 4
4 5
4 6
4 8
4 9
4 7
5 6
4 8
4 9
4 7
2
5 3
5 3
5 5
A
A
2 2
5 4
3 4
3 5
2 3
2 4
3 1
2 2
5 4
2 4
3 2
5 2
5 1
5 0
3 6
3 0
5 0
3 6
3 0
2 9
3 8
1 0
1 3
1 7
B
C
B
C
D
D
2 8
1 2
4
3
1 8
4 0
3 3
3 2
3 4
3 2
3 3
3 1
6 1
6 0
5 9
5 8