FX-1_FX-1R-Rev07.pdf - 第75页
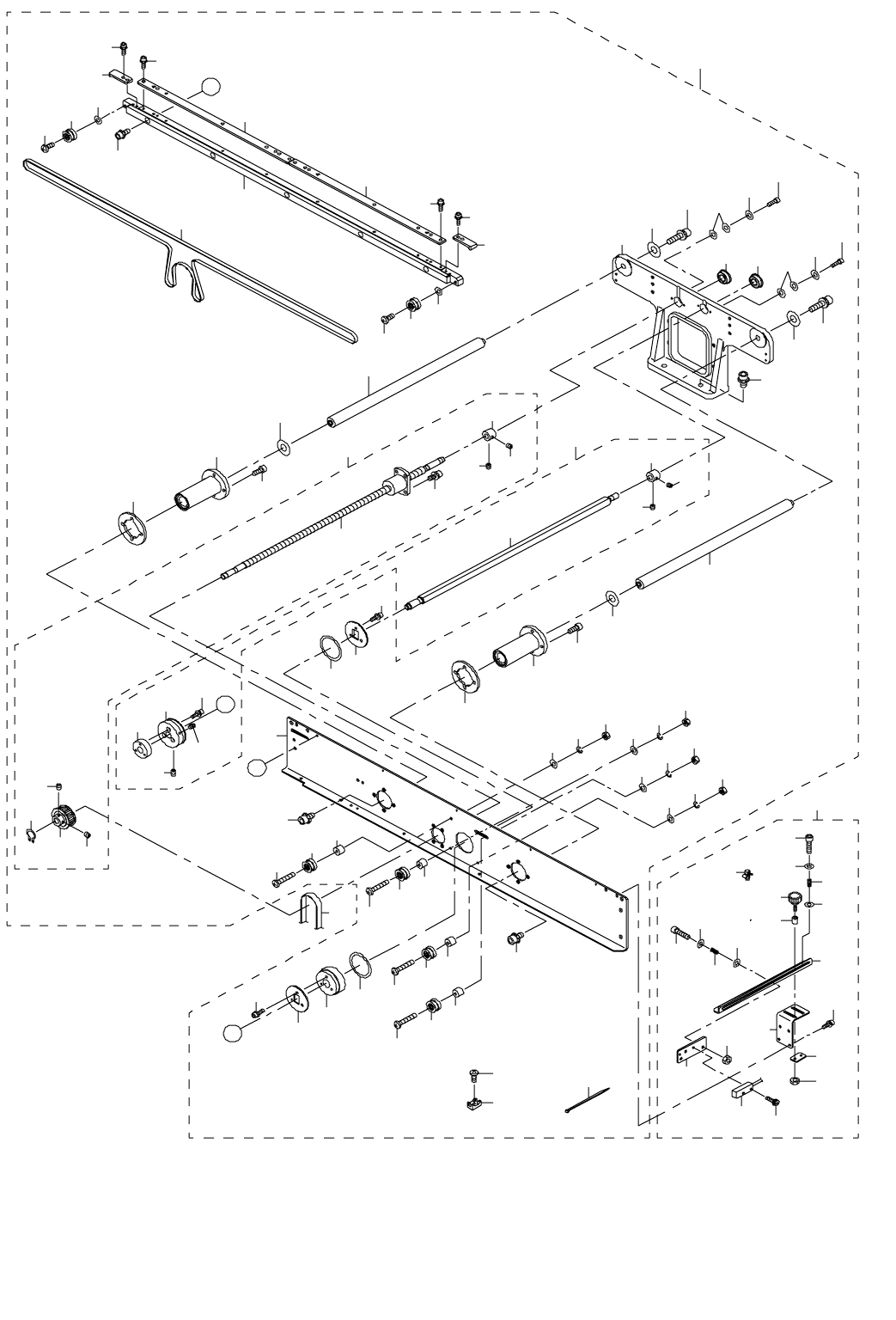
- 70 - NO TE( 注記 ) * INSTAL LATION PO SITI O N AN D D IRECTION VARY IF THE PWB T RAN SFE R R EFE RENC E IS DIF FERE NT . 基板搬送基準が異なると取付位置、方向が変わります。 REF .NO N OTE PA RT NO D E S C R I P T I O N 品 名 Q ty 1 L1 71E-6 21-0 A0 …

- 69 -
35.PWB CONVEYOR COMPONENTS (9)
基板搬送関係(9)
3
4
6
7
6
8
9
8
13
17
76
77
19
21
22
22
23
24
25
27
32
29
28
29
33
37
38
39
47
54
38
37
39
40
41
52
55
51
59
57
58
63
64
65
34
36
45
44
43
26
20
7
5
56
53
57
46
48
49
11
15
16
14
45
44
43
35
40
41
42
42
45
44
43
45
44
43
42
41
40
40
2
1
24
30
30
31
9
66
10
67
62
60
12
41
61
42
72
18
50
70
71
69
73
74
75
75
74
74
75
74
75
68

- 70 -
NOTE( 注記 ) *INSTALLATION POSITION AND DIRECTION VARY IF THE PWB TRANSFER
REFERENCE IS DIFFERENT.
基板搬送基準が異なると取付位置、方向が変わります。
REF.NO NOTE PART NO D E S C R I P T I O N
品 名
Qty
1 L171E-621-0A0 RAIL PLATE FR UNIT
レールプレート FR ユニット
1
2 L171E-621-000 RAIL PLATE FR レールプレート FR (1)
3 SM-0050801-SC SCREW
トラスねじ M 5 L =8
(4)
4 L170E-121-000 CONVEYOR RAIL
コンベヤーレール
(1)
5 SL-6031492-TN SCREW
座金付き六角穴ボルト
(5)
6 L170E-221-000 PWB GUIDE U
PWB ガイド U
(2)
7 SL-6031092-TN SCREW 座金付き六角穴ボルト (3)
8 E2046-725-000 PWB INNER
PWB インナ
(2)
9 SL-6031092-TN SCREW
座金付き六角穴ボルト
(4)
10 SL-6031092-TN SCREW
座金付き六角穴ボルト
(2)
11 L172E-621-000 WAIT SENSOR BRKT R
ウェイトセンサーブラケット R
(1)
12 SL-6041092-TN SCREW 座金付き六角穴ボルト (2)
13 L173E-021-000 NUT PLATE S
ナットプレート S
(1)
14 L172E-821-000 PIN SENSOR BRKT R
ピンセンサー ブラケット R
(1)
15 SL-6041092-TN SCREW
座金付き六角穴ボルト
(2)
16 L173E-021-000 NUT PLATE S
ナットプレート S
(1)
17 L172E-921-000 SENSOR ADJUST PLATE センサー調節プレート (1)
18 L172E-121-0A0 WA PULLEY BRKT R UNIT
WA プーリーブラケット R ユニット
(1)
19 L172E-121-000 WA PULLEY BRKT R
WA プーリーブラケット R
(1)
20 L178E-221-0A0 IDOLER PULLEY UNIT
アイドラープーリーユニット
(1)
21 E4563-729-000 WIDTH ADJUST IDLER PULLEY (30)
幅調アイドラプーリ(30)
(1)
22 E2017-715-000 M LINER BUSH M ライナブッシュ (2)
23 E2018-715-000 PULLEY SLEEVE
プーリ スリーブ
(1)
24 WP-0531001-SC WASHER
平座金みがき丸 M 5
(2)
25 WS-0510002-KN SPRING WASHER
ばね座金 5.1 X 9.2 X 1.3
(1)
26 NM-6050001-SC NUT M5
六角ナット M 5 X 0.8 1種
(1)
27 SL-6053092-TN SCREW 座金付き六角穴ボルト (1)
28 SB-1040002-00 BALL BEARING
ボウルベアリング A
(2)
29 WP-0451016-SP WASHER 4.5X20X1
平座金 4.5 X 20 X 1
(2)
30 WP-0430801-SC WASHER 4.3X9X0.8
平座金 4.3X9X0.8
(2)
31 SL-6042042-TN SCREW
座金付き六角穴ボルト
(1)
32 WP-0531001-SC WASHER 平座金みがき丸 M 5 (1)
33 SL-6040892-TN BOLT
座金付き六角穴ボルト
(2)
34 E2012-721-000 ADJUST PLATE
アジャストプレート
(1)
35 SL-6030692-TN BOLT
座金付き六角穴ボルト
(2)
36 SB-1080002-00 SIDE BEARING
サイドベアリング
(1)
37 E2111-715-0A0 CONVEYOR PULLEY ASM.
搬送プーリ(組)
(2)
38 WP-0430800-SC WASHER M4 平座金小形丸 M 4 (2)
39 SM-4040801-SC SCREW M4X0.7 L=8
なべ小ねじ M 4 X 0.7 L =8
(2)
40 E2089-721-0A0 CONVEYOR PULLEY B ASM.
搬送プ−リ B 組
(4)
41 E2055-721-000 PULLEY SPACER
プーリスペーサ
(4)
42 SM-4043050-SC SCREW M4X0.7 L=30
なべ小ねじ M 4 X 0.7 L =30
(4)
43 WP-0430801-SC WASHER 4.3X9X0.8 平座金 4.3X9X0.8 (4)
44 WS-0410002-KN SPRING WASHER
ばね座金 M 4
(4)
45 NM-6040001-SC NUT M4
六角ナット M 4
(4)
46 L172E-521-000 RAIL STAND FR
レールスタンド FR
(1)
47 SL-6052092-TN SCREW
座金付き六角穴ボルト
(2)
48 L170E-821-000 CONVEYOR MOUNT BLOCK コンベヤー マウント ブロック (1)
49 SL-6062092-TN SCREW M6 L=20
座金付き六角穴ボルト
(4)
50 L178E-321-0A0 OUT MOTOR UNIT
OUT モーターユニット
(1)
51 E9456-729-MA0 OUT MOTOR ASM.
OUT モータ組
(1)
52 HM-0017700-10 GEAR HEAD
ギアヘッド
(1)
53 SM-4054501-SC SCREW M5X0.8 L=45 なべ小ねじ M 5 X 0.8 L =45 (4)
54 WS-0510002-KN SPRING WASHER
ばね座金 5.1 X 9.2 X 1.3
(4)
55 E4597-729-000 MOTOR BRACKET A (30)
モータブラケット A(30)
(1)
56 400-00872 MOTOR PULLEY S
モータプーリ S
(1)
57 SM-8030602-TP SCREW M3X0.5 L=6
止めねじ M 3 X 0.5 L =6
(2)
58 SL-6051092-TN BOLT 座金付き六角穴ボルト (4)
59 SL-6051692-TN BOLT
座金付き六角穴ボルト
(1)
60 L171E-021-000 DRV TIMIG BELT
DRV タイミングベルト
(1)
61 SB-1080002-00 SIDE BEARING
サイドベアリング
(1)
62 L171E-121-000 CONVEYOR BELT S
コンベヤーベルト S
(1)
63 HX-0029400-00 FIXED BASE 固定ベース (8)
64 SM-4040601-SC SCREW M4X0.7 L=6
なべ小ねじ M 4 X 0.7 L =6
(8)
65 EA-9500B01-00 CABLE BAND
束線バンド
(9)
66 L179E-421-000 WAIT SENSOR BLOCK R
ウェイトセンサー ブロック R
(1)
67 SM-8020202-UZ SCREW
止めねじ
(1)
68 L828E-921-0A0 WAIT SENSOR ASM ウェイトセンサー組 (1)
69 400-24239 T SENSOR BR (FX-1R)
T センサー BR(FX −1 R)
(1)
70 SL-4030691-SC SCREW M3X6 (FX-1R)
なべ小ねじセムス(FX −1 R)
(3)
71 400-29824 SENSOR PWB ASM. (FX-1R)
温度センサ基板組(FX −1 R)
(1)
72 HX-0031400-00 SPIRAL TABE (FX-1R)
スパイラル チューブ(FX −1 R)
(0.1)
73 SL-6031092-TN SCREW (FX-1R) 座金付き六角穴ボルト(FX −1 R) (2)
74 HX-0034400-00 HARNESS PARTS 束線パーツ (4)
75 SL-4031091-SC SCREW M3 X 10
なべ小ねじセムス
(4)
76 400-63747 BU PIN RECEIVER SENS ASM
BU ピン受光センサ組
(1)
77 400-63746 BU PIN EMITTER SENS ASM
BU ピン投光センサ組
(1)

- 71 -
36.PWB CONVEYOR COMPONENTS (10)
基板搬送関係(10)
53
54
3
52
4
7
6
6
8
8
9
7
10
11
12
14
15
14
15
14
13
15
13
13
18
16
17
21
20
19
23
21
25
24
25
27
28
28
33
34
15
13
14
42
24
35
35
19
25
45
46
48
48
51
49
51
50
30
29
31
20
62
68
58
62
63
64
70
67
68
68
59
66
65
69
A
A
11
10
12
9
5
37
38
36
37
39
41
43
32
2
1
26
26
43
40
41
42
44
B
B
69
57
60
67
61
68
71
56
47
22
55
31
30
29
25
27
18
16
17
17
16
18
18
16
17