00191161-01 - 第178页
6 Komponentbehandling Skötselinstruktion SIPLACE 80S-20/F4/F4-6/F5 6.6 Våffelpackväxlare Utgåva 03/98 CE SWE fr.o.m. programversion SR.404.xx 6 - 26 6.6.9 Montering av våf felpackväxlaren Innan du fö r VPV i n i mask ine…

Skötselinstruktion SIPLACE 80S-20/F4/F4-6/F5 6 Komponentbehandling
Utgåva 03/98 CE SWE fr.o.m. programversion SR.404.xx 6.6 Våffelpackväxlare
6 - 25
6.6.7 Påfyllning av våffelpackväxlaren
OBSERVERA
Både magasinhållare art.nr. 00132110-04 (äldre) och art.nr. 00116431-xx (ny) kan användas. Magasinen kan
dock inte användas i blanddrift d.v.s. endast magasin av samma typ kan användas.
- Våffelpackväxlaren kan fyllas på utan att maskinen stoppas.
- Körning till och avslutning av våffelpackväxlarens påfyllning kan ske under pågående placering. Se ytterli-
gare också del 3.4.5 i den engelska huvuddokumentationen.
- I menyn “Komponentmatning” i undermenyn “Våffelpackväxlare” beskrivs de funktioner som kan genom-
föras med våffelpackväxlaren.
- Finns en våffelpackväxlare som är korrekt ansluten till motsvarande avställningsplats, kan körning till och
från de olika funktionerna även ske utan tillhörande uppsättning. Fyllningsgraden kan inte matas in.
- Sker påfyllning med varierande uppsättning under pågående placering så måste fyllningsgraderna medde-
las stationerna i efterhand (efter sändning av tillhörande uppsättning).
- Kontroll av vad som finns på varje bricka vid avslutad påfyllning utförs med den aktuella, på stationen
befintliga uppsättningen. Om påfyllning redan sker för en senare uppsättning kan det utmatade kravet på
innehåll inte stämma överens med den framtida uppsättningen.
6.6.8 Systemrutiner i felsituationer
- Väljs påfyllning under en hämtnings- eller bytesprocedur så kvitteras kravet negativt med meddelandet
“Bearbetning av VPV pågår”. Efter avslutad hämtningsprocedur skall menyraden “Körning till påfyllning”
väljas på nytt.
- Griper placeringshuvudet tag i våffelpackväxlaren när denna står i påfyllningsläge så avbryts placeringen
med meddelandet “Väntar på avslutning av VPV:s påfyllning” och maskinen väntar på att operatören
avslutar påfyllningen av våffelpackväxlaren.
- Väljs en annan VPV-funktion förutom “Avsluta påfyllning” när våffelpackväxlaren står i påfyllningsläge,
vägras kravet och meddelandet “VPV i påfyllningsläge” visas. Detta meddelande kommer även upp om
“Avsluta påfyllning” väljs trots att våffelpackväxlaren inte är i påfyllningsläge.
- Väljs en VPV-funktion vid en plats där inte någon VPV finns, vägras detta efter en fördröjning med 10 sek.
med meddelandet “Ingen VPV på denna plats”.

6 Komponentbehandling Skötselinstruktion SIPLACE 80S-20/F4/F4-6/F5
6.6 Våffelpackväxlare Utgåva 03/98 CE SWE fr.o.m. programversion SR.404.xx
6 - 26
6.6.9 Montering av våffelpackväxlaren
Innan du för VPV in i maskinen dra bort övre delen av kameran av komponentvisionssmodulen.
AKTAS
Med de påbyggda hjulen kan våffelpackväxlaren köra in och ut på maskinen. Hjulen lämpar sig inte att trans-
portera våffelpackväxlaren längre sträckor på. TIPPRISK!
Använd den avsedda lyftvagnen för transport (fr.o.m art.nr. 00123141-01).
För försiktigt in våffelpackväxlaren till den avsedda platsen vid maskinen. Dockningspinnen på våffelpack-
växlaren måste vara i position över dockningsspåret på SIPLACE automaten.
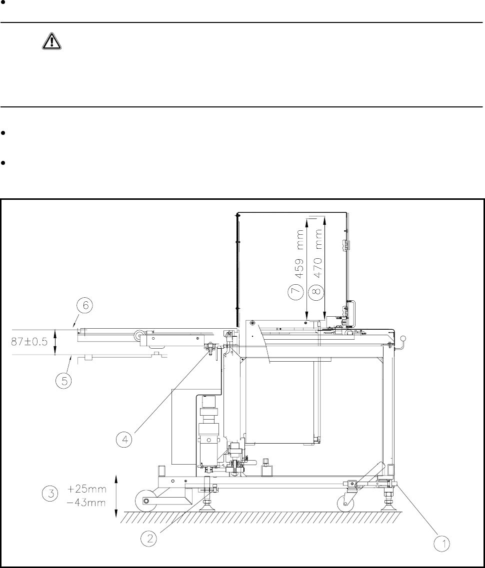
Kontrollera måttet (87 +/- 0,5 mm) mellan underkanten av magasinhållaren till överkanten av komponent-
bordet (se Bild 6.6.5).
Bild 6.6.5 Montering av våffelpackväxlaren.
- Text till Bild 6.6.5
1) Med nyckel till infälld bussning UPP/NER 2) Låsskruv
3) Slag 4) Dockningspinne
5) Överkant komponentbord-magnetskena 6) Underkant magasinhållare
7) Nominellt slag (459 mm) 8) Påfyllningsläge (470 mm)

Skötselinstruktion SIPLACE 80S-20/F4/F4-6/F5 6 Komponentbehandling
Utgåva 03/98 CE SWE fr.o.m. programversion SR.404.xx 6.6 Våffelpackväxlare
6 - 27
Lossa låsmuttrarna till fötterna (se Bild 6.6.5) och vrid med en 10 mm kulnyckel för infälld bussning våffel-
packväxlaren neråt tills dockningspinnen hakar i. Våffelpackväxlarens läge måste sedan riktas med det
inbyggda vattenpasset.
Dra åt låsmuttrarna och kontrollera ännu en gång på vattenpasset.
Sätt tillbaka belysningen på komponentvisionsmodulen.
6.6.10 Tekniska data
Våffelpackväxlare
Längd ca. 1475 mm
Bredd ca. 620 mm
Höjd ca. 1355 mm
Vikt ca. 240 kg
Magasinstorlek 238 mm x 338 mm
Slag vertikalt 470 mm
Slag horisontellt 730 mm
Delning 17 mm
Förrådsinnehåll 28 magasinhållare för våffelpackmagasin
Magasinhållare 260 mm x 360 mm
Max. vikt förråd 50 kg
Golvbelastning < 25 N/cm²
Bytestid (magasin/magasin) ≤ 3 sek.
Tab. 6.6.1