00191161-01 - 第86页
2 Inledning och grundbegrepp Skötselinstruktion SIPLACE 80S-20/F4/F4-6/F5 2.1 Visningar och driftselement vid automaten Utgåva 03/98 CE SWE fr.o.m. programversion SR.404.xx 2 - 10 2.1.7 Huvudfelindikering För varje p ort…

Skötselinstruktion SIPLACE 80S-20/F4/F4-6/F5 2 Inledning och grundbegrepp
Utgåva 03/98 CE SWE fr.o.m. programversion SR.404.xx 2.1 Visningar och driftselement vid automaten
2 - 9
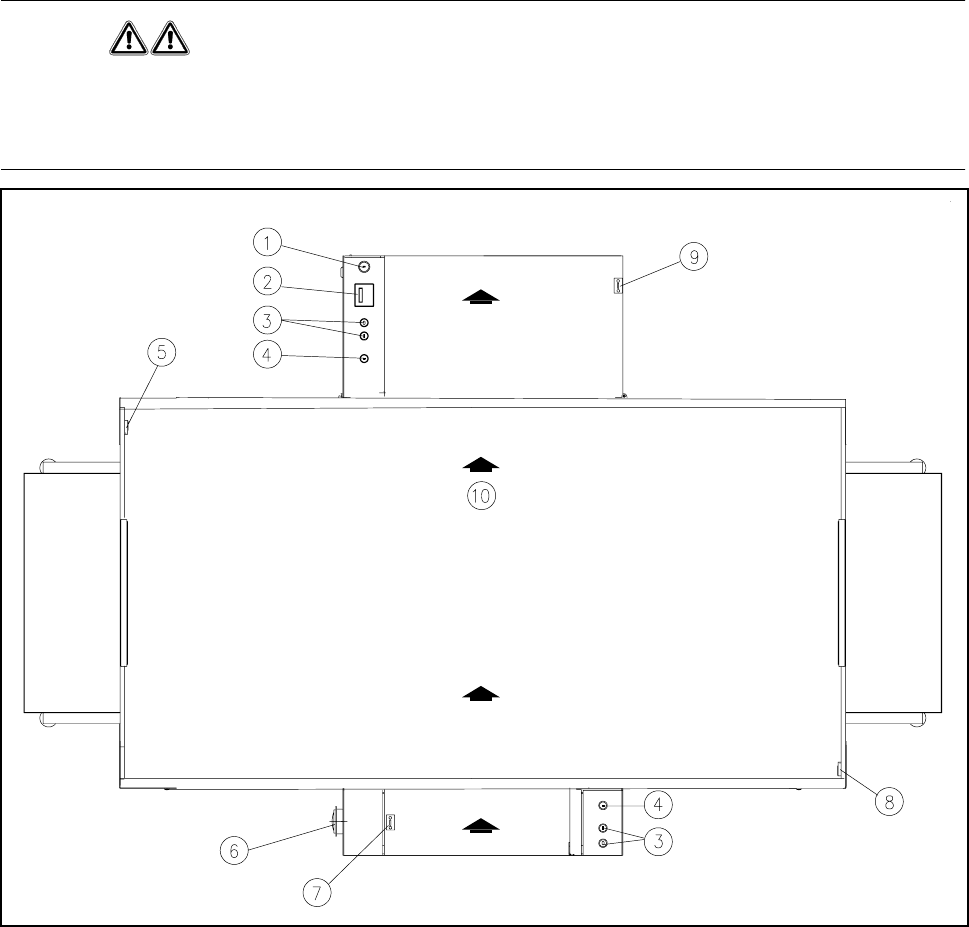
2.1.6 Strömbrytare på automaten
Bild 2.1.5 visar läget för huvudströmbrytare, strömbrytare för kåpan, knappar för START och STOPP, NÖD-
STOPP-knapp, och nyckelströmbrytare på automaten:
VARNING
Nyckelströmbrytaren får endast låsas upp av kvalificerad personal för service- och underhållsarbeten.
Nyckeln skall skyddas mot obehörig användning. I annat fall kan svåra personskador eller skador på automa-
ten bli följden.
Bild 2.1.5 Strömbrytarnas läge på automaten
- Text till Bild 2.1.5
1 Nyckelströmbrytare 2 Komponenträknare
3 START och STOPP-knappar 4 NÖDSTOPP-knapp
5 Skyddsbrytare, vänster 6 Huvudbrytare
7 Skyddsbrytare täckkåpa inmatningsband 8 Skyddsbrytare, höger
9 Skyddsbrytare täckkåpa utmatningsband 10 Transportriktning

2 Inledning och grundbegrepp Skötselinstruktion SIPLACE 80S-20/F4/F4-6/F5
2.1 Visningar och driftselement vid automaten Utgåva 03/98 CE SWE fr.o.m. programversion SR.404.xx
2 - 10
2.1.7 Huvudfelindikering
För varje portal finns en huvudfelindikeringslampa. Den undre lampan indikerar fel på portal 1 och den övre
lampan indikerar fel på portal 2.
Bild 2.1.6 Huvudfelindikering
- Text till Bild 2.1.6
1 Huvudfelindikeringslampa (vit), portal 1 (avställningsplats 3/4)
2 Huvudfelindikeringslampa (vit), portal 2 (avställningsplats 1/2)
3 Driftsindikatorlampa (grön)
2.1.7.1 Funktionsbeskrivning
- Driftsindikatorn kontinuerligt på
Automaten är i gång
- Driftsindikatorn blinkar
Automaten väntar på ett kretskort på ingångsbandet eller automaten väntar, att utgångsbandet blir fritt.
- Huvudfelindikeringen blinkar
I respektive portal är en eller flera spår tomma. Automaten fortsätter att använda resterande komponenter.
- Huvudfelindikeringen lyser konstant
Ett fel har uppstått vid respektive portal. Automaten har stannat.
- Båda huvudfelindikeringarna lyser konstant
Ett fel har uppstått i hela automaten. Automaten har stannat.

Skötselinstruktion SIPLACE 80S-20/F4/F4-6/F5 2 Inledning och grundbegrepp
Utgåva 03/98 CE SWE fr.o.m. programversion SR.404.xx 2.2 Grunder och struktur av operatörsyta
2 - 11
2.2 Grunder och struktur av operatörsyta
Användarstyrningen och framställningen av driftsmenyerna för SIPLACE 80S20/F4 realiseras genom MS-
Windows NT 4.0, och baseras på MS-Windows standard.
2.2.1 Att arbeta med markörkula respektive touch-screen
Markörkulan med musknappen är placerad på tangentbordet (se Bild 2.1.2).
Med markörkulan respektive fingret flyttas markören över bildskärmen till menyer, menyrubriker, ikoner (funk-
tionsväljare) eller aktiveringsrutor, vilka kan väljas respektive utföras med den vänstra musknappen. Dessa
funktioner kan även väljas och utföras med hjälp av fingret direkt på bildskärmen (touch-screen). Denna
åtgärd kallas i efterföljande kapitel för “klicka”.
2.2.2 Indelning av bildskärmen
Bild 2.2.1 Indelning av bildskärmen
- Text till Bild 2.2.1
1 Menyrad 2 Titelfält
3 Arbetsfönster 4 Maskinstatus
5 Statusfält 6 Symbolfält
7 Statusrad
1
2
3
4
5
6
7