JM-20-Rev08PDF - 第8页
- - 2. BASEFRAME COMPONENTS(2) 1 2 1 1 1 1 1 0 2 4 1 6 1 5 2 6 7 6 2 2 2 3 2 0 2 1 1 7 1 4 1 3 3 2 5 4 2 5 1 5 1 6 9 8 1 1 8 1 9 2 8 2 3 2 7

- -
REF.NO NOTE PARTNO DESCRIPTION Qty
1 PS-0500202-KP SPRINGPIN5X20 2
2 401-36709 BANK_PLATE 2
3 401-36710 BU_PLATE 1
4 SL-6040892-TN SCREWM4L=8 12
5 401-36711 FU_COVER_BR 2
6 E1035-729-000 ADJUSTERFOOT 4
7 400-00519 BASEFRAMENUT 4
8 E1044-729-000-A ADJUSTNUT 4
9 400-00403 ADJUSTBOLT 4
10 SM-6126002-TN SCREWM12L=60 12
11 WS-1220002-KN SPRINGWASHER 12
12 WP-1302501-SC WASHER13X24X2.5 12
13 SM-6083002-TN SCREWM8L=30 24
14 NM-6080002-SC NUTM8 12
15
#02
400-13307 FPPUSHER 12
16
#02
NM-6080001-SC NUTM8X1.25 12
17
#01
HK-0429900-7A CAP 1
18 PS-0400122-KP SPRINGPINTYPEW4X12 4
19
#01
400-00535 BASEFRAMENUT(EN) 4
20 401-08337 FANBR 5
21 401-33768 DCFAN 5
22 SL-4033091-SC SCREWM3L=30 10
23 401-36712 FU_COVER_POST 2
24 SL-6061292-TN SCREWM6L=12 8
25 SL-3061232-TN SCREWM6L=12 10
26 401-37042 IF_PANEL_ASSY 1
27 401-36735 IF_PANEL (1)
28 401-36512 SMEMAOUTCABLEASM (1)
29 SL-4030881-SC SCREWM3L=8 (8)
30 HK-0651200-80 CONNECTOR (1)
31 401-36511 SMEMAINCABLEASM (1)
32
#03
401-06608 POWERLAMP200VCABLEASM (1)
33
#04
401-06609 POWERLAMP400VCABLEASM (1)
34
#01
HX-0066000-00 DUSTCOVER (1)
35 401-37043 MTS_IF_PANEL_ASSY 1
36 401-36445 MTCPWRWIRELASM (1)
37 SL-4030881-SC SCREWM3L=8 (4)
38 PJ-2300062-00 UNION (1)
39 PX-9500010-00 PLUG (1)
40 SM-4860501-SB SCREWM2.6L=5 (2)
41 401-36736 MTS_IF_PANEL (1)
42 400-95126 MTCMTSI/FBRCABLEASM (1)
43 SL-6042592-TN SCREWM4L=25 4
44
#01
400-00404 ADJUSTBOLT(EN) 4
45 SL-6043092-TN SCREWM4L=30 4
46
#01
HK-0429901-4A CAP 2
47
#02
E6600-729-000 ADJUSTFOOTN 4
48
#02
SM-6082502-TN SCREW 12
49
#02
400-13306 FLICTIONPLATE 12
50
#02
SM-1030801-SC SCREWM3L=8 36

- -
2. BASEFRAMECOMPONENTS(2)
1 2
1 1
1 1
1 0
2 4
1 6
1 5
2 6
7
6
2 2 2 3
2 0 2 1
1 7
1 4
1 3
3
2
5
4
2 5
1 5
1 6
9
8
1
1 8 1 9
2 8
2 3
2 7

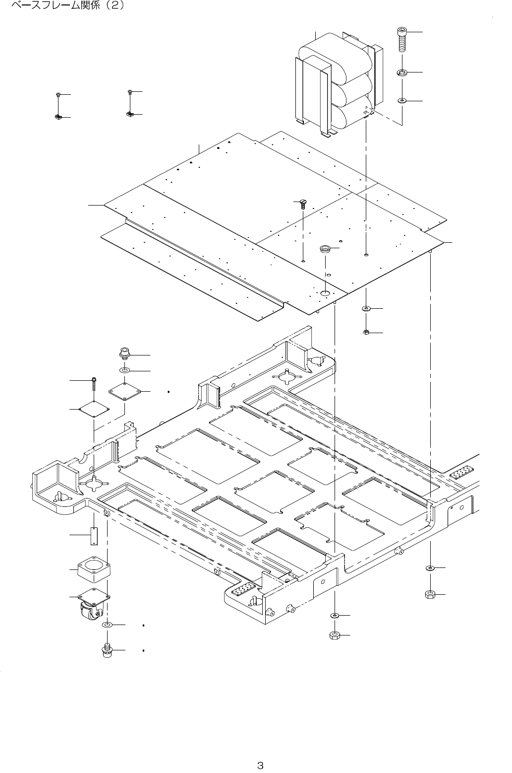
- -
REF.NO NOTE PARTNO DESCRIPTION Qty
1 400-00450 TRANSSCREW 2
2 401-36719 E_BASE_PLATE_RL 1
3 401-36718 E_BASE_PLATE_F 1
4 HX-0018800-0F CORDBUSH 1
5 401-36720 E_BASE_PLATE_RR 1
6 HX-0029400-00 FIXEDBASE 6
7 SM-4040801-SC SCREWM4X0.7L=8 6
8 401-36337 TRANSFORMER 1
9 SM-6124502-TN SCREWM12L=45 2
10 WS-1220002-KN SPRINGWASHER 2
11 400-94475 BPWASHER 6
12 NM-6120001-SC NUTM12X1.75TYPE1 4
13 HX-0029400-00 FIXEDBASE 13
14 SM-4040601-SC SCREWM4X0.7L=6 13
15 400-94475 BPWASHER 11
16 NM-6100001-SC NUTM10X1.5 11
17
#03
400-94543 CASTER_3020 4
18
#01
400-94544 CASTERPLATE 4
19
#02
400-94545 CASTER_PLATE_EN 4
20
#01
SL-6103542-TN SCREWM10L=35 16
21
#02
SL-6102042-TN SCREWM10L=20 16
22
#01
WP-1052001-SC WASHER10 16
23
#02
WP-1052001-SC WASHER10 32
24 400-94549 HOLECOVER 4
25 400-98142 CHNUTPLATE 4
26 SL-6043092-TN SCREWM4L=30 8
27
#02
400-00406 CASTERSPACER(EN) 4
28
#02
SL-6104042-TN SCREWM10L=40 16