SM451_TechnicalReference(Kor_Ver4[1].1) - 第129页
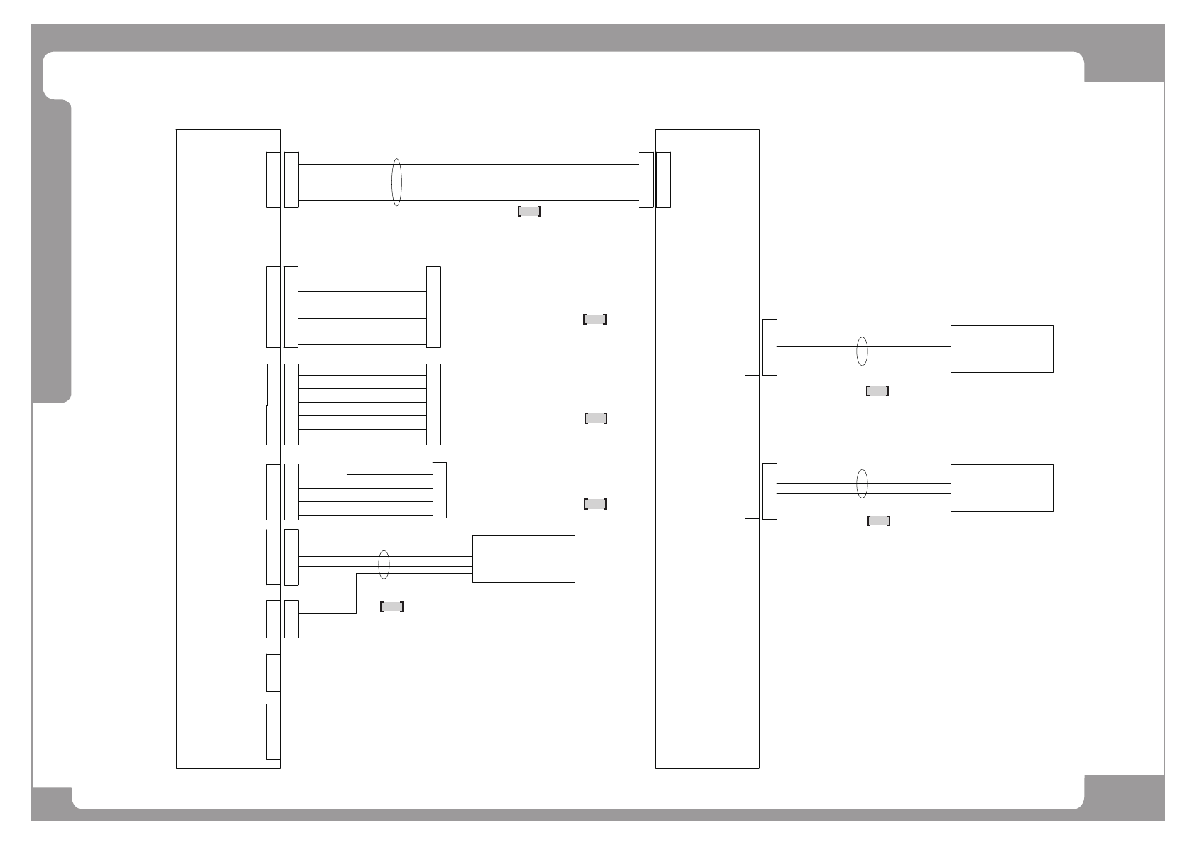
Page SAMSUNG TECHWIN 11 9 SM451 F ront Feeder Board Interface - SM451V NO. P ART NO. P ART NAME Q'TY Old No. Stock Apply Reference 1 J90831325B FFD R_RFDR_CAN_CABLE_ASSY 1 2 J90833332A MASTER CPU1-FFDR CAN CABL E AS…

Page
SAMSUNG TECHWIN
118
SM451
Front Feeder Board Interface - SM451V
juXXw
Z[w
myvu{GmllklyGpVm
ivhyk
myvu{GmllklyG
puw|{Gl{GiVk
RY[}
nuk
nuk
RY[}
Vpvylzl{
RY[n
RXYn
RXY}
jhuo
jhus
jhuo
jhus
Vpvylzl{
RY[n
RXYn
RXY}
[
\
]
[
\
]
[w
ju[w
]w
juZw
[
\
]
[
\
]
XX
]W
¥
]W
ju\z
Y
Y
Z
Z
juZz
X
X
]w
juYw
Z
Z
juYz
X
Y
X
Y
[
\
]
Z
[
\
]
Y
X
jhuGthz{lyGivhyk
ju[
Z
Y
X
ylhyGmllklyGpVm
juZ
zt[XmkWWX
zt[YXwTjhWWX
zt[XjhWWY
ju\w
]Ww
[
Z
Y
X
zhml{Gjvu{yvsGiVk
juYX
¥
¥
_
ju^w
_w
X
¥
_
X
ju^z
[
X
[
X
ju[z
YY
ZZ
X
]W
]Ww
¥
ju]w
myvu{GmllklyGihzl
slm{GiVk
mllklyGJX¥JZW
ztmkWWZ
XX
Z[
¥
Z[
¥
juXXz
XX
Z[
¥
Z[
¥
juXwjuXXz
Z[w
zt[XmkWW\
]W ]W
X
]Ww
¥
juZw
X
¥
juZz
XX
]W
]Ww
¥
]W
¥
juYw
juYz
mllklyGJZX¥J]W
ypno{GiVk
myvu{GmllklyGihzl
ztmkWW^
mllklyGJX¥JZW
myvu{GmllklyGihzl
slm{GiVk
ztmkWW]
mllklyGpuw|{OJX¥J]WP
mllklyGpuw|{OJ]X¥JXYWP
¥
_
ju_w
_w
X
1
2
3
4
5
6
7

Page
SAMSUNG TECHWIN
119
SM451
Front Feeder Board Interface - SM451V
NO. PART NO. PART NAME Q'TY Old No. Stock Apply Reference
1 J90831325B FFDR_RFDR_CAN_CABLE_ASSY 1
2 J90833332A MASTER CPU1-FFDR CAN CABLE ASSY SM421P_C 1
3 J90831336C FRONT_FDR_IO_BD_PWR_CABLE_ASSY 1
4 J90800838D LEFT FDR SOL OUTPUT CABLE ASSY 1
5 J90800841C LEFT FDR SENSOR INPUT CABLE ASS 1
6 J90800842C RIGHT FDR SENSOR INPUT CABLE AS 1
7 J90831413A FDR_INPUT_EXT_CABLE_ASSY SM41-FD005 1

Page
SAMSUNG TECHWIN
120
SM451
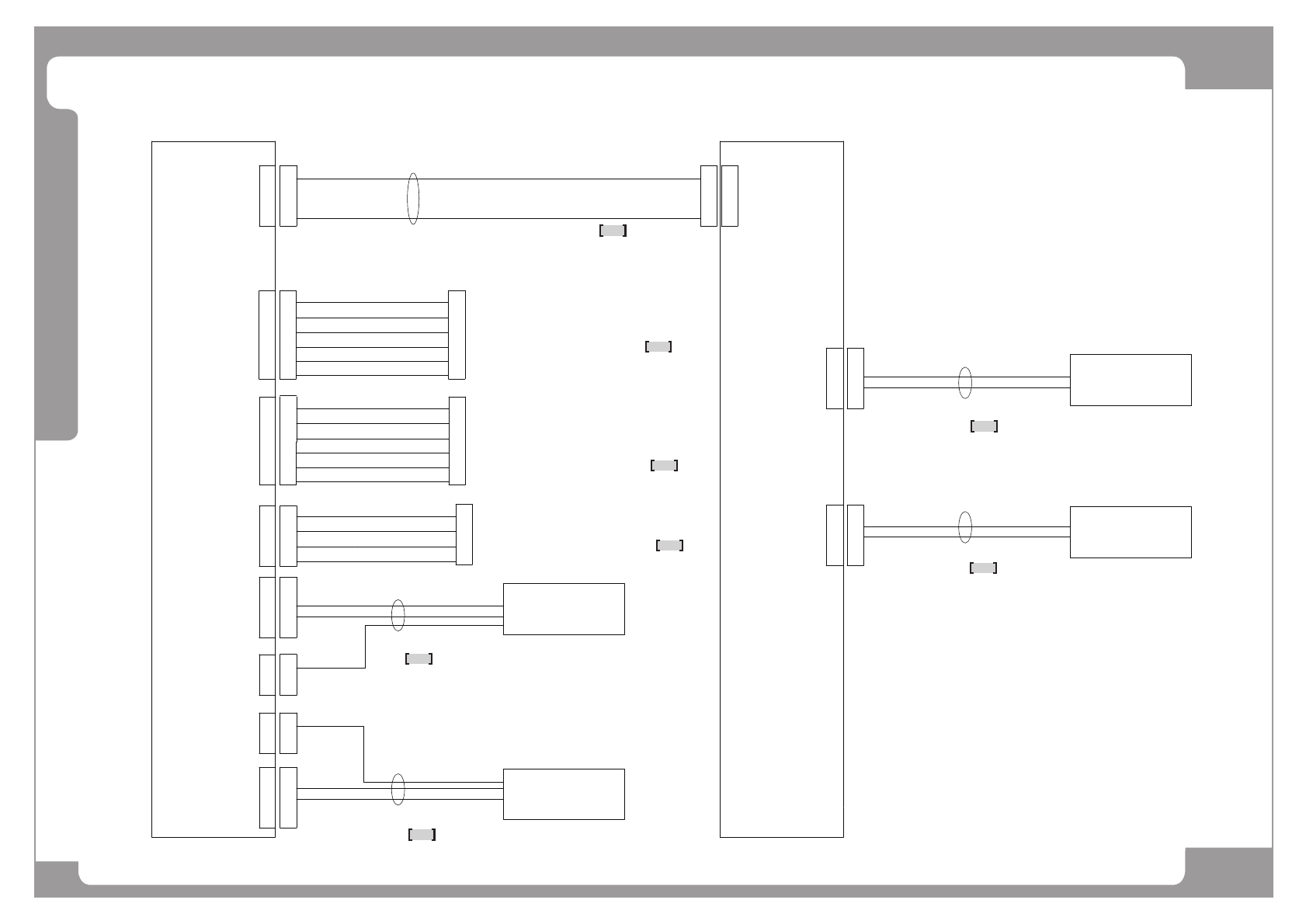
Rear Feeder Board Interface
juXXw
Z[w
ylhyGmllklyGpVm
ivhyk
ylhyGmllklyG
puw|{Gl{GiVk
RY[}
nuk
nuk
RY[}
Vpvylzl{
RY[n
RXYn
RXY}
jhuo
jhus
jhuo
jhus
Vpvylzl{
RY[n
RXYn
RXY}
[
\
]
[
\
]
[w
ju[w
]w
juZw
[
\
]
[
\
]
XX
]W
¥
]W
ju\z
Y
Y
Z
Z
juZz
X
X
]w
juYw
Z
Z
juYz
X
Y
X
Y
[
\
]
Z
[
\
]
Y
X
myvu{GmllklyGpVmGivhyk
juY
Z
Y
X
jvu}UGpVmGivhyk
juZ
zt[XmkWWY
zt[XTjhWWY
zt[XjhWWZ
ju\w
]Ww
[
Z
Y
X
zhml{Gjvu{yvsGiVk
juYY
¥
¥
_
ju^w
_w
X
¥
_
X
ju^z
[
X
[
X
ju[z
YY
ZZ
XX
]W
]Ww
¥
]W
¥
ju]w
ju]z
ylhyGmllklyGihzl
slm{GiVk
ylhyGmllklyGihzl
ypno{GiVk
mllklyGJX¥JZW
mllklyGJZX¥J]W
ztmkWWZ
ztmkWW[
XX
Z[
¥
Z[
¥
juXXz
XX
Z[
¥
Z[
¥
juXwjuXXz
Z[w
zt[XmkWW\
]W ]W
X
]Ww
¥
juZw
X
¥
juZz
XX
]W
]Ww
¥
]W
¥
juYw
juYz
mllklyGJZX¥J]W
ypno{GiVk
ylhyGmllklyGihzl
ztmkWW^
mllklyGJX¥JZW
ylhyGmllklyGihzl
slm{GiVk
ztmkWW]
mllklyGpuw|{OJX¥J]WP
mllklyGpuw|{OJ]X¥JXYWP
¥
¥
__
ju_w
_w
X
ju_z
X
q`W_ZX[XZh
1
2
3
4
5
6
7
8