00198723-01_UM_X-Serie-S_SV - 第213页
Driftsinstruktion SIPLACE X-serie S 4 Uppställning och driftsättning Fr.o.m. programversion 713.0 Utgåva 11 /2019 4.3 Ställ upp ytmonteringsautomaten 213 4.3.7 A vstånd för maskinfötterna och de fasta kret skort stranspo…

4 Uppställning och driftsättning Driftsinstruktion SIPLACE X-serie S
4.3 Ställ upp ytmonteringsautomaten Fr.o.m. programversion 713.0 Utgåva 11/2019
212
4
Lossa försiktigt båda insexskruvarna M24x90 (pos. 2 på bild 4.3 - 7, sidan 211) med skruv-
dragarinsatsen (nyckelmått 19 mm) och låt den yttre maskinfoten (pos. 1 på bild 4.3 - 7
, sidan
211
) långsamt glida ner till anslag.
Sätt på en maskinfot som passar kretskortstransportörshöjden.
– Yttre maskinfot för kretskortstransportörshöjd 900, 930 och 950 mm,
439 mm lång, art.nr 03000890-02 (pos. 1 på bild 4.3 - 4
, sidan 208)
Ställ in alla yttre maskinfötter provisoriskt.
Avståndet mellan maskinfotens undersida och maskinramens underkant ska vara enligt föl-
jande:
Justera skruven M24x2x120 (pos. 3 på bild 4.3 - 7, sidan 211) med skiftnyckeln NV 36 så att
avståndet i tabellen ovan för transportörshöjden nås.
Sänk försiktigt ned ytmonteringsautomaten med gaffeltrucken tills maskinfötterna berör gol-
vet jämnt. En andra person ska alltid kontrollera att ytmonteringsautomaten har ett stabilt läge
under nersänkningen. Eventuellt måste de yttre maskinfötternas fixering lossas något.
Sänk försiktigt ytmonteringsautomaten ytterligare tills de yttre maskinfötterna berör skruvarna
M24x2x120 (pos. 3 på bild 4.3 - 7
, sidan 211) för höjdinställning.
Kontrollera att maskinfötterna i mitten (se punkt 2 på bild 4.3 - 4, sidan 208) inte berör golvet.
Skruva in maskinfötterna i mitten lite till i ytmonteringsautomaten eller i distansstycket om det
behövs.
4
VARNING
Förskjut inte ytmonteringsautomaten!
Transportörsidorna kan skadas.
Se till att ytmonteringsautomaten inte förskjuts och skadar transportörsidorna.
kretskortstransportörshöj
d
Avståndet mellan maskinfotens undersida
och maskinramens underkant
900 mm 190 mm
930 mm 220 mm
950 mm 240 mm
ANM
Beskrivningen av den slutgiltiga justeringen av ytmonteringsautomaten finns i avsnitt
4.3.8.1
, sidan 215.

Driftsinstruktion SIPLACE X-serie S 4 Uppställning och driftsättning
Fr.o.m. programversion 713.0 Utgåva 11/2019 4.3 Ställ upp ytmonteringsautomaten
213
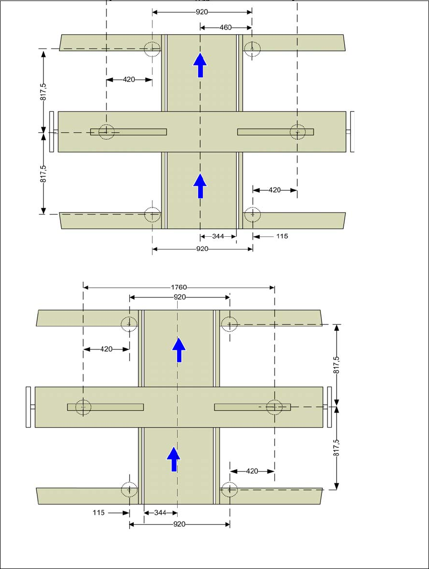
4.3.7 Avstånd för maskinfötterna och de fasta kretskortstransportörskanterna
Avstånd för kretskortsenkeltransportörens maskinfötter
4
Bild 4.3 - 8 Avstånd för kretskortsenkeltransportörens maskinfötter i millimeter
Fast transportörsida på max. posi-
tion till höger
a
.
a) Måttet beror på den fasta sidans position. Alla mått anges i mm.
Fast transportörsida på max. posi-
tion till vänster
a
.

4 Uppställning och driftsättning Driftsinstruktion SIPLACE X-serie S
4.3 Ställ upp ytmonteringsautomaten Fr.o.m. programversion 713.0 Utgåva 11/2019
214
4.3.7.1 Avstånd för kretskortsdubbeltransportörens maskinfötter
4
Bild 4.3 - 9 Avstånd för kretskortsdubbeltransportörens maskinfötter i millimeter
Fast transportörsida på max.
position till höger
a
.
a) Måttet beror på den fasta sidans position. Alla mått anges i mm.
Fast transportörsida på max.
position till vänster
a
.