PTS-NXT2-01JE - 第275页
This page intentionally blank. 275 PTS-NXT2-01JE Vol.1

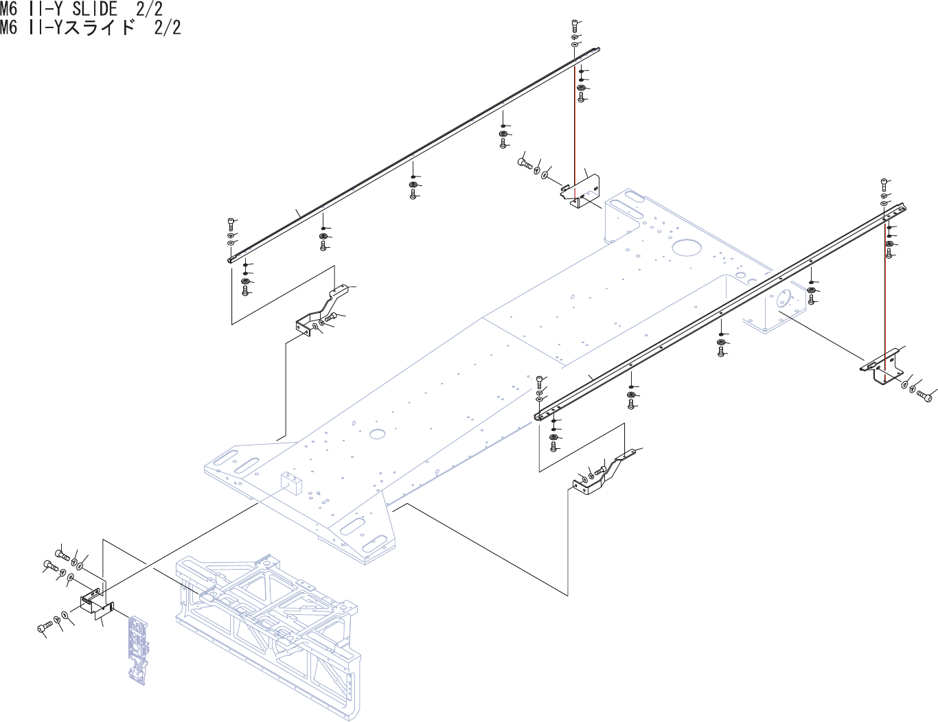
M6II-YSLIDE1/2
M6II-Yスライド1/2
QK02Y03
No. Drg.No.&CodeNo. QTY Description Rating
Materials
Remarks
番号 図番&コード番号 個数 品名 規格 材質 備考
123 PX06122 2 NAMEPLATE 銘板 OT
124 PZ29681 2 ROPE ロープ OT
125 S2025A 3 SHEET シート CTAM1 PL
126 K5172K 3 SCREW,C/RTRUSS 小ネジ十穴トラス M04X005(3カシロ) FE
127 K30157 3 CLIPPER クリッパ UC3 PL
128 K5172K 3 SCREW,C/RTRUSS 小ネジ十穴トラス M04X005(3カシロ) FE
129 PB99070 1 COVER 蓋 FE
130 H5289A 4 BOLT,HEXSOCKET ボルト六角穴 M04X012 FE
131 W1022A 4 WASHER,LOCK ワッシャスプリング 4M/M FE
132 PM07LD1 2 BLOCK,LOCATING ブロック位置決め FE
133 H5721A 4 BOLT,STOPPER ボルトストッパ SSB-M6X20-B OT
135 H5326A 4 BOLT,HEXSOCKET ボルト六角穴 M06X025ゼンネジ FE
136 W1024A 4 WASHER,LOCK ワッシャ ス
プ
リン
グ
6M/M FE
Note.1:[Interchangeableparts]PB61173(t=0.6),PB61183(t=0.5),PB61193(t=0.4),PB61202(t=0.3),PB66083(t=0.2),PB66090(t=0.1)
[選択部品]PB61173(t=0.6),PB61183(t=0.5),PB61193(t=0.4),PB61202(t=0.3),PB66083(t=0.2),PB66090(t=0.1)
274
PTS-NXT2-01JE
Vol.1

This page intentionally blank.
275
PTS-NXT2-01JE
Vol.1

25
29
30
31
33
32
34
26
27
28
1
1
3
2
4
3
2
4
3
2
4
3
2
4
6
7
8
9
17
10
18
11
19
12
20
13
16
21
22
23
24
14
15
7
6
7
8
7
6
7
8
6
7
8
6
7
8
6
7
8
7
6
7
8
6
7
8
6
7
8
6
7
8
7
QK02Y03
276
PTS-NXT2-01JE
Vol.1