PTS-NXT2-01JE - 第335页
PANELSTAND パネ ルスタ ンド UK01702 No. Drg.No.&CodeNo. Q TY Description Rating Materials Remarks 番号 図番 &コード 番号 個数 品名 規格 材質 備考 1 AA29K01 1 TABLE テーブ ル OT 2 PZ18500 1 TABLE テーブ ル FE 2.1 PZ18281 1 SEAL シール PL 3 PZ1…

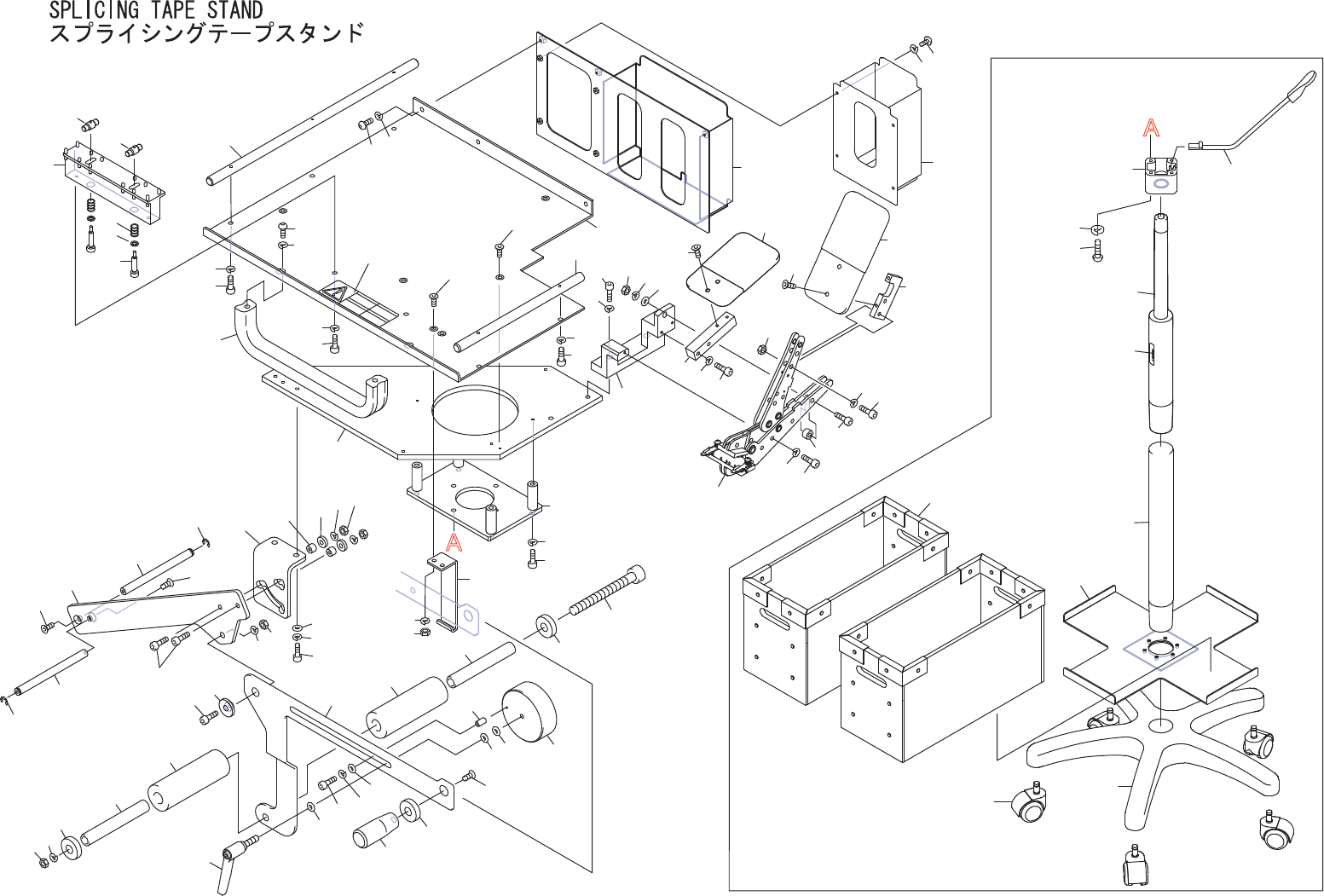
1
3
4
5
6
7
8
9
10
11
12
13
13
13
14
15
11
16
17
18
19
21
22
23
3
20
2
2.1
UK01702
334
PTS-NXT2-01JE
Vol.1

PANELSTAND
パネルスタンド
UK01702
No. Drg.No.&CodeNo. QTY Description Rating
Materials
Remarks
番号 図番&コード番号 個数 品名 規格 材質 備考
1 AA29K01 1 TABLE テーブル OT
2 PZ18500 1 TABLE テーブル FE
2.1 PZ18281 1 SEAL シール PL
3 PZ18510 2 HANDLE 取手 FE
4 K51959 8 SCREW,C/RCOUNTERSUNK 小ネジ十穴皿 M06X008ニッケルメッキ FE
5 PZ18520 1 BKT,SUPPORT BKT支え FE
6 PZ18570 1 GRIP 握り OT
7 PZ18580 1 WASHER ワッシャ FE
8 PZ18590 1 SPRING スプリング FE
9 PZ18600 1 COLLAR カラー PL
10 PZ18560 1 BOLT,HEX ボルト六角 FE
11 N1129A 2 NUT,NYLON ナットナイロン M8P=1.25 OT
12 K52621 1 SCREW,HEXSOCKETBUTTON 小ネジ六角穴ボタン M08X025 FE
13 PZ18620 3 WASHER ワッシャ FE
14 PZ18550 1 TABLE テーブル FE
15 PZ18610 1 COLLAR,CUSHION カラークッション OT
16 PZ18530 1 ADJUSTER アジャスタ OT
17 K5250A 4 SCREW,C/RPAN 小ネジ十穴鍋 M06X015ニッケルメッキ FE
18 PZ18540 1 LEVER レバー FE
19 PZ18630 1 SPRING スプリング OT
20 AA29L01 1 CASTER キャスタ OT
21 PZ18640 1 SUPPORTCOLUMN 支柱 FE
22 PZ18651 1 BASE ベース OT
23 PZ18660 5 CASTER キャスタ OT
335
PTS-NXT2-01JE
Vol.1

A
A
1
2
3
4
5
6
7
8
9
10
14
15
16
17
18
19
20
21
22
23
24
25
26
27
28
29
30
31
32
33
34
35
36
37
38
39
40
41
43
44
45
46
47
48
49
50
51
52
42
53
54
55
56
58
61
62
63
64
66
67
68
69
70
71
72
72
73
74
75
76
77
78
79
80
83
84
85
86
86
87
87
88
89
89
90
91
92
93
94
95
65
12
71.1
80
81
81.3
81.1
81.2
16
11
24.1
97
98
57
59
60
71
71.1
80
UK03504
336
PTS-NXT2-01JE
Vol.1