PTS-NXT2-01JE - 第643页
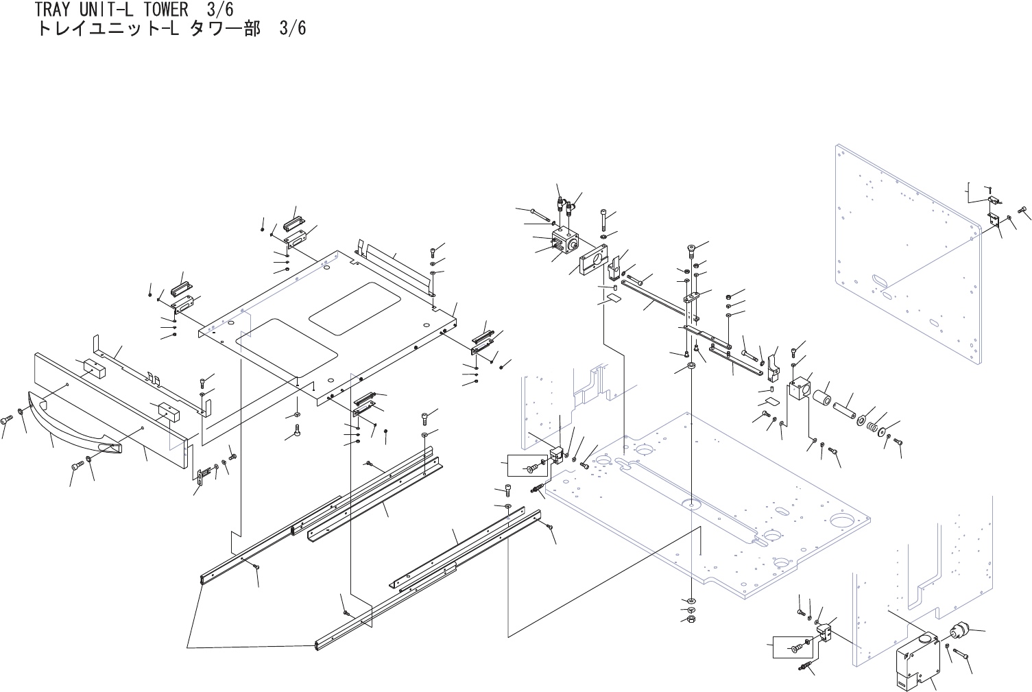
TRAYUNIT-LTOWER3/6 トレ イユニッ ト-L タワー 部3 /6 AA1ZR19 No. Drg.No.&CodeNo. Q TY Description Rating Materials Remarks 番号 図番 &コード 番号 個数 品名 規格 材質 備考 1 PM41010 1 BKT BKT FE 2 H5308A 2 BOLT,HEXSOCKET ボルト 六角 …

1
8
9
2
50
50
3
4
4
5
5
6
6
11
12
12
13
18
21
22
23
24
24
25
25
19
20
16
17
14
14
15
15
10
7
8
7
53
54
55
56
45
70
74
79
80
78
75
46
47
48
26
26
27
28
34
37
38
31
32
33
85
85
86
86
84
84
10.1
10.2
10.3
30
29
83
83
57
60
61
62
63
58
59
54
55
56
53
53
57
57
66
67
58
58
65
65
59
59
54
76
77
55
56
53
54
55
56
57
58
59
64
71
72
68
69
69
69
69
66
67
75
79
80
88
89
89
87
88
87
42.1
35
36
42
43
44
49
51
52
81
81
AA1ZR19
76
PTS-NXT2-01JE
Vol.3

TRAYUNIT-LTOWER3/6
トレイユニット-Lタワー部3/6
AA1ZR19
No. Drg.No.&CodeNo. QTY Description Rating
Materials
Remarks
番号 図番&コード番号 個数 品名 規格 材質 備考
1 PM41010 1 BKT BKT FE
2 H5308A 2 BOLT,HEXSOCKET ボルト六角穴 M05X045 FE
3 W1023A 2 WASHER,LOCK ワッシャスプリング 5M/M FE
4 PM61300 2 CAM カム FE
5 H5302A 2 BOLT,HEXSOCKET ボルト六角穴 M05X020 FE
6 W1012A 2 WASHER,CONICAL ワッシャ皿 M-5-L FE
7 PB69871 2 SPACER スペーサ FE
8 H21460 2 PIN,PARALLEL ピン平行 MSTH5-10 OT
9 PB69840 1 ARM アーム FE
10 PM00GN1 1 PIN ピン FE
10.1 N1090A 1 NUT,HEX ナット六角 M8P=1.253シュ FE
10.2 W1025A 1 WASHER,LOCK ワッシャスプリング 8M/M FE
10.3 W1052A 1 WASHER,FLAT ワッシャ平 8M/MX1.6X17(1W-8) FE
11 PM00GM0 1 COLLAR カラー FE
12 PM00GR1 2 PIN ピン FE
13 PB69830 1 ARM アーム FE
14 N1083A 2 NUT,HEX ナット六角 M5P=0.83シュ FE
15 W1023A 2 WASHER,LOCK ワッシャスプリング 5M/M FE
16 PB69850 1 ARM アーム FE
17 PB69860 1 ARM アーム FE
18 N1081T 2 NUT,HEX ナット六角 M43シュ FE
19 W1022A 2 WASHER,LOCK ワッシャスプリング 4M/M FE
20 W1043A 2 WASHER,FLAT ワッシャ平 4W-4 FE
21 PM71050 1 HOLDER ホルダ FE
22 H5307A 2 BOLT,HEXSOCKET ボルト六角穴 M05X040 FE
23 W1023A 2 WASHER,LOCK ワッシャスプリング 5M/M FE
24 H5288A 2 BOLT,HEXSOCKET ボルト六角穴 M04X010 FE
25 W1022A 2 WASHER,LOCK ワッシャスプリング 4M/M FE
26 W1043A 2 WASHER,FLAT ワッシャ平 4W-4 FE
27 PB22440 1 WASHER ワッシャ FE
28 H4291T 1 BEARING,SLIDE ベアリングスライド LM12UU OT
29 S23071 1 SHAFT シャフト PSFJW12-55-M4-N5 OT
30 S3261R 1 SPRING スプリング WT16-20 OT
31 W10889 1 WASHER ワッシャ WSSB20-4-2 FE
32 H5288A 1 BOLT,HEXSOCKET ボルト六角穴 M04X010 FE
33 W1022A 1 WASHER,LOCK ワッシャスプリング 4M/M FE
34 PB16031 1 BKT BKT FE
35 S31410 1 SW,PHOTOELECTRIC SW光電 UM-Z3SVP OT
77
PTS-NXT2-01JE
Vol.3

TRAYUNIT-LTOWER3/6
トレイユニット-Lタワー部3/6
AA1ZR19
No. Drg.No.&CodeNo. QTY Description Rating
Materials
Remarks
番号 図番&コード番号 個数 品名 規格 材質 備考
36 . 2 SCREW,C/RPAN 小ネジ十穴鍋 M02.6X012 OT ACC-35
37 H5287A 2 BOLT,HEXSOCKET ボルト六角穴 M04X008ゼンネジ FE
38 W1022A 2 WASHER,LOCK ワッシャスプリング 4M/M FE
42 S31935 1 SW,LIMIT SWリミット D4NL-1HFG-B OT
42.1 N2029Z 1 NIPPLE ニップル STR13.5 OT
43 H5295A 3 BOLT,HEXSOCKET ボルト六角穴 M04X035 FE
44 W1022A 3 WASHER,LOCK ワッシャスプリング 4M/M FE
45 PB92691 1 KEY キー FE
46 K5257A 2 SCREW,HEXSOCKETBUTTON 小ネジ六角穴ボタン M04X008 FE
47 W1022A 2 WASHER,LOCK ワッシャスプリング 4M/M FE
48 W1043A 2 WASHER,FLAT ワッシャ平 4W-4 FE
49 S21146 1 CYLINDER,AIR シリンダエアー CDQSB20-10D-M9BVL OT
50 K5337G 2 CONTROLLER,SPEED コントローラスピード AS1201F-M5-04(シロ) OT
51 H5307A 2 BOLT,HEXSOCKET ボルト六角穴 M05X040 FE
52 W1012A 2 WASHER,CONICAL ワッシャ皿 M-5-L FE
53 PB15984 4 BKT BKT FE
54 N1076A 8 NUT,HEX ナット六角 M3P=0.5 FE
55 W1021A 8 WASHER,LOCK ワッシャスプリング 3M/M FE
56 W1042A 8 WASHER,FLAT ワッシャ平 4W-3 FE
57 PB15972 4 BKT BKT FE
58 N1076A 8 NUT,HEX ナット六角 M3P=0.5 FE
59 W1021A 8 WASHER,LOCK ワッシャスプリング 3M/M FE
60 PB92981 1 PLATE,LOCATING プレート位置決め FE
61 H5275A 2 BOLT,HEXSOCKET ボルト六角穴 M03X008 FE
62 W1021A 2 WASHER,LOCK ワッシャスプリング 3M/M FE
63 W1042A 2 WASHER,FLAT ワッシャ平 4W-3 FE
64 PB45133 1 PLATE プレート FE
65 PB15952 2 BKT BKT FE
66 H5298A 4 BOLT,HEXSOCKET ボルト六角穴 M05X010 FE
67 W1023A 4 WASHER,LOCK ワッシャスプリング 5M/M FE
68 S3069W 1 SLIDER スライダ TM-234-3(NO.6042) OT SET
69 K5255H 16 SCREW,HEXSOCKETBUTTON 小ネジ六角穴ボタン M03X005 FE
70 PB68883 1 GUIDE ガイド FE
71 H5276A 2 BOLT,HEXSOCKET ボルト六角穴 M03X010 FE
72 W1021A 2 WASHER,LOCK ワッシャスプリング 3M/M FE
74 PB16081 1 COVER カバー FE
75 PM79560 2 BLOCK ブロック FE
76 H5297A 2 BOLT,HEXSOCKET ボルト六角穴 M05X008 FE
78
PTS-NXT2-01JE
Vol.3