PTS-NXT2-01JE - 第729页
TRAYPALLETSTAND トレ イパレ ットス タンド AA25N02 No. Drg.No.&CodeNo. Q TY Description Rating Materials Remarks 番号 図番 &コード 番号 個数 品名 規格 材質 備考 1 H3259R 22 FRAME フ レーム ND853L=385 OT 2 H3259W 4 FRAME フレー ム ND853L=1160…

1
2
4
19
3
5
6
5
6
5
6
7
7
7
8
9
9
10
10
13
13
11
11
10
12
12
17
18
18
7
7
19
19
15
14
16
7
AA25N02
162
PTS-NXT2-01JE
Vol.3

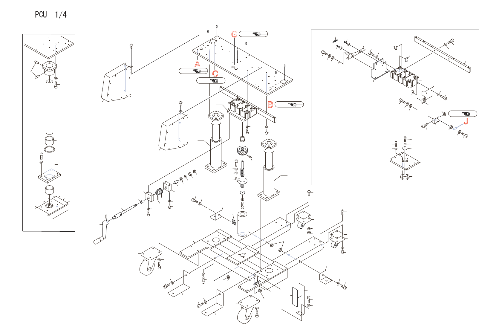
TRAYPALLETSTAND
トレイパレットスタンド
AA25N02
No. Drg.No.&CodeNo. QTY Description Rating
Materials
Remarks
番号 図番&コード番号 個数 品名 規格 材質 備考
1 H3259R 22 FRAME フレーム ND853L=385 OT
2 H3259W 4 FRAME フレーム ND853L=1160 OT
3 H3259S 2 FRAME フレーム ND853L=770 OT
4 H3259T 1 FRAME フレーム ND853L=830 OT
5 H3176C 4 PLATE プレート SFK-570A OT
6 H5299A 16 BOLT,HEXSOCKET ボルト六角穴 M05X012 FE
7 N10090 196 NUT ナット SFB-013 OT
8 K2027F 2 CASTER キャスタ HCHA12-100 OT
9 K2027G 2 CASTER キャスタ HCHAS12-100 OT
10 PB40891 3 PLATE プレート FE
11 PB40901 2 PLATE プレート FE
12 K5213Z 20 SCREW,C/RTRUSS 小ネジ十穴トラス M05X005ユニクロメッキ FE
13 AA29G00 4 PLATE プレート OT
14 PJ07630 4 PLATE プレート PL
15 K5361H 16 SCREW,HEXSOCKETCOUNTERSUNK 小ネジ六角穴皿 M05X010 FE
16 H2093W 176 PIN,PARALLEL ピン平行 ゚4X10Bシュ(H8) FE
17 H32021 72 BKT BKT HBLFSN5 OT
18 H5298A 144 BOLT,HEXSOCKET ボルト六角穴 M05X010 FE
19 K2174D 6 CAP キャッ
プ
20カクフレームキャップ OT
163
PTS-NXT2-01JE
Vol.3

U
U
A
B
V
G
Ref.4/
Ref.2/
Ref.2/
DETAIL U
DETAIL V
9
8
0
9
6
0
9
4
0
9
2
0
9
0
0
8
8
0
C
Ref.2/
J
Ref.2/
1
30
41
42
43
11
10
50
49
50
49.1
9
11
10
9
29
28
98,
99
35
36
37
34
39
40
27
16
19
22
23
24
47
56
48
48
51
55
52
54
53
62
61
38
53
17
18
19
20
21
26
25
65
64
47
44
31
32
33
45
46
59
60
63
66
67
68
13
14
12
15
7
8
5
6
5.1
69
72
72.1
72.2
72.3
72.4
70
71
73
74
75
76
77
78
7
8
5
6
5.1
107
108
109
110
111
112
113
58
57
93
94
95
97
96
100
101
102
101
102
103
104
105
106
103
104
105
100
79
81
80
102.1
102.1
114
UX04304(M6S,M6II)
UX04204(M3S,M3II)
164
PTS-NXT2-01JE
Vol.3