00196678-0102_RI_CAN-Knoten_X-Serie70x_De EN - 第25页
Einbau Kabelverlegung Optionskabel CAN-Knoten Nachrüstanleitung CAN-Knoten X-Serie SW 70x 25

Einbau
Kabelverlegung Optionskabel CAN-Knoten
24 Nachrüstanleitung CAN-Knoten X-Serie SW 70x

Einbau
Kabelverlegung Optionskabel CAN-Knoten
Nachrüstanleitung CAN-Knoten X-Serie SW 70x
25

Einbau
Kabelverlegung Optionskabel CAN-Knoten
26 Nachrüstanleitung CAN-Knoten X-Serie SW 70x
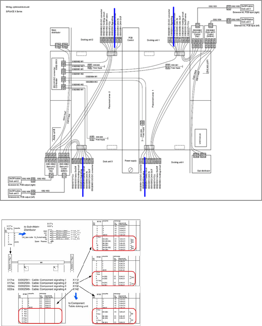
3-12: Stromlaufplan: BE-Einzug (X-Serie)
3-13: Kabel BE-Signalisierung X1*2
X112: Stellplatz 1 Kabel [03002541-xx]
X122: Stellplatz 2 Kabel [03002530-xx]
X132: Stellplatz 3 Kabel [03002534-xx]
X142: Stellplatz 4 Kabel [03002546-xx]