SI-F209_Manual(J)JPG_rev1 - 第190页
搬送部後部周辺 LAF-201 19- 01 搬送部後部周辺 SHEET 1/1 搬送部後部周辺 SV1099 FRONT CA R T CHA NGE DESCEND (OPTION) SV1098 FRONT CA R T CHA NGE ASCEND (OPTION) SV1218 RIGHT TRA Y PULL-I N PIN OUT SV1220 RIGHT TRA Y SHUTTE R OPEN SV1222 RIGHT …

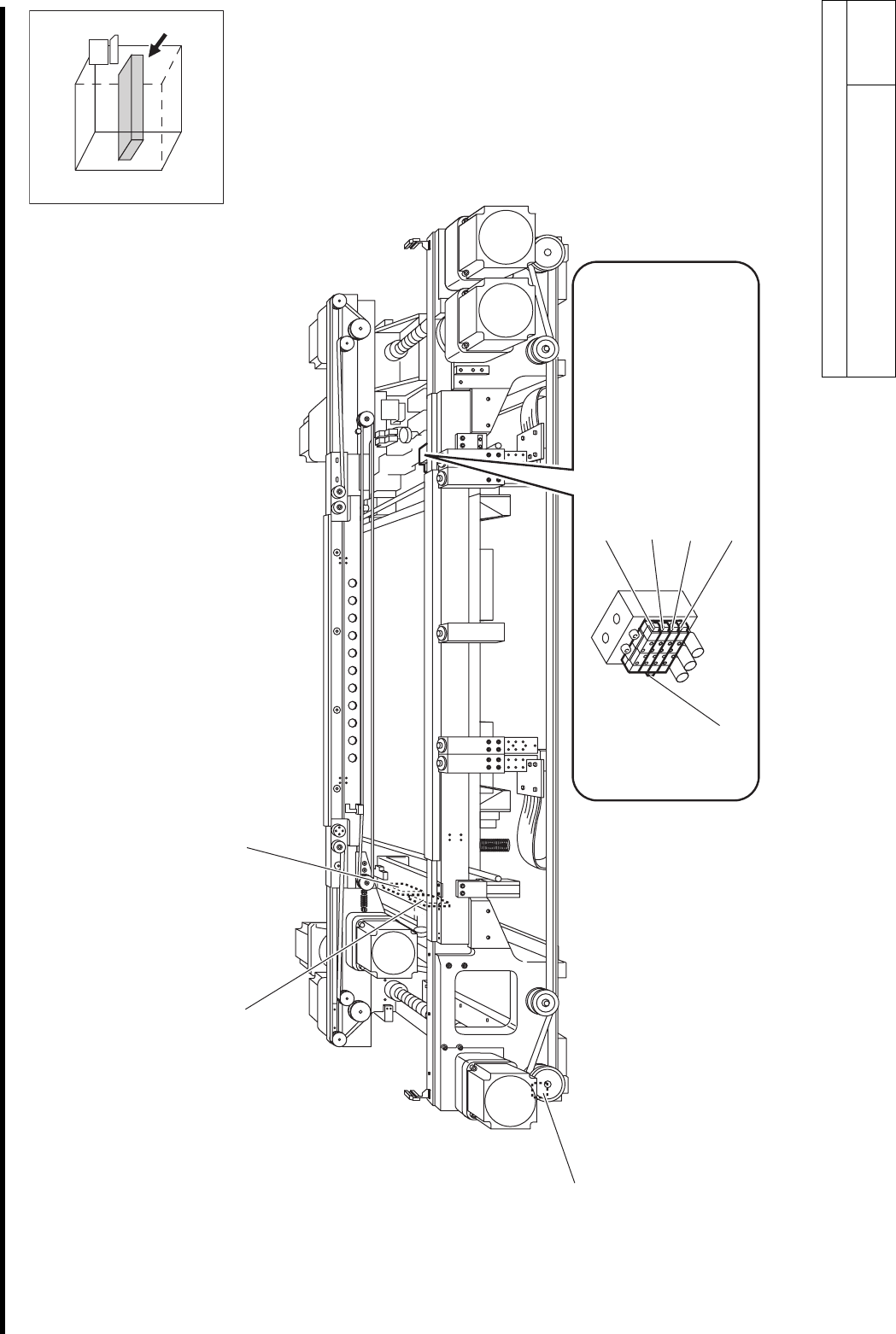
搬送部バルブ
LAF-20118-01
搬送部バルブ
SHEET
1/1
搬送部バルブ
DR3 DW3
A
D-LSB
SV1090
PWB BACKUP PLATE ASCEND
SV1091
PWB STOPPER ASCEND
SV1094
C/V EJECTOR UP
SV1093
LOCATE PIN UP
SV1095
C/V EJECTOR DOWN

搬送部後部周辺
LAF-20119-01
搬送部後部周辺
SHEET
1/1
搬送部後部周辺
SV1099
FRONT CART CHANGE
DESCEND (OPTION)
SV1098
FRONT CART CHANGE
ASCEND (OPTION)
SV1218
RIGHT TRAY PULL-IN PIN OUT
SV1220
RIGHT TRAY SHUTTER OPEN
SV1222
RIGHT TRAY DOOR LOCK
SV1219
LEFT TRAY PULL-IN PIN OUT
SV1221
LEFT TRAY SHUTTER OPEN
SV1223
LEFT TRAY DOOR LOCK

前側フィード部
LAF-20120-01
前側フィード部
SHEET
1/1
前側フィード部
FF-ENCODER
PH-FFB
FEEDER FF BACKWARD
DETECT
FF-MOTOR
FF-ORG
後側
前側