SI-F209_Manual(J)JPG_rev1 - 第228页
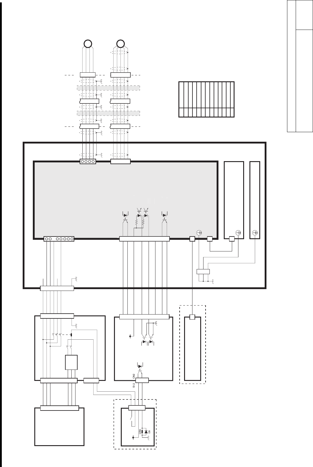
R 軸サーボドライバー周辺回路図 CDF-20509-01 R 軸サー ボドライバー周辺回路 図 SHEET 1/1 CP5 MC1 PS1 L N F G + - 3 4 6 7 8 9 23 2 4 1 2 3 4 5 6 7 8 A L M + A L M - + 2 4 V IN P - O T N- O T / D E C / SO2 + / SO2 - L 1C L 2C L 1 L 2 B1 B2 - SV - RP 50…

NS 軸サーボドライバー周辺回路図
CDF-20508-01
NS 軸サーボドライバー周辺回路図
SHEET
1/1
CP5
MC1
PS1
L
N
FG
+
-
3
4
6
7
8
9
2
3
24
1
2
3
4
5
6
7
8
ALM +
ALM -
+
24V IN
P-
OT
N-
OT
/
DE
C
/SO
2
+
/SO
2
-
L1C
L2C
L1
L2
B1
B2
-
SV-NSP
501
502
503
505
DRV-NS
SGDS-01A12A
SERVO UNIT
(Refer:CDF-20203)
DRIVER UNIT
(Refer:CDF-20204)
DV-ACOUT1
1
2
3
4
5
6
7
8
9
POWER UNIT
(Refer:CDF-20301)
PW-2
1
2
3
4
5
6
DV-ACIN
1
2
3
4
5
6
DV-EMG1
1
2
3
4
1
2
3
4
5
6
7
8
9
SV-ACIN1
500
501
502
503
504
505
SERVO I/F UNIT
IF2 LS BOARD
(
Refer:CDF-20502
)
SY-IF2 BOARD (Refer:CDF-20502)
1
2
3
S
ERV
O
ALARM
C
N1
4
LB-14
S
V-N
S
1
C
N
1
SV-NS6A CN6ACN8 SI-8
SV-NS6B CN6B
DRV-R (Refer:CDF-20509)
SV-R6A CN6A
DRV-M (Refer:CDF-20510)
A 1-791-233
REF CABLE PARTS NO.
B 1-829-460
C 1-829-455
D 1-829-661
E
F
1- -
G
1- -
H
1-829-600
J
1-829-601
1-829-653
K
L
1-824-762-11
M
1-824-761-11
1-829-656
A B
D
E
F
JEPMC-W6002-A5
(YASKAWA)
JEPMC-W6002-04 (YASKAWA)
I/O UNIT
EM
G
I
/
L B
O
AR
D
(
Refer:CDF-20401
)
C
N
9
+2
4V
C
R
38
3
4
1
2
C
Y CABLE
CONDUIT
1
2
5
6
FG
CN2 SV-NS2
PG5V
PG0V
PS
*PS
U
V
W
SV-NSM
K
G
H
HJ
J
NS ENCODER
1
2
3
4
5
NS MOTOR
L
M
E
M
M2 M4 NSM
E2 E4 NSE
X FLAT
RBT CABLE
1st CONNECTION
PANEL
3rd CONNECTION
PANEL
5
6
7
8
9
1
2
3
4
5
6
7
8
9
5
6
7
8
9
5
6
7
8
9
SV-E3
1
2
3

R 軸サーボドライバー周辺回路図
CDF-20509-01
R 軸サーボドライバー周辺回路図
SHEET
1/1
CP5
MC1
PS1
L
N
FG
+
-
3
4
6
7
8
9
23
24
1
2
3
4
5
6
7
8
ALM +
ALM -
+24V IN
P-OT
N-OT
/DEC
/SO2+
/SO2-
L1C
L2C
L1
L2
B1
B2
-
SV-RP
500
502
503
505
DRV-R
SGDS-A5A12A
DRV-M (Refer:CDF-20510)
1
2
5
6
FG
CN2 SV-R2
PG5V
PG0V
PS
*PS
U
V
W
SV-RM
SE
RVO UNIT
(Refer:CDF-20203)
DRIVER UNIT
(Refer:CDF-20204)
DV-ACOUT1
1
2
3
4
5
6
7
8
9
POWER UNIT
(Refer:CDF-20301)
PW-2
1
2
3
4
5
6
DV-ACIN
1
2
3
4
5
6
DV-EMG1
1
2
3
4
1
2
3
4
5
6
7
8
9
SV-ACIN1
500
501
502
503
504
505
IF2 LS BOARD
(Refer:CDF-20502)
SI-2 CN2
1
2
3
SERVO
ALARM
CN
15 LB-15
SV-R1 CN1
SV-R6A CN6A
SV-R6B CN6B
SV-M6A CN6A
DRV-NS (Refer:CDF-20508)
SV-NS6B CN6B
K
G
H
H
L
J
R ENCODER
1
2
3
4
5
R MOTOR
M
N
E
M
A1-791-233
REF CABLE PARTS NO.
B1-829-460
C1-829-455
D1-829-662
E
F
1- -
G
1- -
H
1-829-600
J
1-829-601
K
1-829-657
L
1-829-602
M
1-824-762-11
N
1-824-761-11
1-829-654
A B
D
E
F
M3
I/O UNIT
EMG I/L BOARD
(Refer:CDF-20401)
CN9
+24V
D9
CR9
CR38
3
4
1
2
C
M5 RM
E3 E5RE
X FLAT
RBT CABLE
Y CABLE
CONDUIT
1st CONNECTION
PANEL
3rd CONNECTION
PANEL
1
2
3
4
1
2
3
4
1
2
3
4
1
2
3
4
1
2
3
4
JEPMC-W6002-A5 (YASKAWA)
JEPMC-W6002-A5
(YASKAWA)
SV-E3
2
3
1

M 軸サーボドライバー周辺回路図
CDF-20510-01
M 軸サーボドライバー周辺回路図
SHEET
1/1
CP5
MC1
PS1
L
N
FG
+
-
3
4
6
7
8
9
2
3
24
1
2
3
4
5
6
7
8
ALM +
ALM -
+
24V IN
P-
OT
N-
OT
/
DE
C
/SO
2
+
/SO
2
-
L1C
L2C
L1
L2
B1
B2
-
SV-MP
500
502
503
505
DRV-M
SGDS-01A12A
DRV-R (Refer:CDF-20509)
1
2
5
6
FG
CN2 SV-M2
PG5V
PG0V
PS
*PS
U
V
W
SV-MM
SERVO UNIT
(Refer:CDF-20203)
DRIVER UNIT
(Refer:CDF-20204)
DV-ACOUT1
1
2
3
4
5
6
7
8
9
POWER UNIT
(Refer:CDF-20301)
PW-2
1
2
3
4
5
6
DV-ACIN
1
2
3
4
5
6
DV-EMG1
1
2
3
4
1
2
3
4
5
6
7
8
9
SV-ACIN1
500
501
502
503
504
505
IF2 LS BOARD
(Refer:CDF-20502)
1
2
3
S
ERV
O
ALARM
C
N1
2
LB-12
S
V-M1
C
N
1
SV-M6A CN6A
SV-M6B CN6B
SV-R6B CN6B
DRV-NS (Refer:CDF-20508)
K
G
H
H
L
J
M ENCODER
1
2
3
4
5
M MOTOR
M
N
E
M
A 1-791-233
REF CABLE PARTS NO.
B 1-829-460
C 1-829-455
D 1-829-663
E
F
1- -
G
1- -
H
1-829-600
J
1-829-601
K
1-829-657
L
1-829-602
1-829-654
M
1-824-762-11
N
1-824-761-11
A B
D
E
F
M3
I/O UNIT
EMG I/L BOARD
(Refer:CDF-20401)
C
N
9
D
9
CR3
8
3
1
2
C
M5 MM
E3 E5 ME
X FLAT
RBT CABLE
Y CABLE
CONDUIT
1st CONNECTION
PANEL
3rd CONNECTION
PANEL
5
6
7
8
9
1
2
3
4
5
6
7
8
9
5
6
7
8
9
JEPMC-W6002-A5
(YASKAWA)
5
6
7
8
9
SV-E3
3
2
1