SI-F209_Manual(J)JPG_rev1 - 第231页
コンベアイジェクタモータードライバー周辺回路図 CDF-20512-01 コンベアイジェク タモータードライ バー 周辺回路図 SHEET 1/1 CABLE CONDUIT DRIVER UNIT (Refer:CDF-20204) POWER UNIT (Refer:CDF-20301) PS1 DC SUPPLY 24V/14A EMG I/L BOARD (Refer:CDF-20401) DRV-CE CONVEYOR EJE…

コンベア幅調整モータードライバー周辺回路図
CDF-20511-01
コンベア幅調整モータードライバー
周辺回路図
SHEET
1/1
DRIVER UNIT (Refer:CDF-20204)
POWER UNIT
(Refer:CDF-20301)
PS1
DC SUPPLY
24V/14A
EMG I/L BOARD
(Refer:CDF-20401)
DRV-AD
CONVEYOR ADJUST
MOTOR DRIVER
CN2 AD-2
1
2
3
4
5
CN3 AD-3
1
2
3
4
11
12
+5V
CW
+5V
CCW
TIM
GND
13
14
O.H.
GND
+24
GND
1
2
AD-1 CN1
+24B4
G24B4
+24B3
G24B3
CR1CP3
ALARM I/F BOARD
ALM-1 CN1
1
2
3
208
209
LED1
LED2
ALM-2 CN2
1
2
3
FROM DV-9
CN3
1
2
3
CN4
1
2
3
CN6 ALM-6
1
2
3
4
5
D1
CR1
LED5
ALM-7 CN7
1
2
D2
CN5 ALM-5
DV-18
1
2
3
4
5
1
2
3
4
5
AD
PM
CONVEYOR
ADJUST
MOTOR
SERVO I/F UNIT
SY-EX BOARD
(Refer:CDF-20501)
EX-17 CN17
1
2
3
4
9
10
5
6
7
8
11
12
R5V
CW1
R5V
CCW1
TM1
R0V
DV-16
1
2
3
4
5
6
DV-19
1
2
3
4
5
TO
SERIAL DIO
(N.C.)
(N.C.)
I/O UNIT
DV-EMG2 EL-10 CN10
1
2
3
4
1
2
3
4
213
CR10
CR38
+24V
G24V
CR38
EL-9 CN9
1
2
3
4
1
2
3
4
1
2
3
4
DV-EMG1
212
MC1
PW-2
1
2
3
4
5
6
1
2
3
4
5
6
DV-ACIN
203
204
E
L
N
FG
+
-
CP5
+24B7
G24B7
+24B
G24B
213
CR1
A
B
C
D
E
1-791-233
1-829-454
1-829-452
1-791-301
1-829-455
REF
CABLE PARTS NO.
A
C
E
D
B

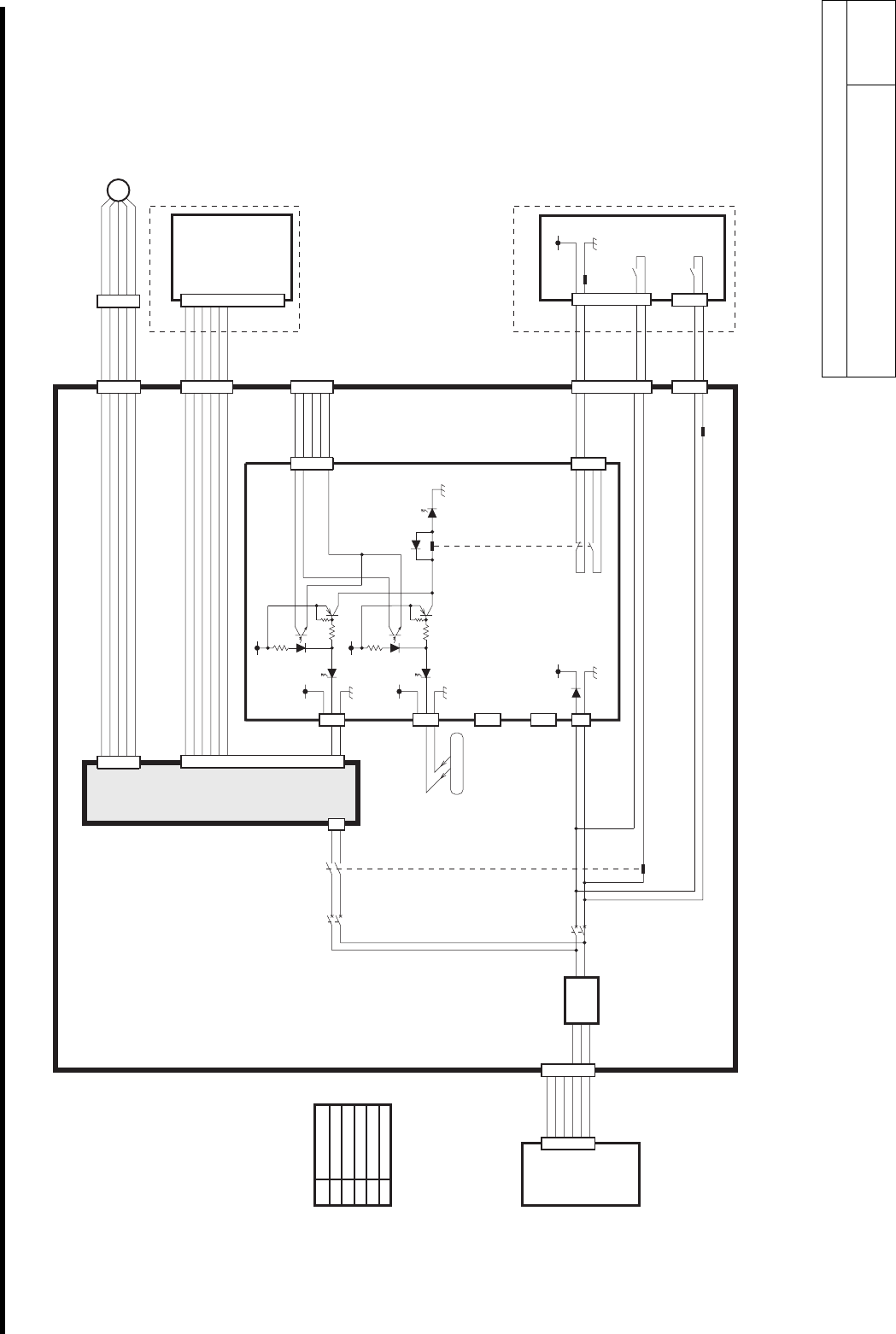
コンベアイジェクタモータードライバー周辺回路図
CDF-20512-01
コンベアイジェクタモータードライバー
周辺回路図
SHEET
1/1
CABLE
CONDUIT
DRIVER UNIT (Refer:CDF-20204)
POWER UNIT
(Refer:CDF-20301)
PS1
DC SUPPLY
24V/14A
EMG I/L BOARD
(Refer:CDF-20401)
DRV-CE
CONVEYOR EJECTOR
MOTOR DRIVER
CN2 CE-2
1
2
6
7
5
3
4
8
9
10
CN3 CE-3
9
10
11
12
23
24
+5V
CW
+5V
CCW
TIM
GND
25
26
ALM
GND
+24
GND
1
2
CE-1 CN1
+24B6
G24B6
+24B5
G24B5
CR1
DV-17
1
2
6
7
5
3
4
8
9
10
11
12
1
2
6
7
5
3
4
8
9
10
11
12
EJM1
EC
M
CONVEYOR
EJECTOR
ENCODER
CONVEYOR
EJECTOR
MOTOR
SERVO I/F UNIT
SY-EX BOARD
(Refer:CDF-20501)
EX-19 CN19
3
4
1
2
5
6
7
8
9
10
11
12
R5V
CCW2
R5V
CW2
TIM2
R0V
DV-15
1
2
3
4
5
6
I/O UNIT
CR39
EL-13 CN1
3
1
2
3
4
EL-
3
7
C
N
37
1
2
3
4
1
2
3
4
DV-EMG
1
PW-2
1
2
3
4
5
6
1
2
3
4
5
6
DV-ACIN
203
204
E
L
N
FG
+
-
CP4
+24B
G24B
A
B
C
D
E
1-791-233
1-829-451
1-829-497
1-829-547
1-829-455
REF CABLE PARTS NO.
A
D
E
BC
1
2
6
7
5
3
4
8
9
10
EJM

メインコンソール周辺回路図
CDF-20601-01
メインコンソール周辺回路図
SHEET
1/1
A
B
C
D
E
F
G
H
J
K
L
M
N
P
Q
1-829-503
1-829-507
1-829-506
1-829-505
1-829-504
1-827-090
1-827-089
1-829-435
1-829-444
1-829-594
1-829-509
1-829-508
1-791-411
1-791-412
1-791-424
REF
CABLE PARTS NO.
CN3 INV-3
CN2 INV-2
1
3
7
VFLH
VFLH
VFLL
1
3
7
1
2
4
1
2
4
VFLH
VFLH
VFLL
+12V
+12V
+12V
GND
GND
GND
1
6
2
7
3
8
13
5
14
10
2
3
5
7
8
2
3
5
7
8
FG
1
2
3
4
5
6
8
15
14
11
12
13
DC5V
GND
TXD
RXD
GND
CTS
RTS
J4
CN3
40
34
HARD DISK DRIVE
PC-FDD
* TABLE2 34
DRIVER UNIT
(Refer:CDF-20204)
DV-4
+5B
G5B
1
2
DV-6
DV-4
DV-6
1
2
3
4
TPL5V
1
3
2
POWER UNIT
(Refer:CDF-20301)
PW-12V
1
2
3
TRAY I/F BOARD
CN17 TI17
1
3
LCD12V
1
2
3
MOUSE KEY SWITCH
KEY BOARD
6
6
6
6
LCD I/F BOARD
LI-101 CN101
13
12
11
10
9
8
5
1
6
4
CN201 LI-201
CN801 LI-801
* TABLE1
18
BACK LIGHT INVERTER
INV-1 CN1
1
2
3
4
5
6
7
8
9
10
11
12
VIN
VIN
VIN
GND
GND
GND
ON/OFF1
ON/OFF2
VR
VR
ALM1
ALM2
12
11
10
9
8
7
6
5
4
3
2
1
FLOPPY DISK DRIVE
FDD
E
FD-5V
1
2
3
4
+5V
GND
GND
NC
TOUCH PANEL
CONTROL BOARD
EX01
EX02
TOUCH PANEL
assembly
TP-EX02
DR2 (Refer:CDF-20702)
SDIOC-IN16-CHAT
J7
1
2
3
1
2
3
1
2
3
1
2
3
1
2
3
1
2
3
J1
J3
J2
J4
J8
DR2-7
G24
DR2-8
G24
DR2-4
G24
DR2-3
G24
DR2-1
G24
DR2-2
G24
SW-FS
9
10
3
4
1
2
5
6
7
8
11
12
ORG
(ORIGIN SW)
ON LINE
(ON LINE SW)
FRONT
(FRONT ACTIVE SW)
RESET
(FRONT RESET SW)
START
(FRONT START SW)
STOP
(FRONT STOP SW)
DW2 (Refer:CDF-20722)
SDIOC-OUT16-CHAT
J7
1
2
3
1
2
3
1
2
3
1
2
3
1
2
3
1
2
3
J1
J3
J2
J4
J8
+24V
DW2-7
+24V
DW2-8
+24V
DW2-4
+24V
DW2-3
+24V
DW2-1
+24V
DW2-2
9
10
3
4
1
2
5
6
7
8
11
12
SW-FL
* TABLE 1
SIGNAL
VDD
VDD
GND
GND
RXIN0-
RXIN0+
GND
RXIN1-
RXIN1+
GND
RXIN2-
RXIN2+
GND
RXCK-
RXCK+
GND
RXIN3-
RXIN3+
-
-
PIN no.
1
2
4
5
19
18
17
16
15
14
13
12
24
11
10
7
9
8
-
-
PIN no.
1
2
3
4
5
6
7
8
9
10
11
12
13
14
15
16
17
18
19
20
SIGNAL
VDD
VDD
GND
GND
RXIN0-
RXIN0+
GND
RXIN1-
RXIN1+
GND
RXIN2-
RXIN2+
GND
RXCK-
RXCK+
GND
RXIN3-
RXIN3+
GND
N.C.
LI-201 LCD-1
* TABLE 2
PIN no.
1
2
3
4
5
6
7
8
9
16
11
14
13
12
15
10
17
PIN no.
1
2
3
4
5
6
7
8
9
10
11
12
13
14
15
16
17
PIN no.
18
19
20
21
22
23
24
25
26
27
28
29
30
31
32
33
34
PIN no.
18
19
20
21
22
23
24
25
26
27
28
29
30
31
32
33
34
PC-FDD FDD PC-FDD
FDD
LCD-1
TFT LED
PANEL
assembly
TFT LED
PANEL
assembly
CN1
15' TFT-LCD PANEL
LI-901 CN901
4
5
6
1
2
3
MOUSE
assembly
W-CPU
BOARD
assembly
KEY BOARD
assembly
TOUCH PANEL
A
B
F
G
H
J
K
LM
C
D
E
NP
NP
NP
NP
NP
NP
QP
QP
QP
QP
QP
Q
P
TRAY UNIT (Refer:CDF-20901)
PC UNIT
W-CPU BOARD
PC-XGACN7
RED
GND
GREEN
GND
BLUE
GND
H SYNC
GND
V SYNC
GND
PC-COM1 TP-COMCN9
RXD
TXD
GND
RTS
CTS
CN11 PC-PS2