KE-2070_2080_InstructionManual_C_Rev01.pdf - 第49页
第 1 部 基本编 第 1 章 设备概要 1-29 1-2-5 基板规格 1. 基板条件 ·KE-2070/2080 机型 M 基板规格 L 基板规格 E-基板规格 最小 (X)50mm×(Y)30mm 注1 基板尺寸 最大 (X)330mm× (Y)250mm (X)410mm× (Y)360mm (X)510mm× (Y)460mm 最小 0.4mm 基板厚度 最大 4.0mm 最大允许重量 2000g 翘曲允许值 每 50mm 允…

第 1 部 基本编 第 1 章 设备概要
1-28
元件名 元件种类
引脚间距/
(尺寸)
元件尺寸
标准 VCS
(注 3)
选购项高分辨率
VCS (注 3)
0.3mm 以上
(引脚宽度:
0.11mm 以上)
□20mm 以下 ○
引脚元件:间距
0.3mm 以上。
(引脚宽度:
0.11mm 以上)
□15.5mm 以下 ○
□34mm 以上□50mm 以下 ○
□24mm 以上□34mm 以下 ○ △
□20mm 以上□24mm 以下 ○ ○
球元件:间距
1.0mm 以上
(球径:0.4mm
以上)
□20mm 以下 ○ ○
□24mm 以上□34mm 以下 △
□20mm 以上□24mm 以下 ○
球元件:间距
0.25mm 以上
(球径:0.1mm
以上)
□20mm 以下 ○
□20mm 以上□24mm 以下 ○ 球元件:间距
0.25mm 以上
(球径:0.1mm
以上)
□20mm 以下 ○
球元件:间距
0.25mm 以上
(球径:0.1mm
以上)
□15.5mm 以下 ○
球元件:间距
0.25mm 以上。
(球径:0.1mm
以上)
□15.5mm 以下 ○
注 1 对于规定各引脚间距的元件(QFP 等),即使间距在上表记述范围之外仍可识别。可识别的
范围从最小值至最大值之间。但最小值为 0.4mm 时,则从 0.38mm 开始。
注 2 分段识别时的元件尺寸请参见“1-1-4-4 对象元件及元件包装方式”的“(1) 适用元件的
尺寸”。可识别纵横不一致的 BGA、FBGA 芯片。
注 3 LNC60 贴片头的图像识别(MNVC 选项)受 VCS 摄像机与 MNLA 贴片头构造的两方面的制约。
请详见 MNVC 的相关说明。
注4 因吸嘴不同元件尺寸页不同。1,2,5,6 吸嘴对□20mm(适用注 6)、3,4 吸嘴对□33.5mm 以
下可适用。
注5 标准 VCS 的 MNVC 对□20mm(适用注 6)、高分辨率 VCS 的 MNVC 对最大□20mm(适用注 8)
以下可适用。
注6 LNC60 的 1,2,5,6 吸嘴,标准 VCS 的 MNVC 即使对超过□20mm 的,26.5×11 也可适用。(严
格而言,长边 25.6mm 以下,且短边 20mm 以下,且对角 30.7mm 以下的元件可适用)
注7 HSOP、QFN 不可分段识别。
注8 超过□20mm 时,24mm×11mm 也可适用。

第 1 部 基本编 第 1 章 设备概要
1-29
1-2-5 基板规格
1. 基板条件
·KE-2070/2080
机型 M 基板规格 L 基板规格 E-基板规格
最小 (X)50mm×(Y)30mm
注1
基板尺寸
最大
(X)330mm×
(Y)250mm
(X)410mm×
(Y)360mm
(X)510mm×
(Y)460mm
最小 0.4mm
基板厚度
最大 4.0mm
最大允许重量 2000g
翘曲允许值
每 50mm 允许在 0.2mm 以下。上翘,下翘的总和在 1mm 以下
(根据 JIS B 8461)
基板材质 纸酚、环氧玻璃
(X):基板传送方向 (Y):与基板传送垂直的方向
(注1):有基板自动调整选项功能时,最小基板尺寸为(X)50mm×(Y)50mm 。
2. 基板限制条件
· KE-2070、2080
(1) 不可贴片的范围
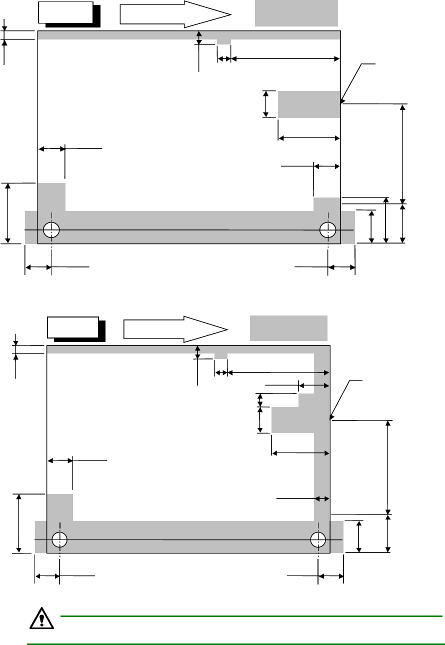
图 1-2-5-1 基板上表面不可贴片的范围(基板上面图)
注意
出厂时的尺寸
基板传送方向
不可贴片范围
[M] 30~250 (基板宽度自动调整时 50~250mm)
[L] 30~360 (基板宽度自动调整时 50~360mm)
[E] 30~460 (基板宽度自动调整时 50~460mm)
标准φ4 mm、选项φ2.5~φ4 mm
+0.1
0
+0.1
0
5±0.1mm
特殊定货 5~7mm(出厂对应)
标准 5±0.1mm(注)
传送轨固定侧
[M ] 50~330mm
[L ] 50~410mm
[E] 50~510mm
基板上表面图
基板上表面图

第 1 部 基本编 第 1 章 设备概要
1-30
(2) 支撑销不可设置的范围(基板下底面图)
基板下面
基板下面
支撑销
不可设置范围
基板传送方向
34mm
17.5mm
91mm
4mm
164mm(M 基板规格)
244mm(L 基板规格)
22mm
20mm
63.5mm
7mm
25mm
17.5mm
21mm
39.5mm
22mm
挡块设置位置
0 ~ 90mm(M 基板规格,前面基准)
0 ~ 50mm(M 基板规格,后面基准)
0 ~185mm(L 基板规格,前面基准)
0 ~145mm(L 基板规格,后面基准)
传送轨道固定侧
图 1-2-5-2 基板下面不可贴片图 (M,L 基板规格、基板下面图)
基板下面
基板下面
支撑销
不可设置范围
基板传送方向
34mm
17.5mm
91mm
4mm
265mm(右左流向为 223mm)
22mm
20mm
63.5mm
7mm
15.5mm
17.5mm
21mm
22mm
挡块设置位置
0 ~ 210mm
传送轨道固定侧
11mm
14mm
图 1-2-5-3 基板下面不可贴片范围 (E 基板规格、基板下面图)
基板传送方向为反方向(向左流)时,支撑销不可设置范围与图成左右对称。
注意