IP-III-17 - 第117页
34.2.アウトコンベア(カバー(オプション)(HELPS)(QPK) 34.2.Out conveyorCover(Option)(HELPS)(QPK) 番号 図番 & コード番号 個数 品名 規格 備考 No. Drg.No. & Code No. QTY Description Rating Remarks 1 PPK2010 1 BKT, COVER BKT カバー 2 PPK2022 1 HINGE…

IP-
III
PARTS LIST ver17
34.2.アウトコンベアカバー(オプション)(HELPS)(QPK)
34.2.Out conveyorCover(Option)(HELPS)(QPK)
34 - 3
34.2.アウトコンベアカバー(オプション)(HELPS)(QPK)
34.2.Out conveyorCover(Option)(HELPS)(QPK)
Ref.31-1
Ref.31-1
Ref.31-1
Ref.33-7
Antis
tatic
x4.1
208
176
165
175
161
175
161
175
161
183
162
176
167
175
161
13
13
B
A
139
26
12
15
15
15
3
24
1
19
17
29
23
20
2
34
16
11
5
25
35,36,37
警 告
使用する時は十分注意して下さい。
機械の安全装置が解除されます。
ここにバイパスキーを投入すると
21
21
10
6
8
4
17
13
33
18
30
10
7
17
9
31
22
18
22
18
A
A
28
30
18
32
27
26
14

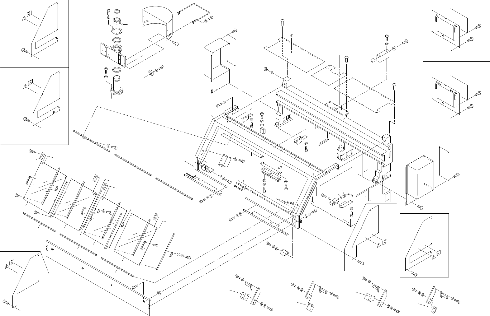
34.2.アウトコンベア(カバー(オプション)(HELPS)(QPK)
34.2.Out conveyorCover(Option)(HELPS)(QPK)
番号 図番 & コード番号 個数 品名 規格 備考
No. Drg.No. & Code No. QTY Description Rating Remarks
1 PPK2010 1 BKT, COVER BKT カバー
2 PPK2022 1 HINGE 蝶番
3 QPK3120 1 BAR バー
4 CLC9600 1 NUT ナット
5 PPK2061 1 BKT, COVER BKT カバー
6 QPK3150 1 HOLDER ウケ
7 QPK3160 1 BKT, SW BKT, SW
8 QPK3170 1 BKT BKT
9 QPK3180 1 COVER カバー
10 IQC6072 4 NUT ナット
11 CLC4251 1 STOPPER ストッパ
12 T5011S 1
HANDLE
取手
TTHA-00425
13 QPK3140 1 COVER カバー
14 K4020A 1 CABLE, GROUNDING ケーブルアース DE9-PL113044
15 K5210A
SCREW, TRUSS
小ネジ トラス M4X10L
16 K5208A
SCREW, TRUSS
小ネジ トラス M4X6L
17 W1023A
WASHER, LOCK
ワッシャ スプリング 5M/M
18 W1022A
WASHER, LOCK
ワッシャ スプリング 4M/M
19 W1044A
WASHER, FLAT
ワッシャ 平
4W-5
20 H5304A
BOLT, HEX SOCKET
ボルト 六角穴
M5X25L
21 H5299A BOLT, HEX SOCKET
ボルト 六角穴
M5X12L
22 H5288A
BOLT, HEX SOCKET
ボルト 六角穴
M4X10L
23 H5320A
BOLT, HEX SOCKET
ボルト 六角穴
M6X10L
24 AQPK3100 1 COVER, CONVEYOR カバー コンベア ・
25 CLC4261 1 NUT ナット
26 A2037A 1 SEAL シール DE9-PL113043
27 S31970 1 SW, RIMIT SW リミット XCS-A501
28 S31973 1 SW, RIMIT SW リミット XCS-Z03
29 W1024A WASHER, LOCK ワッシャ スプリング 6M/M
30 W1043A
WASHER, FLAT
ワッシャ 平
4W-5
31 H5290A BOLT, HEX SOCKET
ボルト 六角穴
M4X15L
32 H5294A
BOLT, HEX SOCKET
ボルト 六角穴
M4X30L
33 H5296A
BOLT, HEX SOCKET
ボルト 六角穴
M4X40L
34 H5209A
SCREW, TRUSS
小ネジ トラス M4X8L
35 IPK5580 1 SEAL シール Japanese
36 IPK5590 1 SEAL シール English
37 IPK5600 1 SEAL シール French
IP-Ⅲ PARTS LIST ver17
34 - 4
34.2.アウトコンベア(カバー(オプション)(HELPS)(QPK)
34.2.Out conveyorCover(Option)(HELPS)(QPK)

IP-
III
PARTS LIST ver17
35.カバー 1(QPK)
35.Cover 1(QPK)
35 - 1
35.カバー 1(QPK)
35.Cover 1(QPK)
Ref.31-1
Ref.31-1
Ref.31-1
Ref.33-7
E
Option
94
75
57
4
56
2
58
37
89
83
58
1
15
75
111
68
108
107
76
98
69
20
11
9
59
46,47
5
8
68
116
36
75
106
116
72
68
53
69
68
14
126
99
77
66
30
76
97
104
105
113
77
101
51
63,64
101
81
77
112
94
75
79
43
88
76
98
114
88
76
98
115
65
123
75
92
32
97
76
38
80
76
98
31
76
97
E
F
F
52
14
69
68
F
A
A
B
B
C
C
D
G
13
69
12
68
68
68
17
40
79
75
98
91
75
79
28
93
75
79
102
77
48
29
79
75
91
68
G
68
24
24
24
125
6
6
6
85
100
7
70
118
74
21
117
74
23
22
119
122
118
120
26
7
7
22
21
118
27
78
103
118
74
21
117
82
78
103
23
117
121
26
25
39
98
76
67
34
33
87
76
97
87
76
97
33
67
76
98
35
98
76
67
33
35
87
76
97
33
67
76
98
34
87
76
97
21
124
MTU-4R
(Option)
MTU-4L
24
124
124
D
G
Option
(Option)
#12,13カメラ用
When #12,13 camera are used
Standard
Standard
G
10
10
68
124
24
124
x30
208
176
165
175
161
175
161
175
161
183
162
176
167
175
161
13
13
B
A
139
26